Dvoiposoban stan na prodaju, Rajićeva, 159.770€, 62m²








159.770 €
2.577 € / m2
- Etažno grejanje
- U izgradnji
- Prostorije: kupatilo, toalet, terasa
- Opremljenost: Prazno - interfon
- Uknjiženo
- Oglas oglašava agencija pod reg. brojem 1487
- 1 parking mesto
- 1 lift
- Zgrada poseduje: prilaz za invalide
Opis oglasa
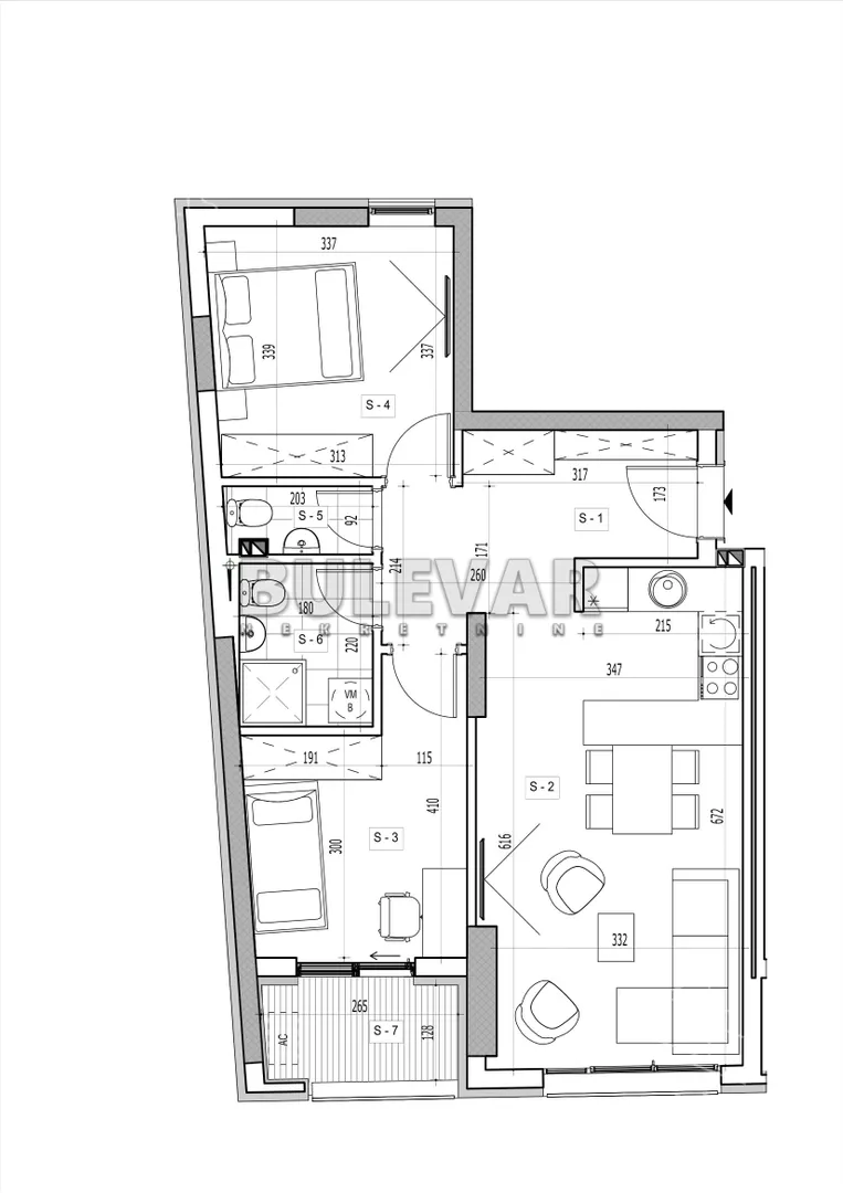
Na prodaju ekskluzivna novogradnja u centru. Stambeno poslovni objekat Po+P+8. Stan je projektovane površine 62,41m2. Nalazi se na prvom spratu, čine ga ulazni hodnik, dnevna soba sa trpezarijom i kuhinjom, dve spavaće sobe, toalet, kupatilo i terasa. Svaka stambena jedinica ima nezavisan sistem grejanja i hlađenja koji je automatizovan i moguće ga je kontrolisati putem mobilnog uređaja. Sistem za grejanje je postavljen kroz pod sa elektro-kotlom, dok je rashladni sistem sa invertor klimama. Svi podovi izvedeni su kao plivajući sa ugrađenom zvučnom izolacijom. Na podu je višelojni parket, a u kupatilu granitna keramika.Unutrašnja stolarija izrađena je od visoko kvalitetnog furnira, dok je spoljna stolarija od aluminijuma. Za kupce prvog stana postoji mogućnost povratka PDV-a. Postoji mogućnost kupovine parking mesta. Ovo je samo deo naše ponude, za više informacija stojimo Vam na raspolaganju.
*Sačuvaj oglas uz belešku i primaj obaveštenja o njihovom pojeftinjenju ili pojavljivanju sličnih
Prikaz stana na mapi
Parkovi u blizini
- Park Čair10 min
- Park heroja NOB-a14 min
- Park složnih komšija22 min

Obeležja kulture u blizini
- Spomenik Stevanu Sremcu i Kalči5 min
- Vladičanski dvor3 min
- Donina česma4 min

Škole/Fakulteti/Vrtići u blizini
- Osnovna škola (Osnovna škola Dositej Obradović)9 min
- Srednja škola (Gimnazija Svetozar Marković)6 min
- Vrtić (Dečiji centar Bambini 2)manje od 1 min
- Fakultet (Univerzitet u Nišu Fakultet zaštite na radu)6 min

- Bolnica (Urgentni centar Niš)9 min
- Klinika (Poliklinika Longa Vita)4 min
- Teretana (Centar za rekreaciju Miss Fit Line)1 min
- Prodavnica (Neo Market)4 min
- Restoran (Kafana Palilulski dukat)1 min
- Kafana (Pivnica Nemir)3 min
- Taksi stajalište (Bros Taxi Niš)10 min
- Autobuska stanica (Episkopska)2 min
- Banka (NLB Komercijalna banka)1 min
- Pošta (Pošta Niš 5)4 min
Kontakt oglašivača

Stambeni krediti

- Period otplate od
96 -360 meseca
- NKS 4.75%
EKS 5.74%
Fiksna kamatna stopa
- Bez troškova obrade kredita
stranici kreditnih kalkulatora
Keš krediti
Period otplate
13 meseci