Trosoban stan na prodaju, Slobodana Bursaća 12, 93.776€, 58m²




93.776 €
1.617 € / m2
- Stan u zgradi
- Grejanje na klimu
- U izgradnji
- Prostorije: kupatilo, kuhinja, terasa
- Pogled na: dvorište
- U procesu uknjižavanja
- Kupovina direktno od investitora
Opis oglasa
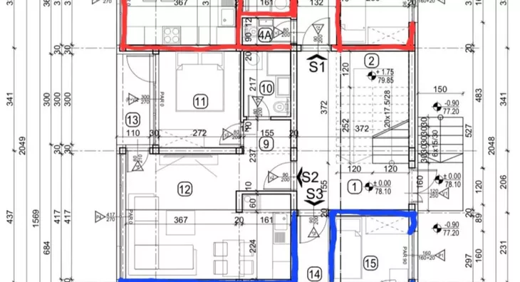
Na prodaju trosobni stanovi (na slici stan br 1 oznacen crvenom bojom kvadrature 58,61m², stan br 3 plavom bojom kvadrature 55,71m²) u novogradnji, kupovina direktno od investitora, idealan kao porodicni stan ili investicija, bez agencijskih i drugih skrivenih troskova. Stan br 1 je dostupan na visokom prizemlju, takodje u ponudi identican na prvom spratu, svi su sa funkcionalnim rasporedom i sa po terasom. Sastoje se od hodnika, kupatila, odvojenog WC-a, dve spavace sobe i dnevne sobe sa kuhinjom i trpezarijom.
Grejanje i hlađenje na inverter klima uredjaj, Tarketov parket u sobama, keramika u kupatilu i WC-u.
Cena: 1.600 €/m² + PDV. Moguc povrat PDV-a za kupce prve nekretnine, mogucnost kupovine putem kredita. Takodje je moguca kupovina parking mesta.
Stanovi su u fazi izgradnje, trenutno su na 3/4 poslova.
Pozovite za vise informacija.
*Sačuvaj oglas uz belešku i primaj obaveštenja o njihovom pojeftinjenju ili pojavljivanju sličnih
Prikaz stana na mapi
Parkovi u blizini
- Karađorđev park11 min
- Spomen park30 min
- Šećeranski park Zrenjanin35 min

Obeležja kulture u blizini
- Kuća iz 1790. godine5 min
- Spomenik kralju Petru I Karađorđeviću9 min
- Pinova vila - Danijelova vila7 min

Škole/Fakulteti/Vrtići u blizini
- Osnovna škola (Osnovna škola Sonja Marinković)6 min
- Srednja škola (Elektrotehnička i građevinska škola Nikola Tesla)5 min
- Vrtić (Dečiji vrtić Maslačak)5 min
- Fakultet (Univerzitet u Novom Sadu Tehnički fakultet u Zrenjaninu)9 min

- Bolnica (Specijalna bolnica za plućne bolesti Dr Vasa Savić Zrenjanin)6 min
- Klinika (Family Medica poliklinika)4 min
- Teretana (Fitnes klub Doctor Feelgood)8 min
- Prodavnica (Gomex market)3 min
- Restoran (Walter sarajevski ćevap)6 min
- Kafana (Kafanica Sve moje zore)6 min
- Autobuska stanica (Internat)4 min
- Banka (AIK Banka)6 min
- Pošta (Pošta Zrenjanin)6 min
Kontakt oglašivača
Krediti OTP banke
Saznaj više
Prikazana rata odnosi se na maksimalni period otplate. Kalkulator je informativnog karaktera.
* Nakon isteka 5 godina, prelazi se na varijabilnu kamatnu stopu

