Jednosoban stan na prodaju, Centar, 70.692€, 39m²


















70.692 €
1.813 € / m2
- Stan u zgradi
- Grejanje na klimu
- U izgradnji
- Prostorije: kupatilo, terasa
- Orijentacija ka: jugozapad
- Pogled na: dvorište
- U procesu uknjižavanja
- Oglas oglašava agencija pod reg. brojem 1994
- 1 garažno mesto, garaža u sklopu zgrade
- Parking u dvorištu zgrade
- 2 lifta
- Godina izgradnje: 2026.
Opis oglasa
U neposrednoj blizini Banjskog parka i prelepog Japanskog vrta, smešten je moderan kompleks novogradnje sa ekskluzivnim stanovima, namenjen svima koji žele spoj luksuza, prirode i komfora.
Lokacija je izuzetna – istovremeno ste nadomak Banjskog parka, a u neposrednoj blizini svih neophodnih sadržaja za svakodnevni život: prodavnica, restorana, kafića i drugih važnih objekata.
U okviru kompleksa nalazi se bazen, idealan za opuštanje i odmor. Stambeni kompleks poseduje podzemnu garažu, kao i parking mesta. Okruženje odiše mirom, zelenilom i prirodom, pružajući savršen ambijent za život i odmor.
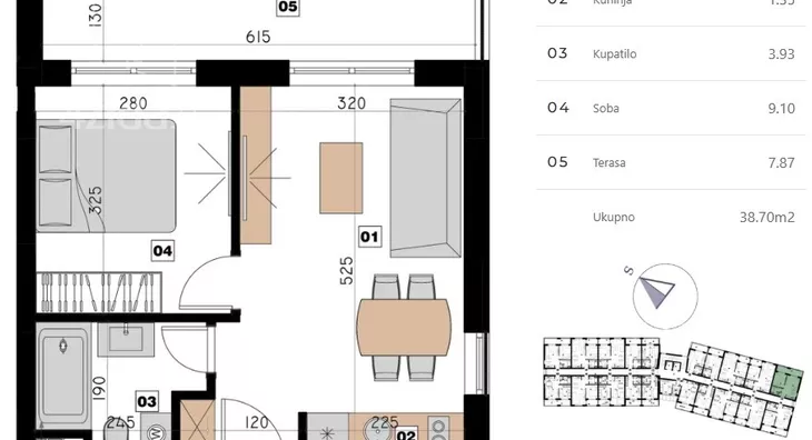
U ponudi su jednosobni stanovi od 38 do 39m 2, dostupni na različitim spratovima i pozicijama u zgradi, što vam omogućava izbor prema ličnim preferencijama. Konkretan stan ima 38,63 m2 i sastoji se od dnevne sobe sa trpezarijom , spavaće sobe, kupatila kuhinje i velike terase.
Stanovi su opremljeni kvalitetnim materijalima:
- Hrastov parket
- PVC stolarija sa dvoslojnim staklom
- Keramika A klase u kupatilu
Savršena prilika za život, odmor ili investiciju na jednoj od izuzetnih lokacija.
*Sačuvaj oglas uz belešku i primaj obaveštenja o njihovom pojeftinjenju ili pojavljivanju sličnih
Prikaz stana na mapi
Parkovi u blizini
- Japanski vrt10 min

Obeležja kulture u blizini
- Izvor lekovite vode Slatina5 min
- Izvor lekovite vode Jezero13 min
- Izvor lekovite vode Snežnik15 min

Škole/Fakulteti/Vrtići u blizini
- Osnovna škola (Osnovna škola Popinski borci)7 min
- Srednja škola (Ugostiteljsko-turistička škola)5 min
- Vrtić (Dečiji vrtić Veseljko)32 min
- Fakultet (Univerzitet u Kragujevcu Fakultet za hotelijerstvo i turizam)7 min

- Bolnica (Bolnica za interne bolesti Vrnjačka Banja)3 min
- Klinika (Poliklinika SVS Medicus)39 min
- Teretana (Teretana Colosseum)37 min
- Prodavnica (SL market Swisslion Takovo)16 min
- Restoran (Restoran Numero Uno)9 min
- Kafana (Pivnica Sonata)14 min
- Taksi stajalište (Profi taxi)16 min
- Banka (NLB Komercijalna banka)5 min
- Pošta (Pošta Vrnjačka Banja)6 min
Kontakt oglašivača
Krediti OTP banke
Saznaj više
Prikazana rata odnosi se na maksimalni period otplate. Kalkulator je informativnog karaktera.
* Nakon isteka 5 godina, prelazi se na varijabilnu kamatnu stopu


