Troiposoban stan na prodaju, Centar, 146.150€, 79m²


























146.150 €
1.850 € / m2
- Podno grejanje
- Novo
- Prostorije: kupatila (2), terasa
- Opremljenost: Prazno - interfon
- Oglas oglašava agencija pod reg. brojem 591
- 1 lift
- Godina izgradnje: 2025.
- Zgrada poseduje: prilaz za invalide
Opis oglasa
Odličan četvorosoban stan u novogradnji na Misi na povučenom spratu na odličnoj lokaciji. U blizini su sportski centar, autobusko stajalište gradskog prevoza i prevoza za Beograd, stanica voza za Beograd, škola, vrtić, ambulanta, Maxi, Mere, manje prodavnice, apoteke. Misa je naselje koje pruža miran život sa svim pogodnostima, a nadomak centra grada.
Stanovi su predbeleženi u katastru. U izgradnji se koriste kvalitetni materijali. Zgrada ima lift, blindirana ulazna vrata, granitnu keramiku prve klase, ugradne vodokotliće, podno grejanje svski stan ima svoj smart kotao inverter klimu, optički Internet, video interfon, dostupna parking mesta.
Ugrađena je stolarija, klizna balkonska vrata, malteriše se drugi sprat, radi se fasada.
Cena stana je sa uračunatim PDV-om. Mogućnost povrata PDV-a za kupce prvog stana. Useljenje septembra 2026. godine.
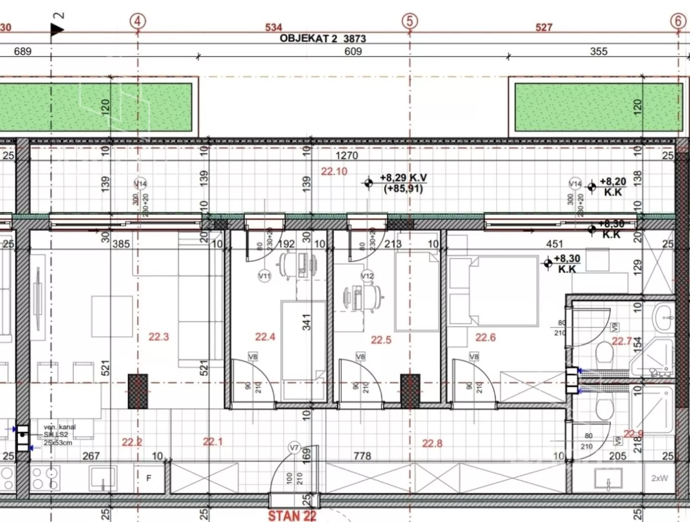
Prostorije: ulazni prostor, hodnik, kuhinja, dnavna soba sa trpezarijom, tri spavaće sobe, dva kupatila.
Agencijska provizija je 2%
Šta podrazumeva agencijska provizija od 2%:
Agencija, zajedno sa agentom, je tu za Vas vezano za:
- razgledanje nepokretnosti na terenu,
- vođenje celokupnog kupoprodajnog procesa,
- prikupljanje i proveru dokumentacije,
- izradu Predugovora ili Ugovora o kupoprodaji,
- pružanje pomoći u pregovorima,
- zakazivanje overe ugovora i odlazak u pratnji agenta kod notara,
- asistiranje za porez na apsolutna prava i eventualno oslobađanje od istog,
- organizovanje primopredaje i svega ostalog što podrazumeva Zakon o posredovanju u prometu i zakupu nepokretnosti.
Agencija i agent koji Vam je dodeljen su od prvog dana saradnje, do konačno završenog posla, Vaša pomoć i podrška.
*Sačuvaj oglas uz belešku i primaj obaveštenja o njihovom pojeftinjenju ili pojavljivanju sličnih
Prikaz stana na mapi
Parkovi u blizini
- Park na Trgu kralja Petramanje od 1 min
- Narodna bašta Pančevo22 min
- Park Barutana26 min

Obeležja kulture u blizini
- Spomenik vojvodi Stevanu Šupljikcu7 min
- Zgrada Stare bolnice8 min
- Kompleks Svilara9 min

Škole/Fakulteti/Vrtići u blizini
- Osnovna škola (Osnovna škola Jovan Jovanović Zmaj)6 min
- Srednja škola (Privatna srednja stručna škola Vizija)5 min
- Vrtić (Predškolska ustanova Dečja radost Pančevo)9 min
- Fakultet (Stomatološki fakultet Pančevo)12 min

- Bolnica (Bolnica za očne bolesti Pančevo)6 min
- Klinika (Poliklinika MD)7 min
- Teretana (Fitnes klub Forma)4 min
- Prodavnica (Maxi Supermarket)2 min
- Restoran (Bistro Kokoschka)2 min
- Kafana (Stara Vajfertova pivara)6 min
- Taksi stajalište (Taxi stanica)5 min
- Autobuska stanica (Gradska uprava)2 min
- Banka (OTP banka)1 min
- Pošta (Pošta Pančevo 6)3 min
Kontakt oglašivača
Krediti OTP banke
Saznaj više
Prikazana rata odnosi se na maksimalni period otplate. Kalkulator je informativnog karaktera.
* Nakon isteka 5 godina, prelazi se na varijabilnu kamatnu stopu






















