Jednoiposoban stan na prodaju, Moše Pijade 45A, 81.950€, 46m²










81.950 €
1.782 € / m2
- Stan u zgradi
- Grejanje na gas
- U izgradnji
- Prostorije: kupatilo, terasa
- Opremljenost: Prazno - internet
- Orijentacija ka: jug
- Pogled na: ulicu
- Nije uknjiženo
- Oglas oglašava agencija pod reg. brojem 1473
- 1 garažno mesto, garaža u sklopu zgrade
- Parking u dvorištu zgrade
- 1 lift
- Godina izgradnje: 2027.
- Tip interneta: optički
- 1 telefonska linija
Opis oglasa
Direktna prodaja - bez agencijske provizije!
Predstavljamo Vam objekat u izgradnji vrhunskog kvaliteta u centru Pančevu, u ulici Moše Pijade broj 45A, u neposrednoj blizini svih sadržaja neophodnih za komforan život, kao i magistralnog puta za Beograd, osnovnih i srednjih škola, a strogi centar grada je udaljen samo 5 minuta laganog hoda.
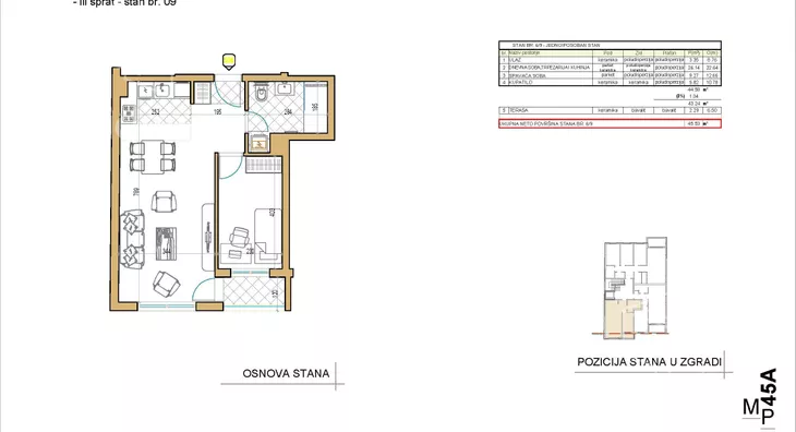
Stan 9 – treći sprat od četiri - jednoiposoban – 45.53m2.
Stan se sastoji od hodnika, dnevnog boravka sa kuhinjom i trpezarijom, spavaće sobe, kupatila i terase.
Objekat sa samo 11 stanova je spratnosti P+3+PS, i gradi se u skladu sa najmodernijim standardima. U gradnji se koriste najkvalitetniji materijali, a posebno je vođeno računa o termo i zvučnoj izolaciji. PVC sedmokomorna stolarija sa troslojnim staklom, komarnicima i roletnama sa električnim upravljanjem, spoljna izolacija kamena vuna 10cm, grejanje je radijatorsko na gas, a svaki stan biće opremljen zasebnim gasnim kotlom. Podna obloga biće hrastov parket prve klase u sobama, a u hodniku, kuhinji i kupatilima keramičke pločice. Bešumni lift, sigurnosna ulazna vrata, video interfon, sobna vrata od medijapana, inverter klima uređaj, staklene tuš kabine, kapija sa daljinskom komandom, itd.
Postoji mogućnost kupovine garažnog mesta u prizemlju zgrade po ceni od 15.000 EUR ili parking mesta u dvorištu zgrade po ceni od 8.000 EUR.
Planirani rok završetka izgradnje: 01.07.2027. godine
Cena: 1.800EUR/m2
Prodavac nije u sistemu PDV-a, tako da se na cenu ne obračunava PDV niti ima povrata PDV-a. Kupac plaća porez na prenos apsolutnih prava u visini od 2.5%.
Uredna dokumentacija. Objekat se zida sa pravnosnažnom građevinskom dozvolom i prijavom radova.
Kupac ne plaća agencijsku proviziju.
Za sve dodatne informacije, stojimo Vam na raspolaganju!
Agencija Smart Invest
*Sačuvaj oglas uz belešku i primaj obaveštenja o njihovom pojeftinjenju ili pojavljivanju sličnih
Prikaz stana na mapi
Parkovi u blizini
- Park na Trgu kralja Petra10 min
- Narodna bašta Pančevo27 min
- Park Barutana30 min

Obeležja kulture u blizini
- Spomenik vojvodi Stevanu Šupljikcu6 min
- Zgrada Stare bolnice7 min
- Kompleks Svilara10 min

Škole/Fakulteti/Vrtići u blizini
- Osnovna škola (Osnovna škola Vasa Živković)7 min
- Srednja škola (Gimnazija Uroš Predić)11 min
- Vrtić (Dečiji vrtić Leptirić)7 min
- Fakultet (Stomatološki fakultet Pančevo)12 min

- Bolnica (Bolnica za očne bolesti Pančevo)6 min
- Klinika (Poliklinika MD)5 min
- Teretana (Be Fit Fitness Club)6 min
- Prodavnica (DTL Podunavlje)5 min
- Restoran (Walter sarajevski ćevap)7 min
- Kafana (Kafana Crni leptir)13 min
- Taksi stajalište (Taxi stanica)13 min
- Autobuska stanica (Vodna Zajednica)5 min
- Banka (Eurobank Direktna)11 min
- Pošta (Pošta Pančevo 6)12 min
Kontakt oglašivača
Krediti OTP banke
Saznaj više
Prikazana rata odnosi se na maksimalni period otplate. Kalkulator je informativnog karaktera.
* Nakon isteka 5 godina, prelazi se na varijabilnu kamatnu stopu


