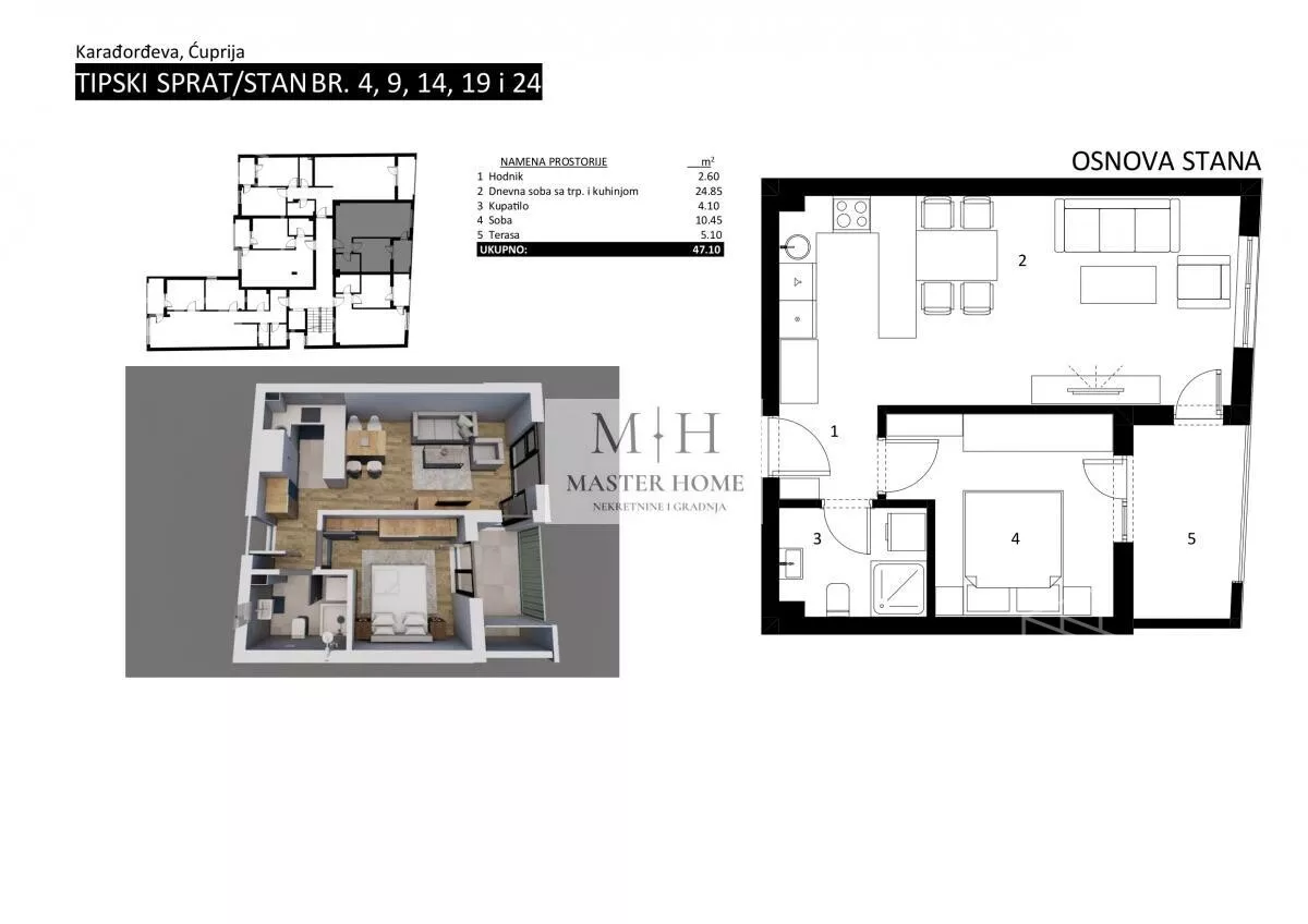
Dvosoban stan na prodaju, Centar, 63.585€, 47m²






63.585 €
1.353 € / m2
- Stan u zgradi
- Podno grejanje
- U izgradnji
- Prostorije: terasa
- Opremljenost: Prazno - interfon, klima, kanalizacija
- Oglas oglašava agencija pod reg. brojem 2124
- 1 garažno mesto
- 1 parking mesto
- 1 lift
- Kanalizacija
- Zgrada poseduje: video nadzor
Opis oglasa
U ponudi su stanovi u izgradnji renomiranog investitora, različitih struktura i kvadratura, pozicionirani u samom centru Ćuprije, na izuzetno atraktivnoj i funkcionalnoj lokaciji.
Projekat se realizuje u skladu sa savremenim standardima gradnje, uz pažljivo odabrane materijale i visok nivo završne obrade. Predviđena je ugradnja kvalitetne spoljne i unutrašnje stolarije, dok je grejanje rešeno putem etažnog sistema na gas, što obezbeđuje energetsku efikasnost i dugoročnu ekonomičnost.
Kupcima je na raspolaganju mogućnost kupovine parking i garažnih mesta u okviru objekta, čime se dodatno unapređuje komfor stanovanja.
Posebna pogodnost kupovine u fazi izgradnje ogleda se u fleksibilnom modelu plaćanja, sa mogućnošću isplate u ratama do završetka radova, kao i u ostvarivanju prava na povraćaj PDV-a za kupce prve nekretnine.
Ova ponuda predstavlja optimalan izbor kako za rešavanje stambenog pitanja, tako i za sigurnu investiciju na jednoj od najtraženijih lokacija u gradu.
Kontaktirajte nas i obezbedite svoj dom na jednoj od najtraženijih lokacija u Ćupriji.
+38... (prikaži broj telefona)
+38... (prikaži broj telefona)
Ili nas posetite u agenciji na adresi:
Karađorđeva 37, lokal 2
*Sačuvaj oglas uz belešku i primaj obaveštenja o njihovom pojeftinjenju ili pojavljivanju sličnih
Prikaz stana na mapi
Parkovi u blizini
- Moravski park7 min
- Park Šećerko23 min

Obeležja kulture u blizini
- Spomenik Jovanči Miciću12 min
- Spomenik žrtvama NATO agresije 1999.24 min
- Spomenik Despotu Stefanu25 min

Škole/Fakulteti/Vrtići u blizini
- Osnovna škola (Osnovna škola Đura Jakšić)3 min
- Srednja škola (Medicinska škola Ćuprija)4 min
- Vrtić (Dečiji vrtić Šećerko)6 min
- Fakultet (Visoka medicinska škola strukovnih studija Ćuprija)4 min

- Bolnica (Opšta bolnica Ćuprija)14 min
- Klinika (Poliklinika Alba)16 min
- Teretana (Cafe bar & gym Mr. Hill)14 min
- Prodavnica (DIS Market)manje od 1 min
- Restoran (Restoran Santa Fee)3 min
- Kafana (Splav Bela Lađa CH)15 min
- Autobuska stanica (Dobričevo)41 min
- Banka (Poštanska štedionica)3 min
- Pošta (Pošta Ćuprija)8 min
Kontakt oglašivača
Krediti OTP banke
Saznaj više
Prikazana rata odnosi se na maksimalni period otplate. Kalkulator je informativnog karaktera.
* Nakon isteka 5 godina, prelazi se na varijabilnu kamatnu stopu


