Troiposoban stan na prodaju, Sonje Marinković 49, 109.120€, 62m²




109.120 €
1.760 € / m2
- Stan u zgradi
- Grejanje na gas
- U izgradnji
- Prostorije: toalet, terasa
- U procesu uknjižavanja
- Oglas oglašava agencija pod reg. brojem 2054
- 1 lift
- Godina izgradnje: 2027.
- Zgrada poseduje: video nadzor
Opis oglasa
0% provizije za kupce !!!
Planiran završetak izgradnje jul 2027
Za dodatne informacije i detalje ☎️ 065... (prikaži broj telefona)
BEZ PROVIZIJE ZA KUPCE
Izvođač radova je renomiran a kvalitet izgradnje je već prepoznat!
(Identični stanovi u vertikalama, isti raspored)
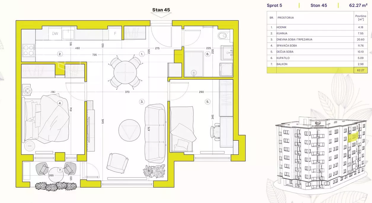
61,64 m2 -3,5,6 sprat
62,27 m2-5,6 sprat
Cena po m2 je trenutno konkurentna na tržištu ali kako gradnja odmiče ona može da se menja, tako da ukoliko ste razmišljali o kupovini novog stana pravo je vreme za to!
Može i kupovina na stambeni kredit čak i u početnoj fazi radova.
MATERIJALI I GRADNJA OBJEKTA
Spoljni zidovi: klimablok debljine 25 cm
Zidovi između stanova i hodnika: klimablok Akustik 10 cm (zvučna izolacija do 54 dB)
GREJANJE
Grejanje na gas sa centralnim termostatom i kalorimetrima .Panelni radijatori
SPOLJNA STOLARIJA I PROZORI
PVC stolarija sa električnim roletnama i niskoemisionim troslojnim staklima
INSTALACIJE U KUPATILU I KUHINJI
Niskošumne kanalizacione Geberitive cevi
Aquatherm vodovodne cevi
Geberit ugradni vodokotlići
Keramika u kupatilima I klase dimenzija 60x120 cm
PODNE OBLOGE
Tarket proizvodi na podovima, minimalna debljina 14 mm
LIFTOVI I FASADA
Liftovi švajcarskog proizvođača Schindler, nosivost do 630 kg (8 osoba)
Fasada od 10 cm fasadnog stiropora sa demit završnim slojem
Ukrasne bordure i dekorativna rasveta na fasadi
OGRADE I KLIMA UREĐAJI
Ograde na terasama od kovanog gvožđa
Svaki stan opremljen inverter klima uređajem
SIGURNOST I KOMUNIKACIJA
Video nadzor u celom objektu
Optički internet (Telekom Srbija)
Sigurnosna i sobna vrata proizvođača "Braća Marić" Čačak
MERENJE POTROŠNJE
Svaki stan ima svoj strujomer, vodomer i kalorimetar za gas
Visoki kvalitet izgradnje.
Garažna mesta 15000 € parking mesta 10000€ (sa uračunatim PDV-om) dostupna za kupovinu.
*Sačuvaj oglas uz belešku i primaj obaveštenja o njihovom pojeftinjenju ili pojavljivanju sličnih
Prikaz stana na mapi
Parkovi u blizini
- Park Rajhl Ferenca15 min
- Park Prozivka18 min
- Park Dudova šuma31 min

Obeležja kulture u blizini
- Spomenik Ivanu Sariću5 min
- Spomenik Aleksandru Lifki5 min
- Gradska kuća Subotica6 min

Škole/Fakulteti/Vrtići u blizini
- Osnovna škola (Osnovna škola Sonja Marinković)4 min
- Srednja škola (Politehnička škola Subotica)4 min
- Vrtić (Dečiji vrtić Poletarac)6 min
- Fakultet (Pravni fakultet za privredu i pravosuđe Univerzitet Privredna akademija)8 min

- Bolnica (Bolnica Sveti Stefan)5 min
- Klinika (Poliklinika Sente)4 min
- Teretana (EMS Studio Maxifit)11 min
- Prodavnica (Gomex market)4 min
- Restoran (Konoba Tinel)6 min
- Kafana (Pub Liverpool)10 min
- Autobuska stanica (Pošta I)8 min
- Banka (3 Banka)5 min
- Pošta (Pošta Subotica 11)11 min
Kontakt oglašivača
Krediti OTP banke
Saznaj više
Prikazana rata odnosi se na maksimalni period otplate. Kalkulator je informativnog karaktera.
* Nakon isteka 5 godina, prelazi se na varijabilnu kamatnu stopu


