Trosoban stan na prodaju, Bulevar Evrope, 190.000€, 65m²




























190.000 €
2.923 € / m2
- Stan u zgradi
- Grejanje na gas
- Prostorije: kuhinja, terasa
- Opremljenost: Polunamešteno - internet, interfon, klima, plakar
- Uknjiženo
- Oglas oglašava agencija pod reg. brojem 1639
- 1 garažno mesto
- 1 lift
- Kablovska
- 1 telefonska linija
Opis oglasa
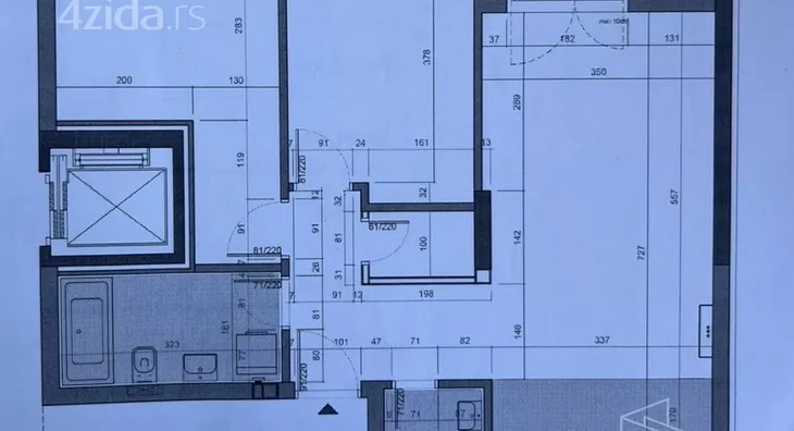
Na prodaju trosoban stan 65m2, na sedmom spratu u zgradi sa liftom na Bulevaru Evrope (zgrada „Dijagoninvest“).
Strukturu stana čine ulazni hodnik, dnevna soba sa trpezarijom i kuhinjom, dve spavaće sobe, kupatilo, toalet, ostava i terasa. Stan se prodaje polunamešten (ostaje ugradni nameštaj), ostatak nameštaja može biti predmet dogovora. Stan je dvorišno orijentisan, niski režijski troškovi. Postoji mogućnost kupovine uknjiženog garažnog mesta u suterenu objekta površine 14m2.
Zgrada je novije gradnje (2022. godina) izuzetnog kvaliteta. Nalazi se u blizini svih sadržaja neophodnih za život.
Na cenu se dodaje posrednička naknada 3%.
*Sačuvaj oglas uz belešku i primaj obaveštenja o njihovom pojeftinjenju ili pojavljivanju sličnih
Prikaz stana na mapi
Parkovi u blizini
- Park Bistrica9 min
- Železnički park23 min
- Futoški park28 min

Obeležja kulture u blizini
- Jodna Banja13 min
- Dvorac Eđšeg16 min
- Spomen ploča Albertu Ajnštajnu i Milevi Marić16 min

Škole/Fakulteti/Vrtići u blizini
- Osnovna škola (Osnovna škola Prva vojvođanska brigada)8 min
- Srednja škola (Sportska gimnazija E-Gimnazija)7 min
- Vrtić (Dečiji vrtić i centar Žil Vern)4 min
- Fakultet (Protestantski teološki fakultet)9 min

- Bolnica (Specijalna bolnica za hemodijalizu Fresenius Medical Care FMC)8 min
- Klinika (Poliklinika Consilium)8 min
- Teretana (Body building i fitness klub Ahilej)2 min
- Prodavnica (Supermarket Univerexport)1 min
- Restoran (Park Novi Restaurants)2 min
- Kafana (Nova pivnica Novi Sad)2 min
- Taksi stajalište (Red Taxi)22 min
- Autobuska stanica (Autobusko stajalište)5 min
- Banka (Poštanska štedionica)6 min
- Pošta (Pošta Novi Sad 21137)4 min
Kontakt oglašivača
Krediti OTP banke
Saznaj više
Prikazana rata odnosi se na maksimalni period otplate. Kalkulator je informativnog karaktera.
* Nakon isteka 5 godina, prelazi se na varijabilnu kamatnu stopu


