Dvosoban stan na prodaju, Gandijeva, 176.000€, 44m²














176.000 €
4.000 € / m2
- Centralno grejanje
- Potrebno renoviranje
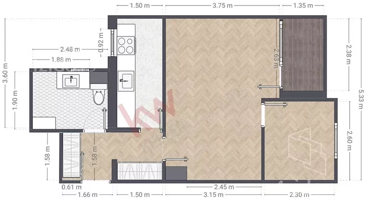
- Prostorije: kupatilo
- Oglas oglašava agencija pod reg. brojem 1219
- Zgrada poseduje: podrum, lođa
Opis oglasa
Na prodaju jednoiposoban stan na Novom Beogradu, blok 64, u zoni sa kompletnom infrastrukturom i odličnom povezanošću sa ostatkom grada. Blok 64 je prepoznat kao jedna od najtraženijih mikrolokacija na Novom Beogradu, zbog neposredne blizine A bloka, West 65, Airport City-ja**,**velikog broja poslovnih objekata i kancelarijskih centara, blizine škola, vrtića, marketa, domova zdravlja, dobre povezanosti sa autoputem i aerodromom i više linija gradskog prevoza.
Jednoiposoban stan funkcionalnog rasporeda i sa dnevnim boravkom sa trpezarijom, odvojenom spavaćom sobom, kuhinjom, kupatilom, ulaznim hodnikom i terasom. Kompletno južno orijentisan.
Ova nekretnina je za mlade parove koji žele stan na traženoj lokaciji, ️ zaposlene u poslovnoj zoni Novog Beograda,️ za one koji kupuju nekretninu kao investiciju, izuzetno pogodan za dugoročno izdavanje (IT sektor, zaposleni u korporacijama, stranci), za roditelje koji kupuju stan deci zbog sigurnog okruženja i dobre infrastrukture
Blok 64 ima stabilnu tražnju i dobru likvidnost na tržištu, što ovu nekretninu čini sigurnom investicijom. Stan je u izvornom stanju, što novom vlasniku daje mogućnost adaptacije i uređenja po sopstvenim potrebama ili investicionoj strategiji.
*Sačuvaj oglas uz belešku i primaj obaveštenja o njihovom pojeftinjenju ili pojavljivanju sličnih
Prikaz stana na mapi
Parkovi u blizini
- Dečje igralište14 min
- Park Blok 7023 min
- Park Republike Argentine27 min

Obeležja kulture u blizini
- Hangar Starog aerodroma na Novom Beogradu6 min
- Stara osnovna škola7 min
- Česma13 min

Škole/Fakulteti/Vrtići u blizini
- Osnovna škola (Savremena osnovna škola)7 min
- Srednja škola (Tehnička škola Zmaj)6 min
- Vrtić (Dečiji vrtić Biser)5 min
- Fakultet (Univerzitet u Beogradu Fakultet dramskih umetnosti)11 min

- Bolnica (Opšta bolnica Avala)7 min
- Klinika (Poliklinika Solar Medical Center)8 min
- Teretana (Fitness centar Imperial Gym)5 min
- Prodavnica (Supermarket Univerexport)9 min
- Restoran (Restoran Kvartet)8 min
- Kafana (Green Mill Pub)16 min
- Taksi stajalište (Beogradski Taxi)14 min
- Autobuska stanica (IMT)7 min
- Tramvajska stanica (Blok 23)43 min
- Banka (OTP banka)5 min
- Pošta (Pošta Beograd 132)8 min
Kontakt oglašivača
Krediti OTP banke
Saznaj više
Prikazana rata odnosi se na maksimalni period otplate. Kalkulator je informativnog karaktera.
* Nakon isteka 5 godina, prelazi se na varijabilnu kamatnu stopu


