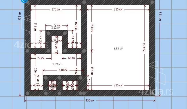
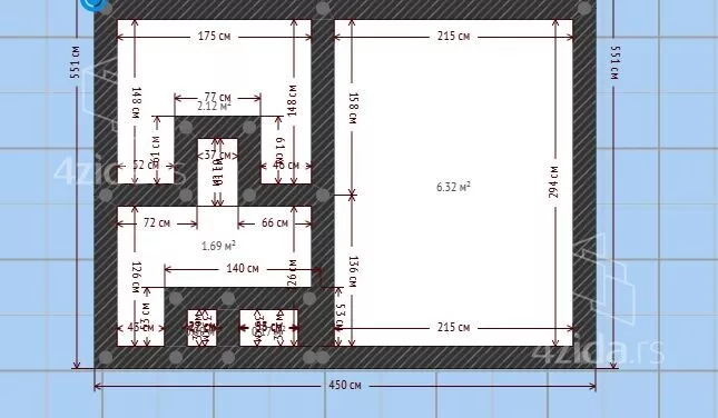
Četvorosoban stan na prodaju, Jurija Gagarina, 390.000€, 83m²




























390.000 €
4.699 € / m2
- Stan u zgradi
- Centralno grejanje
- Luksuzno
- Prostorije: kupatilo, toalet, terasa
- Uknjiženo
- Oglas oglašava agencija pod reg. brojem 1299
- Garaža u sklopu zgrade
- Parking u dvorištu zgrade
- Zgrada poseduje: lođa
Opis oglasa
Odmah useljiv, osunčan i dvostrano orijentisan luksuzan stan u novoizgrađenom kompleksu na Novom Beogradu. Stan je idealne strukture ,prostrana dnevna soba sa trpezarijom i kuhinjom, izlaz na terasu, dve dečije sobe i master spavaća soba sa garderoberom i sopstvenim kupatilom. Moderna kuhinja sa šankom, ugradni plakari i kompletan kupatilski nameštaj. Zgrada poseduje lift, video nadzor, interfon i 24h obezbeđenje. Centralno grejanje i topla voda obezbeđeni su putem sopstvene gasne podstanice. U okviru kompleksa nalazi se podzemna garaža; parking mesto na nivou -2 dostupno uz doplatu. Uređeno okruženje sa zelenim površinama i dečijim igralištem dodatno doprinosi kvalitetu stanovanja.
Za svaku preporuku!
Posrednička naknada je u skladu sa Opštim uslovima poslovanja posrednika kompanije "Etagi com" d.o.o.
Готовая к заселению, солнечная и роскошная квартира в новом жилом комплексе на Новом Белграде
Квартира идеально подходит для немедленного заселения, имеет солнечную и просторную планировку. Включает большую гостиную с обеденной зоной и кухней, выход на террасу, две детские комнаты и мастер-спальню с гардеробной и собственным санузлом. Современная кухня с барной стойкой, встроенные шкафы и вся мебель для ванной комнаты. Здание оснащено лифтом, видеонаблюдением, домофоном и круглосуточной охраной. Центральное отопление и горячая вода обеспечиваются через собственную газовую котельную.
В комплексе имеется подземный паркинг; место для парковки на уровне -2 доступно за дополнительную плату. Ухоженная территория с зелеными зонами и детской площадкой значительно повышает качество проживания. Рекомендуем!
Посредническое вознаграждение в соответствии с общими условиями ведения бизнеса агентства "Etagi com" d.o.o.
*Sačuvaj oglas uz belešku i primaj obaveštenja o njihovom pojeftinjenju ili pojavljivanju sličnih
Prikaz stana na mapi
Parkovi u blizini
- Park Blok 709 min
- Dečje igralište12 min
- Park Republike Argentine25 min

Obeležja kulture u blizini
- Hangar Starog aerodroma na Novom Beogradu8 min
- Stara osnovna škola9 min
- Česma9 min

Škole/Fakulteti/Vrtići u blizini
- Osnovna škola (Osnovna škola 20. oktobar)6 min
- Srednja škola (Tehnička škola Zmaj)12 min
- Vrtić (Predškolska ustanova Meda 2)9 min
- Fakultet (Visoka škola strukovnih studija za informacione tehnologije ITS)7 min

- Bolnica (Puls kardiološki centar)4 min
- Klinika (Poliklinika Solar Medical Center)7 min
- Teretana (Fitness studio Elit)9 min
- Prodavnica (Market Alfa Star)3 min
- Restoran (Kafana Kafanica 1)4 min
- Kafana (Helga's Pub)9 min
- Taksi stajalište (Taxi stanica)3 min
- Autobuska stanica (Blok 70)2 min
- Tramvajska stanica (Blok 23)39 min
- Banka (Raiffeisen Bank)8 min
- Pošta (Pošta Beograd 53)4 min
Kontakt oglašivača
Krediti OTP banke
Saznaj više
Prikazana rata odnosi se na maksimalni period otplate. Kalkulator je informativnog karaktera.
* Nakon isteka 5 godina, prelazi se na varijabilnu kamatnu stopu


