Jednoiposoban stan na prodaju, Batajnica, 88.400€, 52m²


88.400 €
1.700 € / m2
- Stan u zgradi
- Etažno grejanje
- Novo
- Oglas oglašava agencija pod reg. brojem 1667
Opis oglasa
ID 1245
Za dodatne informacije i zakazivanje obilaska, pozovite nas na 064... (prikaži broj telefona) .
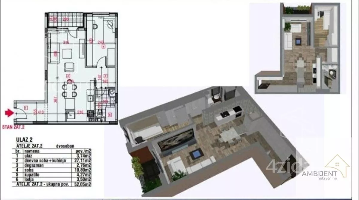
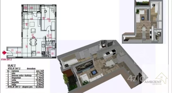
Na prodaju atelje – poslovno-stambeni objekat u izgradnji, smešten u samom centru Batajnice, na atraktivnoj i lako dostupnoj lokaciji, sa planiranim završetkom radova za oko 5 meseci.
Nekretnina se nalazi u prizemlju moderno projektovane zgrade od ukupno četiri sprata i obuhvata 52 m², funkcionalne jednoiposobne strukture, što omogućava raznovrsne mogućnosti korišćenja – kako za stanovanje, tako i za poslovnu namenu (kancelarija, salon, studio, ordinacija i slično).
Objekat se gradi po savremenim standardima, sa etažnim grejanjem, koje budućem vlasniku obezbeđuje energetsku efikasnost i kontrolu troškova. Prostor se prodaje nenamešten, ostavljajući potpunu slobodu u opremanju i organizaciji prema ličnim ili poslovnim potrebama.
Zahvaljujući centralnoj poziciji u Batajnici, prizemlju sa lakim pristupom i fleksibilnoj nameni, ova nekretnina predstavlja odličnu priliku kako za mladi par ili porodicu, tako i kao investicija za poslovni prostor.
Dokumentacija je u procesu uknjižbe, objekat poseduje građevinsku dozvolu, a kupovina je moguća isključivo za keš kupce.
Vodi se kao atelje tako da na se na cenu dodaje 20% PDV-a.
Nije moguća kupovina preko kredita za fizička lica već samo za pravna.
Agencijska provizija je 2% od kupoprodajne cene.
Broj u registru posrednika: 1667.
*Sačuvaj oglas uz belešku i primaj obaveštenja o njihovom pojeftinjenju ili pojavljivanju sličnih
Prikaz stana na mapi
Obeležja kulture u blizini
- Spomenik Nikoli Tesli24 min
- Ičkova kuća36 min
- Livnica Pantelić36 min

Škole/Fakulteti/Vrtići u blizini
- Osnovna škola (Osnovna škola Boško Palkovljević Pinki)5 min
- Srednja škola (Gimnazija Branko Radičević)24 min
- Vrtić (Dečiji vrtić Petar Pan)6 min
- Fakultet (SMATSA školski centar)22 min

- Bolnica (Klinika za lečenje bolesti zavisnosti MedTim)12 min
- Klinika (Poliklinika Holimed)4 min
- Teretana (Teretana B Gym)4 min
- Prodavnica (Aman market)10 min
- Restoran (Restoran Tara)22 min
- Kafana (Pivnica Kod kuma)38 min
- Taksi stajalište (Taxi stanica)11 min
- Autobuska stanica (Batajnica /Šangajska/)4 min
- Banka (OTP banka)4 min
- Pošta (Pošta Beograd 108)6 min
Kontakt oglašivača
Krediti OTP banke
Saznaj više
Prikazana rata odnosi se na maksimalni period otplate. Kalkulator je informativnog karaktera.
* Nakon isteka 5 godina, prelazi se na varijabilnu kamatnu stopu


