Jednosoban stan na prodaju, Banovo Brdo, 100.000€, 30m²


100.000 €
3.333 € / m2
- Stan u zgradi
- Centralno grejanje
- Novo
- Opremljenost: Prazno - internet, interfon, klima, kanalizacija
- U procesu uknjižavanja
- Oglas oglašava agencija
- 1 parking mesto
- 1 lift
- Kanalizacija
- Zgrada poseduje: video nadzor
- Kablovska
- 1 telefonska linija
Opis oglasa
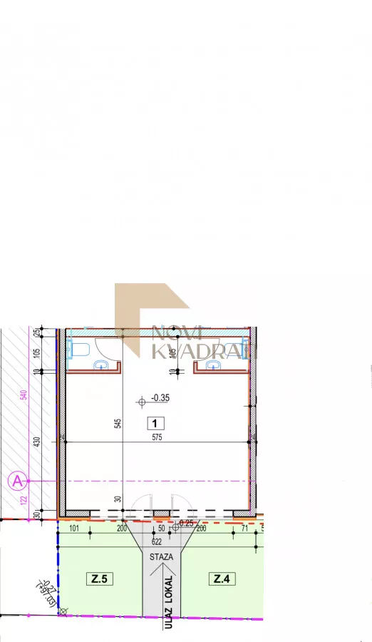
Na jednoj od najtraženijih lokacija na Banovom brdu, u neposrednoj blizini "Ada Mall-a" prodaje se poslovni apartman-garsonjera od 30m2.
Mogućnost podele apartmana na dva manja od po 15m2, u svrhu izdavanja stana na dan.
Odlična investiciona prilika!
Istočna orijentacija – jutarnje sunce (retkost u ponudi)
Aluminijumska stolarija
Hrastov parket
Italijanska granitna keramika I klase
Centralno grejanje po utrošku
Cena: 100.000 €
Parking mesto : 20.000 € + PDV
!Mogućnost kreditne kupovine i povrata pdv-a, samo za pravna lica.!
!Fizička lica samo keš kupovina!
Uredna papirologija 1/1
Odličan izbor za investiciju.
Useljenje planirano u Decembru 2026 godine.
Agencija za nekretnine Novi Kvadrati
Zlatiborska 43, Beograd
Reg. broj posrednika: 1872
Radimo 7 dana u nedelji!
Posrednička nadoknada je u skladu sa opštim uslovima poslovanja posrednika "Novi Kvadrati" Doo.
*Sačuvaj oglas uz belešku i primaj obaveštenja o njihovom pojeftinjenju ili pojavljivanju sličnih
Prikaz stana na mapi
Parkovi u blizini
- Park Banovo Brdo8 min
- Dečje igralište15 min
- Dečje igralište27 min

Obeležja kulture u blizini
- Spomenik srpskim ratnicima8 min
- Česma izvor Zmajevac11 min
- Spomenik partizanskim borcima Žarkova12 min

Škole/Fakulteti/Vrtići u blizini
- Osnovna škola (Privatna osnovna škola Bejza)6 min
- Srednja škola (Srednja škola Artimedia)6 min
- Vrtić (Dečiji vrtić Roda)6 min
- Fakultet (Fakultet za primenjenu ekologiju Futura)5 min

- Bolnica (Bolnica za plastičnu i rekonstruktivnu hirurgiju Mens Sana)7 min
- Klinika (Bel Medic Poliklinika)13 min
- Teretana (Yoga studio NataSha)5 min
- Prodavnica (Maxi Supermarket)2 min
- Restoran (Restoran Đurđev grad)3 min
- Kafana (Beerland Pub)3 min
- Taksi stajalište (Taxi stanica)3 min
- Autobuska stanica (Petra Lekovića)9 min
- Tramvajska stanica (Kijevska)2 min
- Banka (Raiffeisen Bank)4 min
- Pošta (Pošta Beograd 40)3 min
Kontakt oglašivača
Krediti OTP banke
Saznaj više
Prikazana rata odnosi se na maksimalni period otplate. Kalkulator je informativnog karaktera.
* Nakon isteka 5 godina, prelazi se na varijabilnu kamatnu stopu


