Četvorosoban stan na prodaju, Autokomanda, 257.000€, 78m²
















257.000 €
3.295 € / m2
- Novo
- Prostorije: terasa
- Opremljenost: Prazno - internet, klima
- Uknjiženo
- Oglas oglašava agencija pod reg. brojem 1873
- 1 garažno mesto
- 1 lift
- Kablovska
- 1 telefonska linija
Opis oglasa
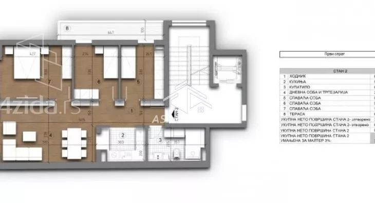
U ponudi je četvorosoban stan površine 78 m2, pozicioniran na drugoj etaži, u zadnjem delu objekta. Zgrada je koncipirana kao urbana vila sa svega 4 stambene jedinice, što obezbeđuje mir, privatnost i ekskluzivnost male zajednice stanara.
Raspored je funkcionalan i prilagođen porodičnom životu. Svetla dnevna soba sa trpezarijom predstavlja centralnu zonu doma. Tri odvojene spavaće sobe omogućavaju jasnu podelu prostora za porodicu, goste ili rad od kuće. Organizacija prostora maksimalno koristi svaki kvadrat, uz logičan i moderan koncept stanovanja.
Smart Home sistem omogućava upravljanje rasvetom, grejanjem i hlađenjem, kao i roletnama putem telefona, u skladu sa predviđenom opremom. Moguće je kreiranje automatizovanih scena poput Dolazak kući i Odlazak, uz preciznu kontrolu potrošnje energije po zonama. Sistem pruža i dodatne bezbednosne opcije, uključujući integraciju video interfona, pametne brave i senzora, u skladu sa projektom.
Stan je opremljen sigurnosnim ulaznim vratima Bosal Lux sa elektronskom bravom i kontrolom pristupa. Ugrađena je aluminijumska stolarija velikih dimenzija sa troslojnim staklom, kao i aluminijumski venecijaneri sa elektro-motornim pogonom. Unutrašnja vrata su od medijapana sa skrivenim šarkama.
Podne obloge čine granitna keramika prve klase Ragno by Marazzi Group i hrastov višeslojni parket velikog formata proizvođača Tarkett. U celom stanu je podno grejanje, uz inverter klima uređaje Samsung. Kupatilo je opremljeno tuš kabinom u nivou poda sa kaljenim staklom debljine 8 mm, bojlerom Ariston Velis od 80 litara, sanitarijama Laufen i baterijama Grohe. Stan poseduje optički i koaksijalni kabl.
Objekat karakterišu video nadzor sa kontrolom pristupa, visok nivo energetske efikasnosti, kao i stanica za električno punjenje vozila u garaži namenjena vlasnicima stanova.
Lokacija u Danijelovoj ulici, Dušanovac, opština Voždovac, omogućava brz pristup auto-putu E-75, Autokomandi i Slaviji, dok je centar grada udaljen oko 4 km. U neposrednoj blizini nalaze se vrtić, osnovna škola, Univerzitet Singidunum, pijaca, Dom zdravlja Voždovac i TC Stadion, što ovu lokaciju čini izuzetno pogodnom za porodični život.
Napomena: Cena stana je izražena bez PDV-a. Mogućnost popusta u pretprodaji i u zavisnosti od dinamike plaćanja.
Za više informacija i razgledanje kontaktirajte nas.
Agencijska provizija iznosi 2% od kupoprodajne cene.
ID oglasa: 44573
*Sačuvaj oglas uz belešku i primaj obaveštenja o njihovom pojeftinjenju ili pojavljivanju sličnih
Prikaz stana na mapi
Parkovi u blizini
- Park Šumice14 min
- Bajronov park16 min
- Park Jove Ilića22 min

Obeležja kulture u blizini
- Spomenik Franše Depereu6 min
- Kuća Flašar8 min
- Spomenik oslobodilaca Beograda 1806. godine8 min

Škole/Fakulteti/Vrtići u blizini
- Osnovna škola (Osnovna škola Miodrag Matić)4 min
- Srednja škola (Škola za negu lepote)8 min
- Vrtić (Dečiji vrtić Mila Jevtović)manje od 1 min
- Fakultet (Univerzitet Singidunum)2 min

- Bolnica (Klinika za fizikalnu medicinu Saint James)2 min
- Klinika (Poliklinika Antamedica)6 min
- Teretana (Klub za dizanje tegova i aerobik Pit Gym)5 min
- Prodavnica (Market Jelena)2 min
- Restoran (Sač team - jela ispod sača)6 min
- Kafana (Kafanica Kod Slobe)5 min
- Taksi stajalište (Taxi stanica)7 min
- Autobuska stanica (Husova)2 min
- Tramvajska stanica (Bože Jankovića)10 min
- Trolejbuska stanica (Kruševačka)17 min
- Banka (Poštanska štedionica)5 min
- Pošta (Pošta Beograd 11)8 min
Kontakt oglašivača
Krediti OTP banke
Saznaj više
Prikazana rata odnosi se na maksimalni period otplate. Kalkulator je informativnog karaktera.
* Nakon isteka 5 godina, prelazi se na varijabilnu kamatnu stopu


