Četvorosoban stan na prodaju, Autokomanda, 1.000.000€, 313m²






















1.000.000 €
3.195 € / m2
- Novo
- Prostorije: terasa
- Opremljenost: Prazno - internet, klima
- Uknjiženo
- Oglas oglašava agencija pod reg. brojem 1873
- 1 garažno mesto
- 1 lift
- Kablovska
- 1 telefonska linija
Opis oglasa
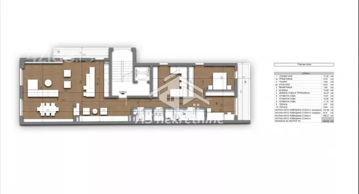
Četvorosoban penthouse stan ALTERRA VERSA Autokomanda 313 m2
Na prodaju četvorosoban penthouse stan u okviru objekta ALTERRA VERSA na Autokomandi. Cena iznosi 1.000.000 EUR. Ukupna površina stana je 313 m2.
Penthouse se nalazi na poslednjoj etaži objekta koji je koncipiran kao urbana vila sa samo 4 stambene jedinice. Pristup poslednjoj etaži i ovom stanu imaju isključivo stanari i lica kojima oni omoguće ulaz, što garantuje visok nivo privatnosti i bezbednosti.
Stan poseduje četiri velike spavaće sobe, prostranu dnevnu sobu sa kaminom i trpezarijom sa pogledom na terasu, dva kupatila od kojih je jedno sa tuš kabinom, a drugo sa hidromasažnom kadom, kao i posebnu vešernicu.
Unutrašnjim stepeništem se pristupa posebno projektovanom krovu površine 160 m2 sa krovnom terasom. Terasa je oplemenjena zelenilom, granitnom keramikom i deking podom, a u okviru nje se nalaze kuhinja, toalet i hidromasažna kada za spoljašnju upotrebu.
Stan je opremljen Smart Home sistemom kućne automatike, video nadzorom sa video interfonom i internom komunikacijom između stanara, sigurnosnim ulaznim vratima sa elektronskom bravom i kontrolom pristupa, aluminijum drvo stolarijom velikih dimenzija sa troslojnim staklom i elektro motornim venecijanerima. Grejanje i hlađenje su rešeni sistemom toplotnih pumpi sa podnim grejanjem u celom stanu i fan coil uređajima za hlađenje.
U enterijeru su korišćeni vrhunski materijali kao što su granitna keramika Ragno by Marazzi Group, hrastov višeslojni parket velikog formata proizvođača Tarkett, sanitarije Laufen, baterije Grohe i bojler Ariston Velis 80 l. Stan poseduje optički i koaksijalni kabl. Objekat ispunjava visoke standarde energetske efikasnosti i pripada energetskom razredu B.
Objekat ALTERRA VERSA poseduje video nadzor sa kontrolom pristupa, punjač za električna vozila u garaži, kao i zajednički prostor za relaksaciju sa saunom, hidromasažnom kadom i slanom sobom. Garaža se prostire na dva nivoa sa ukupno 13 parking mesta, uključujući jedno mesto za osobe sa invaliditetom. Pristup garaži omogućen je auto liftom bez nagiba sa nivoa ulice.
Lokacija omogućava brz pristup Autokomandi, autoputu E 75, Slaviji i centru grada koji je udaljen oko 4 km, čime je obezbeđena odlična povezanost sa svim delovima Beograda.
Ova nekretnina predstavlja retku priliku za kupce koji žele privatnost porodične kuće, arhitektonski kvalitet i luksuz u okviru ekskluzivnog objekta sa malim brojem stanova.
Napomena Cena stana je izražena bez PDV. Mogućnost popusta u pretprodaji i u zavisnosti od dinamike plaćanja.
Za više informacija i razgledanje kontaktirajte nas
Agencijska provizija iznosi 2% od kupoprodajne cene.
ID oglasa: 44575
*Sačuvaj oglas uz belešku i primaj obaveštenja o njihovom pojeftinjenju ili pojavljivanju sličnih
Prikaz stana na mapi
Parkovi u blizini
- Park Šumice14 min
- Bajronov park16 min
- Park Jove Ilića22 min

Obeležja kulture u blizini
- Spomenik Franše Depereu6 min
- Kuća Flašar8 min
- Spomenik oslobodilaca Beograda 1806. godine8 min

Škole/Fakulteti/Vrtići u blizini
- Osnovna škola (Osnovna škola Miodrag Matić)4 min
- Srednja škola (Škola za negu lepote)8 min
- Vrtić (Dečiji vrtić Mila Jevtović)manje od 1 min
- Fakultet (Univerzitet Singidunum)2 min

- Bolnica (Klinika za fizikalnu medicinu Saint James)2 min
- Klinika (Poliklinika Antamedica)6 min
- Teretana (Klub za dizanje tegova i aerobik Pit Gym)5 min
- Prodavnica (Market Jelena)2 min
- Restoran (Sač team - jela ispod sača)6 min
- Kafana (Kafanica Kod Slobe)5 min
- Taksi stajalište (Taxi stanica)7 min
- Autobuska stanica (Husova)2 min
- Tramvajska stanica (Bože Jankovića)10 min
- Trolejbuska stanica (Kruševačka)17 min
- Banka (Poštanska štedionica)5 min
- Pošta (Pošta Beograd 11)8 min
Kontakt oglašivača
Krediti OTP banke
Saznaj više
Prikazana rata odnosi se na maksimalni period otplate. Kalkulator je informativnog karaktera.
* Nakon isteka 5 godina, prelazi se na varijabilnu kamatnu stopu


