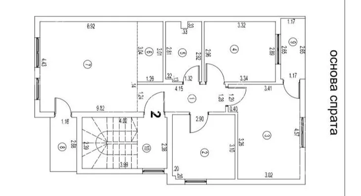
Stan je dvostrano orijentisan, svetao i funkcionalan, sa odlično raspoređenim prostorijama koje obezbeđuju maksimalan komfor i praktičnost.
✨ Raspored prostorija:
✅ Prostran dnevni boravak povezan sa kuhinjom i trpezarijom, iz kojeg se izlazi na terasu pogodnu za odmor i uživanje.
✅ Hodnikom su odvojene tri komforne spavaće sobe i kupatilo.
✅ Terasa je dvorišno orijentisana i natkrivena tendom, što pruža dodatnu privatnost i zaštitu tokom letnjih meseci.
Lokacija pruža mirno porodično okruženje, a u neposrednoj blizini se nalaze svi potrebni sadržaji – prodavnice, škole, vrtići i javni prevoz.
✅ Ova nekretnina predstavlja odličan izbor za one koji traže kombinaciju mira, funkcionalnosti i pristupačnosti u jednom domu.
Za više informacija i zakazivanje obilaska pozovite.

























































