Jednoiposoban stan na prodaju, Adice, 67.500€, 38m²








67.500 €
1.776 € / m2
- Stan u zgradi
- Grejanje na struju
- U izgradnji
- Oglas oglašava agencija pod reg. brojem 1808
Opis oglasa
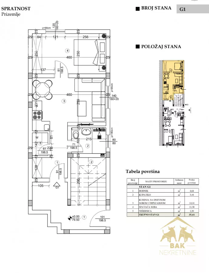
Na prodaju je funkcionalan i lepo organizovan jednoiposoban stan, idealan za miran porodični život ili kao sigurna investicija. Stan se nalazi u uređenom delu grada koji je poznat po tišini, zelenilu i dobroj povezanosti sa ostalim delovima, što ga čini odličnim izborom kako za stanovanje, tako i za izdavanje. Stan ima površinu od 38 m² i pažljivo je osmišljen tako da svaki deo prostora bude maksimalno iskorišćen. Dnevna soba je povezana sa kuhinjom i trpezarijom, stvarajući otvoren i prijatan prostor ispunjen prirodnim svetlom. Spavaća soba je odvojena i pruža potreban mir i komfor. Kupatilo je moderno i praktično, dok hodnik funkcionalno povezuje sve prostorije. Dodatnu vrednost stanu daje posebna vešernica, koja olakšava organizaciju i čuva urednost životnog prostora. Grejanje je podno, na struju, što obezbeđuje ravnomernu toplotu, prijatan osećaj tokom zime i mogućnost individualne kontrole potrošnje. Stan je pogodan za parove, samce ili kao prva nekretnina, ali i kao investicija zbog traženosti ovog dela grada. U neposrednoj blizini nalaze se prodavnice, gradski prevoz i svi neophodni sadržaji za svakodnevni život, dok samo okruženje nudi mir i privatnost. Za sve koji traže praktičan, topao i funkcionalan dom u prijatnom kraju, ovo je ponuda koju vredi pogledati.
Za više informacija kao i za razgledanje stana slobodno nas kontaktirajte.
Kontakt telefoni:
065... (prikaži broj telefona)
,
060... (prikaži broj telefona)
,
065... (prikaži broj telefona)
BAK Nekretnine
*Sačuvaj oglas uz belešku i primaj obaveštenja o njihovom pojeftinjenju ili pojavljivanju sličnih
Prikaz stana na mapi
Parkovi u blizini
- Park Bistrica47 min

Obeležja kulture u blizini
- Dvorac Hadik-Kotek17 min
- Dvorac Eđšeg17 min
- Jodna Banja18 min

Škole/Fakulteti/Vrtići u blizini
- Osnovna škola (Osnovna škola Marija Trandafil)manje od 1 min
- Srednja škola (Privatna medicinska škola Dositej Obradović)8 min
- Vrtić (Dečiji vrtić Anđeo čuvar)6 min
- Fakultet (Protestantski teološki fakultet)10 min

- Bolnica (Ginekološka bolnica Ferona)9 min
- Klinika (Poliklinika Consilium)10 min
- Teretana (Fintess centar Basic Control Academy)9 min
- Prodavnica (Mikromarket)1 min
- Restoran (Restoran Exit West)28 min
- Kafana (Kafanica Kod Dače)45 min
- Taksi stajalište (Taxi prevoz Novi Sad)34 min
- Autobuska stanica (Veternička - Fešter osnovna škola)1 min
- Banka (Erste Bank Ekspres ekspozitura)10 min
- Pošta (Pošta Novi Sad 21142)6 min
Kontakt oglašivača
Krediti OTP banke
Saznaj više
Prikazana rata odnosi se na maksimalni period otplate. Kalkulator je informativnog karaktera.
* Nakon isteka 5 godina, prelazi se na varijabilnu kamatnu stopu






















