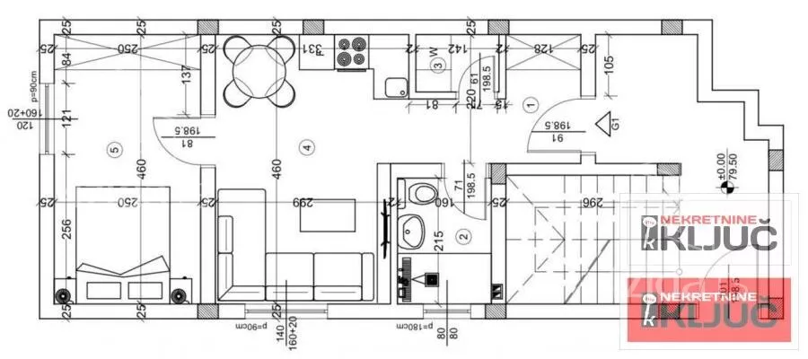
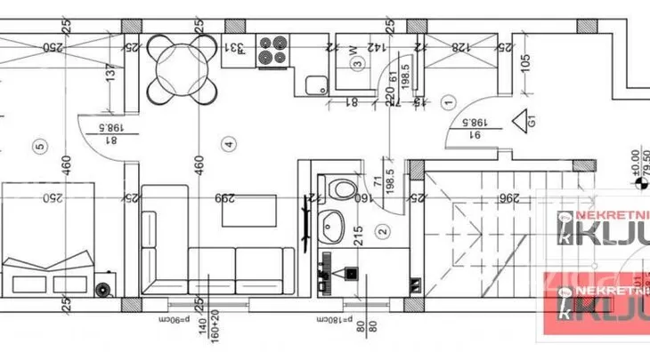
Jednoiposoban stan na prodaju, Adice, 61.450€, 37m²












61.450 €
1.661 € / m2
- Stan u zgradi
- Novo
- Opremljenost: Prazno - internet, interfon
- Oglas oglašava agencija pod reg. brojem 360
- Kablovska
- 1 telefonska linija
Opis oglasa
Prodaje se 1.5 stan u NOVOM SADU, ADICE površine 37m2. Brzo useljiv. Nalazi se u prizemlju objekta. Odlično je povezan sa ostalim delovima grada. Blizina gradskog prevoza, marketa, prodavnica. U stanu je instalirano podno grejanje na toplotne pumpe. Kvalitetna oprema. Moderan kompleks zgrada. U Cenu je uračutana agencijska provizija. Pogledajte i postanite vlasnik ove nekretnine.
*Sačuvaj oglas uz belešku i primaj obaveštenja o njihovom pojeftinjenju ili pojavljivanju sličnih
Prikaz stana na mapi
Parkovi u blizini
- Park Bistrica49 min

Obeležja kulture u blizini
- Dvorac Hadik-Kotek17 min
- Dvorac Eđšeg17 min
- Jodna Banja18 min

Škole/Fakulteti/Vrtići u blizini
- Osnovna škola (Osnovna škola Marija Trandafil)manje od 1 min
- Srednja škola (Privatna medicinska škola Dositej Obradović)8 min
- Vrtić (Dečiji vrtić Anđeo čuvar)6 min
- Fakultet (Protestantski teološki fakultet)10 min

- Bolnica (Ginekološka bolnica Ferona)9 min
- Klinika (Poliklinika Consilium)10 min
- Teretana (Fintess centar Basic Control Academy)9 min
- Prodavnica (Mikromarket)1 min
- Restoran (Restoran Exit West)28 min
- Kafana (Kafanica Kod Dače)45 min
- Taksi stajalište (Taxi prevoz Novi Sad)34 min
- Autobuska stanica (Veternička - Fešter osnovna škola)1 min
- Banka (Erste Bank Ekspres ekspozitura)10 min
- Pošta (Pošta Novi Sad 21142)6 min
Kontakt oglašivača
Krediti OTP banke
Saznaj više
Prikazana rata odnosi se na maksimalni period otplate. Kalkulator je informativnog karaktera.
* Nakon isteka 5 godina, prelazi se na varijabilnu kamatnu stopu


