Dvosoban stan na prodaju, Adice, 94.600€, 44m²
Adice, Gradske lokacije, Novi Sad
Prikaži mapuŠifra oglasa: 4zida-200Oglas ažuriran: 09.04.2026.


94.600 €
2.150 € / m2
44 m²
2 sobe
- Stan u zgradi
- Grejanje na gas
- Novo
- Oglas oglašava agencija pod reg. brojem 1854
Opis oglasa
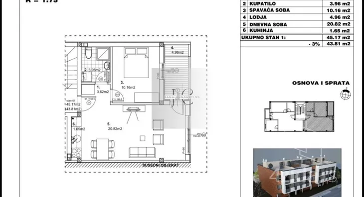
Na prodaju stan od 44m2 na Adicama, novogradnja.
Cena kvadrata je 2150m2 + pdv.
Cena je za kes kupce, dok je cena za kreditne kupce 2400€/m2.
Svaki stan dolazi sa Pierre Smart House sistemom.
U cenu nije uracunata agencijska provizija u iznosu od 3%
Za vise informacija pozovite
065... (prikaži broj telefona)
Jana
*Sačuvaj oglas uz belešku i primaj obaveštenja o njihovom pojeftinjenju ili pojavljivanju sličnih
Prikaz stana na mapi
Parkovi u blizini
- Park Bistrica49 min

Obeležja kulture u blizini
- Dvorac Hadik-Kotek17 min
- Dvorac Eđšeg17 min
- Jodna Banja18 min

Škole/Fakulteti/Vrtići u blizini
- Osnovna škola (Osnovna škola Marija Trandafil)manje od 1 min
- Srednja škola (Privatna medicinska škola Dositej Obradović)8 min
- Vrtić (Dečiji vrtić Anđeo čuvar)6 min
- Fakultet (Protestantski teološki fakultet)10 min

Zdravlje
- Bolnica (Ginekološka bolnica Ferona)9 min
- Klinika (Poliklinika Consilium)10 min
- Teretana (Fintess centar Basic Control Academy)9 min
Hrana i piće
- Prodavnica (Mikromarket)1 min
- Restoran (Restoran Exit West)28 min
- Kafana (Kafanica Kod Dače)45 min
Prevoz
- Taksi stajalište (Taxi prevoz Novi Sad)34 min
- Autobuska stanica (Veternička - Fešter osnovna škola)1 min
Ostale ustanove
- Banka (Erste Bank Ekspres ekspozitura)10 min
- Pošta (Pošta Novi Sad 21142)6 min
Kontakt oglašivača
▾Reklama▾
Krediti OTP banke
Bez troškova obrade kredita
NKS 4.50% - EKS 5.74%
Period otplate 96 -360 meseca
Saznaj više
Prikazana rata odnosi se na maksimalni period otplate. Kalkulator je informativnog karaktera.
* Nakon isteka 5 godina, prelazi se na varijabilnu kamatnu stopu
Osiguranje domaćinstva online
Osiguraj svoje domaćinstvo u slučaju požara...


