Trosoban stan na prodaju, Omladinskih brigada, 465.000€, 172m²








465.000 €
2.703 € / m2
- Centralno grejanje
- Novo
- Prostorije: terasa
- Opremljenost: Prazno - internet, klima
- Uknjiženo
- Oglas oglašava agencija pod reg. brojem 440
- 1 garažno mesto
- 1 lift
- Kablovska
- 1 telefonska linija
Opis oglasa
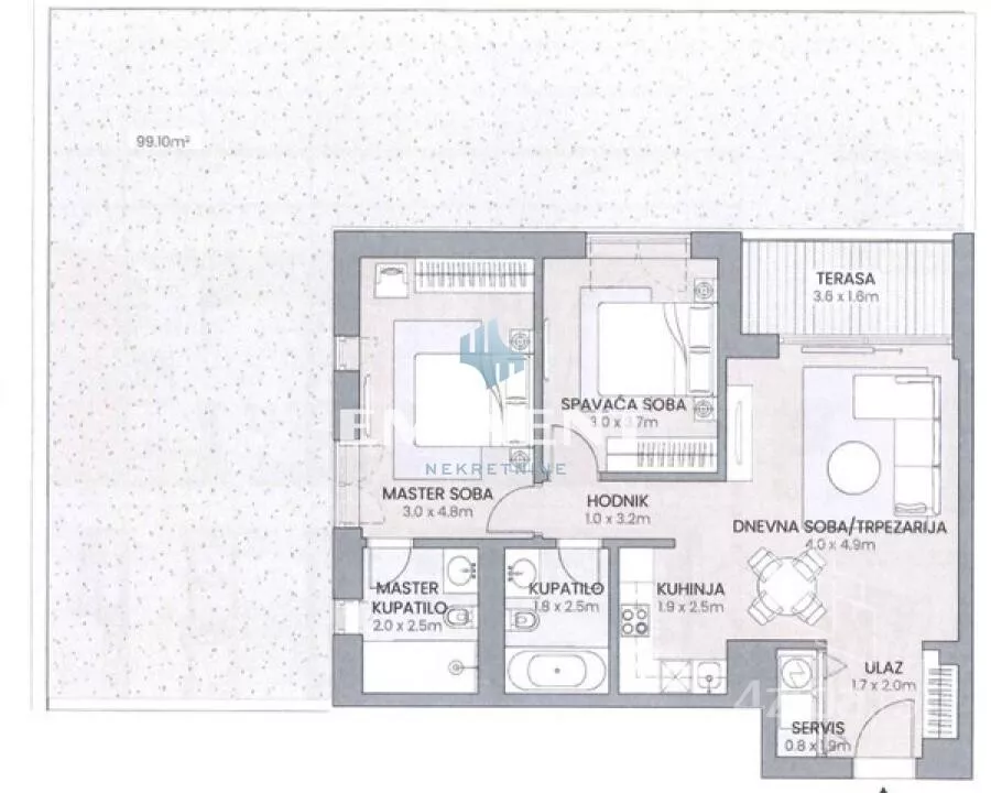
Veoma luksuzan i kvalitetan stambeno-poslovni kompleks Soul 64, na izuzetnoj lokaciji - u blizini luksuznih naselja West 65, A blok, kao i poslovnog centra grada Airport Citxy-ja. U izdradnji su korišćeni prirodni materijali - kamen, terakota, kao i oplemenjeni malter, cementne ploče, fasadna opeka. Naselje se spolja biti oivičeno lamelama, dok će se u unutrašnjosti kompleksa nalaziti manje pojedinačne zgrade. Prostor unutar kompleksa biće zona bez saobraćaja, uređena velikim parkom i puno zelenila. Pružaće mogućnost života po najvišim standardima - sopstveno održavanje, bazen, fitnes centar. U ponudi je komforan, trosoban stan, ukupne površine 73.46m2, od čega je površina terase 5.82m2. Najveća prednost ovog stana svakako je terasa - bašta površine 99.1m2. Stan čine dnevni boravak, trpezarija, kuhinja, dve spavaće sobe, od kojih je jedna soba master i poseduje sopstveno kupatilo, dodatno kupatilo i terasa. Uz stan se prodaje i garažno mesto, uz doplatu. Agencijska provizija iznosi 2% dogovorene kupoprodajne cene ID oglasa: 25107.
*Sačuvaj oglas uz belešku i primaj obaveštenja o njihovom pojeftinjenju ili pojavljivanju sličnih
Prikaz stana na mapi
Parkovi u blizini
- Dečje igralište25 min
- Gradski park37 min
- Park Blok 7038 min

Obeležja kulture u blizini
- Hangar Starog aerodroma na Novom Beogradu7 min
- Spomenik Žambilu Zambajevu8 min
- Spomenik Konfuciju8 min

Škole/Fakulteti/Vrtići u blizini
- Osnovna škola (Osnovna škola Ratko Mitrović)4 min
- Srednja škola (Privatna srednja medicinska škola Školest)8 min
- Vrtić (Dečiji vrtić Poletarac)7 min
- Fakultet (Univerzitet Union - Fakultet za sport)8 min

- Bolnica (Dr Žutić specijalna bolnica)5 min
- Klinika (Poliklinika Alfa Medica)4 min
- Teretana (Teretana Gymnastics)12 min
- Prodavnica (Shop&Go)4 min
- Restoran (Central Pub)6 min
- Kafana (Gastro pub Dolly Bell)12 min
- Taksi stajalište (Taxi stanica)8 min
- Autobuska stanica (Bulevar Zorana Đinđića)3 min
- Tramvajska stanica (Sava Centar)29 min
- Banka (OTP banka)4 min
- Pošta (Pošta Beograd 52)4 min
Kontakt oglašivača
Krediti OTP banke
Saznaj više
Prikazana rata odnosi se na maksimalni period otplate. Kalkulator je informativnog karaktera.
* Nakon isteka 5 godina, prelazi se na varijabilnu kamatnu stopu






















