Trosoban stan na prodaju, 4. Juli, 135.000€, 77m²






























135.000 €
1.753 € / m2
- Centralno grejanje
- Novo
- Prostorije: kupatilo, terasa
- Opremljenost: Polunamešteno - interfon, klima
- Uknjiženo
- Oglas oglašava agencija pod reg. brojem 1312
- 1 lift
- Godina izgradnje: 2025.
- 1 telefonska linija
Opis oglasa
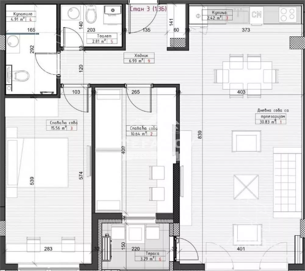
Na prodaju izuzetno atkraktivan trosoban stan u novoj zgradi površine 77,47 m2 na I spratu zgrade sa liftom. Stan je potpuno nov i nikada useljavan, svetao, prozračan i odlično raspoređen - čini ga prostranog dnevnog boravka sa kuhinjom i trpezarijom, dve spavaće sobe, toalet, kupatilo i terase. Grejanje je CG sa kalorimetrima, po podovima postavljena kvalitetna keramika i tarket. Stan je idealan za porodičan zivot. Lokacija odlična, u blizini škola, vrtića, marketa, doma zdravlja, pijace...Uknjižen 1/1.
*Sačuvaj oglas uz belešku i primaj obaveštenja o njihovom pojeftinjenju ili pojavljivanju sličnih
Prikaz stana na mapi
Parkovi u blizini
- Šećeranski park Zrenjanin11 min
- Karađorđev park30 min
- Spomen park40 min

Obeležja kulture u blizini
- Spomenik kralju Petru I Karađorđeviću8 min
- Kuća iz 1790. godine9 min
- Pinova vila - Danijelova vila10 min

Škole/Fakulteti/Vrtići u blizini
- Osnovna škola (Osnovna škola Dositej Obradović)4 min
- Srednja škola (Ekonomsko-trgovinska škola Jovan Trajković)7 min
- Vrtić (Dečiji vrtić Leptirić)7 min
- Fakultet (Univerzitet u Novom Sadu Tehnički fakultet u Zrenjaninu)8 min

- Bolnica (Specijalna bolnica za plućne bolesti Dr Vasa Savić Zrenjanin)9 min
- Klinika (Poliklinika Margareta)4 min
- Teretana (Fitnes klub Doctor Feelgood)7 min
- Prodavnica (IDEA)2 min
- Restoran (Restoran Debela mačka)7 min
- Kafana (Kafana Muštuluk)9 min
- Autobuska stanica (Laze Kostića 3)2 min
- Banka (Erste Bank Ekspres ekspozitura)6 min
- Pošta (Pošta Zrenjanin)10 min
Kontakt oglašivača

Krediti OTP banke
Saznaj više
Prikazana rata odnosi se na maksimalni period otplate. Kalkulator je informativnog karaktera.
* Nakon isteka 5 godina, prelazi se na varijabilnu kamatnu stopu

