Kancelarija na prodaju, Vidovdansko Naselje, 894.450€, 668m²






















894.450 €
1.339 € / m2
- Grejanje na gas
- Novo
- Prostorije: toaleti (4), terasa
- Opremljenost: Prazno - interfon
- Oglas oglašava agencija pod reg. brojem 1960
- 3 parking mesta
- 1 lift
Opis oglasa
Prostran poslovni prostor u Novom Sadu – idealna prilika za vašu firmu!
Na atraktivnoj lokaciji, svega par minuta od centra Novog Sada, prodaje se poslovno–kancelarijski prostor na prvom spratu stambeno-poslovne zgrade novije gradnje. Prostor zauzima celu etažu i pruža izuzetnu fleksibilnost za različite vrste delatnosti.
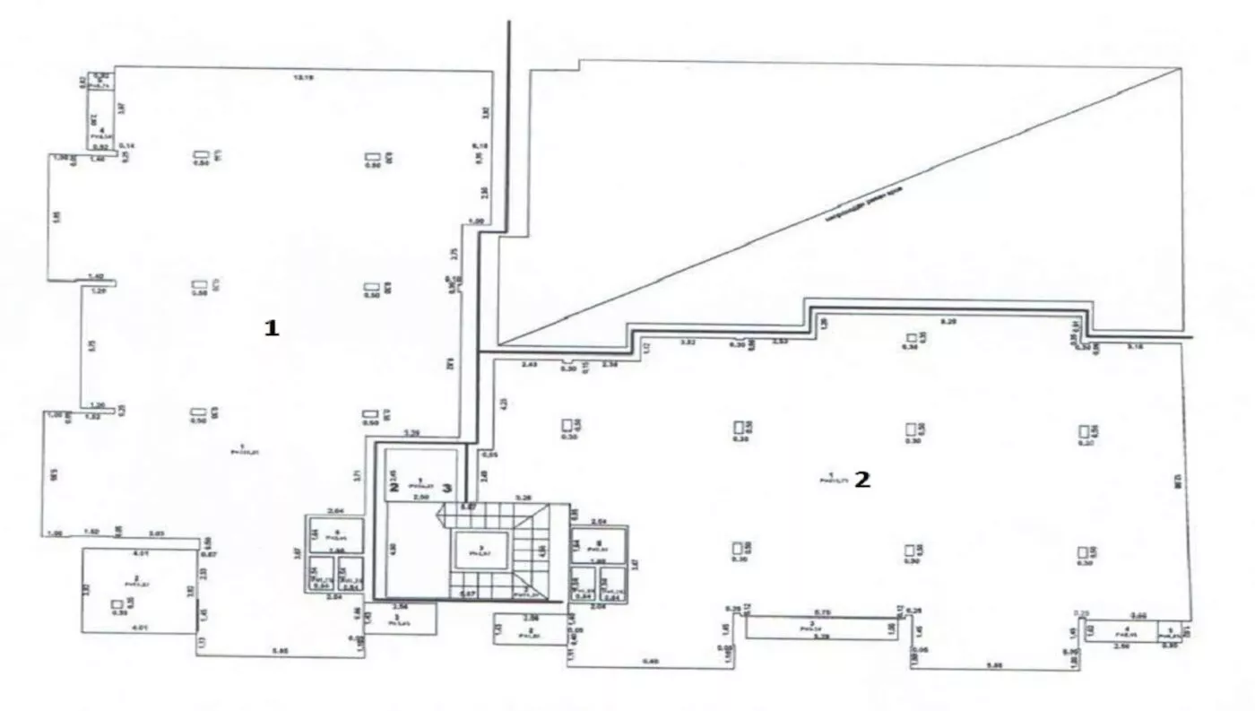
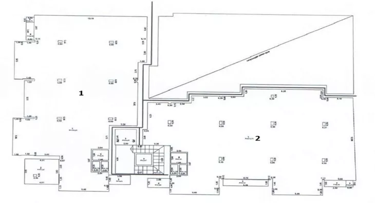
- Površina: 670 m² u sivoj fazi
- Ekskluzivna terasa cca 200 m² – pristup isključivo iz ovog prostora (nije uračunata u kvadraturu i cenu)
- Parking u dvorištu zgrade – privatna parking mesta uz prostor
- Više balkona, odlična osvetljenost i dobra povezanost sa svim delovima grada
- Idealno za IT kompanije, call centre, obrazovne i uslužne delatnosti
- Vlasnik je pravno lice – prodaja se vrši sa obračunatim PDV-om
- Lokacija: Vidovdansko naselje – mirno okruženje, a blizu centra
Prostor se prodaje u viđenom stanju – odlična osnova za prilagođavanje potrebama vaše delatnosti.
Kontaktirajte nas za više informacija i dogovor oko obilaska.
*Sačuvaj oglas uz belešku i primaj obaveštenja o njihovom pojeftinjenju ili pojavljivanju sličnih
Prikaz poslovnog prostora na mapi
Parkovi u blizini
- Železnički park37 min
- Park srpsko-azerbejdžanskog prijateljstva48 min

Obeležja kulture u blizini
- Spomen ploča Albertu Ajnštajnu i Milevi Marić11 min
- Spomenik Kralju Petru I Karađorđeviću13 min
- Vladičanski dvor13 min

Škole/Fakulteti/Vrtići u blizini
- Osnovna škola (Osnovna škola Dušan Radović)9 min
- Srednja škola (Tehnička škola Pavle Savić)7 min
- Vrtić (Dečiji vrtić Vidovdanski zvončić)7 min
- Fakultet (Univerzitet u Novom Sadu Akademija umetnosti)13 min

- Bolnica (Specijalna bolnica za bolesti zavisnosti Dr Boro Lazić)8 min
- Klinika (Poliklinika Novakov)10 min
- Teretana (Fitness centar Mega Gym Novi Sad)6 min
- Prodavnica (TSV Diskont)7 min
- Restoran (Restoran Surabaya)5 min
- Kafana (Kafanica Dobro mesto)7 min
- Taksi stajalište (Novus taxi)21 min
- Autobuska stanica (Temerinska - Najlon pijaca)6 min
- Banka (Poštanska štedionica)4 min
- Pošta (Pošta Novi Sad 21138)7 min
Kontakt oglašivača
Krediti OTP banke
Saznaj više
Prikazana rata odnosi se na maksimalni period otplate. Kalkulator je informativnog karaktera.
* Nakon isteka 5 godina, prelazi se na varijabilnu kamatnu stopu

