Poslovni prostor na prodaju, Medijana, 136.000€, 83m²




136.000 €
1.639 € / m2
- Novo
- Oglas oglašava agencija pod reg. brojem 2068
- 1 parking mesto
- Objekat poseduje: podrum
Opis oglasa
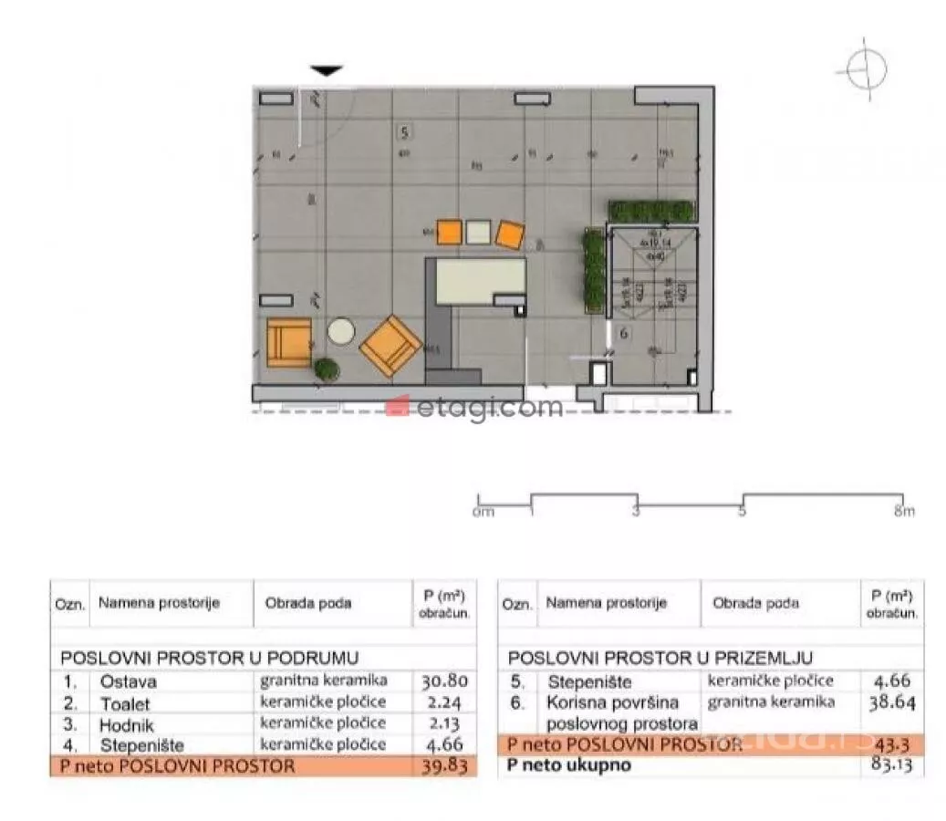
Na prodaju moderan poslovni prostor u novoj, neuseljavanoj zgradi na atraktivnoj lokaciji.
Ukupna površina iznosi 83 m², organizovanih u dve funkcionalne celine – prizemlje i podrum.
Prostor može funkcionisati kao jedna veća celina ili kao dve odvojene jedinice (postoji mogućnost jednog ili dva ulaza), što pruža dodatnu fleksibilnost u organizaciji poslovanja.
Idealan je za:
medicinsku ili stomatološku ordinaciju
estetski ili kozmetički salon
kancelarijski prostor
specijalizovane uslužne delatnosti
Odlična vidljivost sa glavnog puta, laka pristupačnost i prometna lokacija daju ovom prostoru dodatnu poslovnu vrednost – savršen izbor za delatnosti koje žele maksimalnu izloženost i prepoznatljivost.
Postoji mogućnost kupovine natkrivenog parking mesta ispred lokala.
Cena parking mesta: 10.000 €
(PDV se plaća samo na poslovnu jedinicu od 44,3 m²)
Useljivo odmah.
Više informacija o ovoj ponudi možete dobiti pozivom na broj
061... (prikaži broj telefona)
i
018... (prikaži broj telefona)
.
Agencija ETAGI NEKRETNINE DOO je upisana u registar posrednika pod rednim broj
*Sačuvaj oglas uz belešku i primaj obaveštenja o njihovom pojeftinjenju ili pojavljivanju sličnih
Prikaz poslovnog prostora na mapi
Parkovi u blizini
- Park Čair8 min
- Park heroja NOB-a11 min
- Park složnih komšija12 min

Obeležja kulture u blizini
- Zgrada Oficirskog doma5 min
- Čairska česma5 min
- Spomenik oslobodiocima Niša11 min

Škole/Fakulteti/Vrtići u blizini
- Osnovna škola (Osnovna škola Vožd Karađorđe)4 min
- Srednja škola (Gimnazija Bora Stanković)4 min
- Vrtić (Predškolska ustanova Pčelica Niš)9 min
- Fakultet (Univerzitet u Nišu Filozofski fakultet)7 min

- Bolnica (Urgentni centar Niš)6 min
- Klinika (Poliklinika Life Impuls)manje od 1 min
- Teretana (Gym Town 2)8 min
- Prodavnica (Metla diskont)2 min
- Restoran (Etno kafana Porta)4 min
- Kafana (Ministarstvo beer bar)5 min
- Taksi stajalište (Cool taksi)14 min
- Autobuska stanica (Crveni pevac)4 min
- Banka (Adriatic bank)5 min
- Pošta (Pošta Niš 7)6 min
Kontakt oglašivača
Krediti OTP banke
Saznaj više
Prikazana rata odnosi se na maksimalni period otplate. Kalkulator je informativnog karaktera.
* Nakon isteka 5 godina, prelazi se na varijabilnu kamatnu stopu





















