Poslovni prostor na prodaju, Danila Kiša, 127.900€, 46m²
















127.900 €
2.780 € / m2
- Centralno grejanje
- Uobičajeno stanje
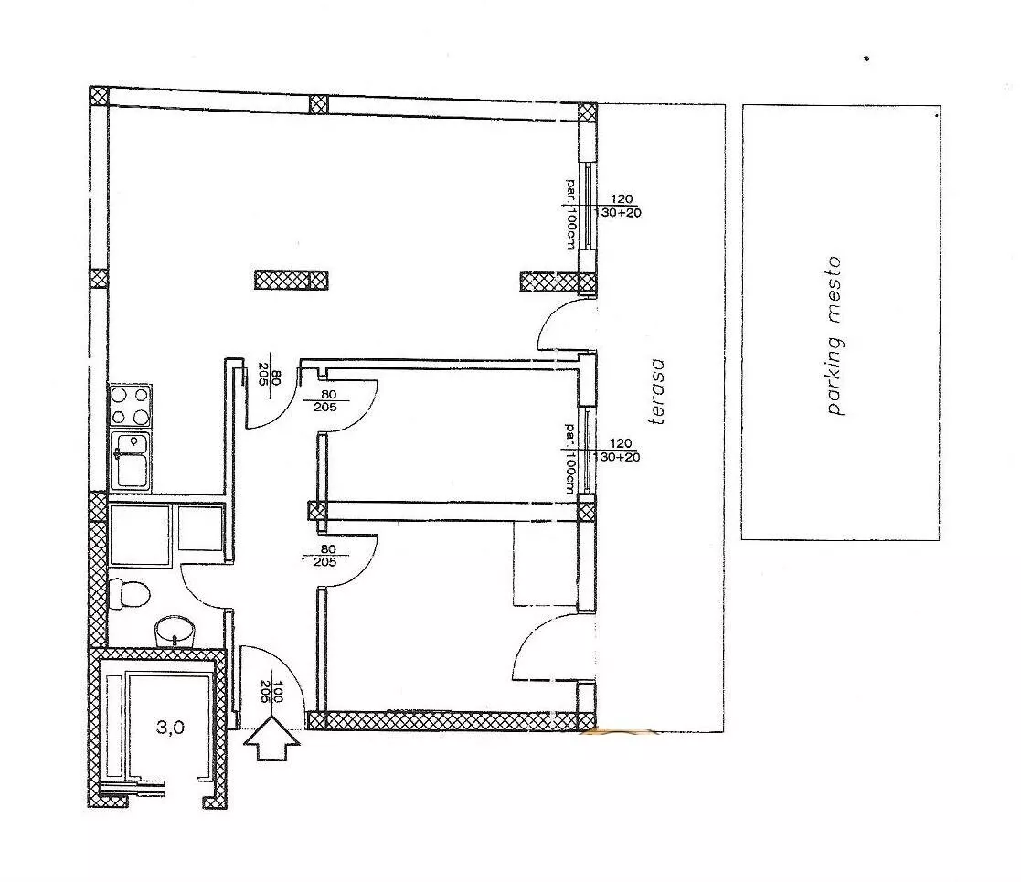
- Prostorije: kupatilo, terasa
- Pogled na: dvorište
- Oglas oglašava agencija pod reg. brojem 377
- 1 parking mesto, parking u dvorištu zgrade
Opis oglasa
Prodaje se dvoiposoban prostor na najtraženijoj lokaciji u gradu, u ulici Danila Kiša. Idealna prilika za investiciju, bilo da tražite nekretninu za život ili poslovnu delatnost.
KLJUČNE INFORMACIJE:
- Površina: 46m2 uknjiženo + 12m2 natkrivena terasa (ukupno 58m2 korisnog prostora).
- Cena: 127.900 € (FIXNA – samo 2.780 €/m2 za uknjiženi deo).
- Gratis: Privatno parking mesto u dvorištu i terasa od 12m2 uključeni u cenu.
- Status: Uknjiženo 1/1, trenutno se vodi kao poslovni prostor (moguća promena namene).
PREDNOSTI OBJEKTA:
- Lokacija: Srce Grbavice, 300m od Bulevara oslobođenja, 800m od fakulteta.
- Pozicija: Visoko prizemlje (visina 1. sprata), orijentisano ka mirnom dvorištu.
- Bezbednost: Kapija od kovanog gvožđa na daljinski, obezbeđen prilaz i terasa sa rešetkama.
- Stanje: Kvalitetna novogradnja (2007), funkcionalan raspored (ulaz u sve prostorije iz hodnika).
POTENCIJAL:
Prostor ima dugu istoriju uspešnog izdavanja (notarska kancelarija, stomatološka ordinacija). Zbog lokacije i parkinga, predstavlja siguran povrat investicije.
Kontaktirajte nas za više informacija i gledanje. 060... (prikaži broj telefona)
*Sačuvaj oglas uz belešku i primaj obaveštenja o njihovom pojeftinjenju ili pojavljivanju sličnih
Prikaz poslovnog prostora na mapi
Parkovi u blizini
- Futoški park13 min
- Limanski park16 min
- Dunavski park19 min

Obeležja kulture u blizini
- Galerija Matice srpske7 min
- Dvorac Eđšeg8 min
- Matičarsko zdanje8 min

Škole/Fakulteti/Vrtići u blizini
- Osnovna škola (Osnovna škola Branko Radičević)6 min
- Srednja škola (Škola za osnovno i srednje obrazovanje Milan Petrović)2 min
- Vrtić (Dečiji vrtić Veseljko)3 min
- Fakultet (OK School)2 min

- Bolnica (Ginekološka bolnica Genesis)8 min
- Klinika (Poliklinika Vejnović)5 min
- Teretana (Fitness centar Crossfit NS)manje od 1 min
- Prodavnica (Mikromarket)manje od 1 min
- Restoran (Restoran Romansa)3 min
- Kafana (Beer Store)4 min
- Taksi stajalište (Zeleni Eko Taxi)12 min
- Autobuska stanica (Bulevar oslobođenja - Futoška)3 min
- Banka (UniCredit Bank)manje od 1 min
- Pošta (Pošta Novi Sad 21102)4 min
Kontakt oglašivača
Krediti OTP banke
Saznaj više
Prikazana rata odnosi se na maksimalni period otplate. Kalkulator je informativnog karaktera.
* Nakon isteka 5 godina, prelazi se na varijabilnu kamatnu stopu

