Lokal na prodaju, Banjica, 637.000€, 245m²
















































637.000 €
2.600 € / m2
- Etažno grejanje
- Novo
- Opremljenost: Prazno - internet, interfon, klima, kanalizacija
- Oglas oglašava agencija pod reg. brojem 1564
- 1 garažno mesto
- 1 parking mesto
- Kanalizacija
- Objekat poseduje: video nadzor
- Kablovska
- 1 telefonska linija
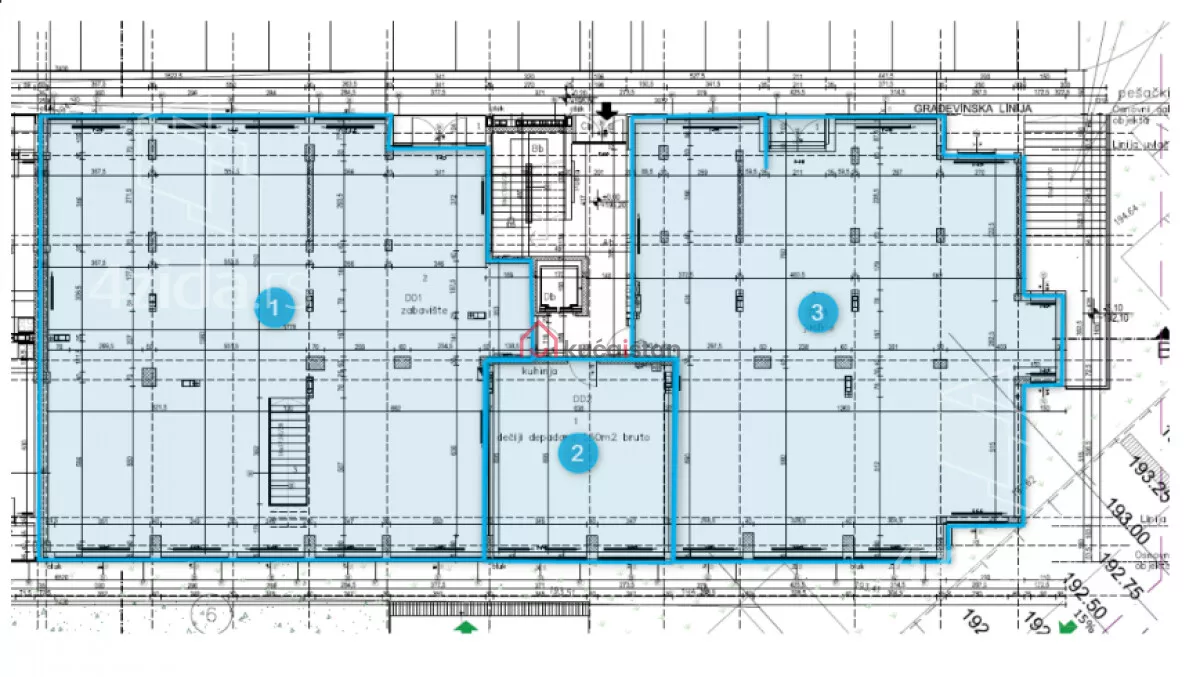
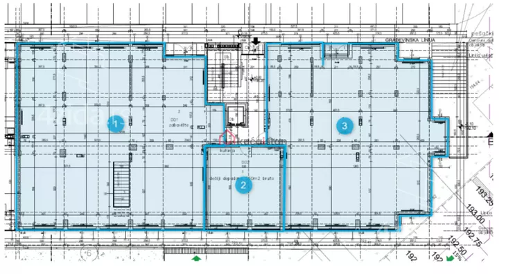
Opis oglasa
Višenamenski Lokal sa stabilnim zakupcem
Savremeni poslovni prostor smešten u prizemlju novoizgrađenog, reprezentativnog kompleksa, ukupne površine 245,01 m², pruža izvanredne uslove za različite tipove poslovanja!
*** Obezbeđen asfaltni prilaz i parking ispred objekta i u garaži.
*** Poseduje urednu dokumentaciju.
Prostor je projektovan i izgrađen u skladu sa najvišim građevinskim, ekološkim i bezbednosnim standardima.
Velika kvadratura i otvoren raspored omogućavaju fleksibilnu organizaciju enterijera, bilo da vam je potreban prodajni salon, kancelarijski prostor, showroom, ugostiteljski objekat ili kombinacija više namena.
Zahvaljujući poziciji u prizemlju, prostor ima odličnu vidljivost i pristupačnost, što je značajna prednost za poslovne aktivnosti koje zahtevaju direktan kontakt sa klijentima.
Dodatnu vrednost daje moderan izgled objekta, kvalitetna završna obrada, kao i kompletna tehnička oprema koja uključuje savremene instalacije, grejanje, klimatizaciju, ventilaciju i sigurnosne sisteme.
Karakteristike novogradnje:
- Spratnost objekta: 2Po + P + 4 + potkrovlje
- Armiranobetonska konstrukcija, zidovi od opeke, demit fasada
- Standardna visina, alu spoljašnja i drvena/aluminijumska/staklena unutrašnja stolarija
- Sigurnosna aluminijumska vrata sa staklom
- Podovi od keramike ili tekstila, plafoni armstrong ili malterisani
- Zidovi obojeni poludisperzivnom bojom, delimično obloženi keramikom
Tehnička oprema:
- Instalacije 220/380 V, voda, kanalizacija
- Električno grejanje, klima-uređaji i ventilacija
- Telekom priključci, video-nadzor, interfon, alarm
Lokacija:
Kombinacija razvijene poslovne zone i stabilne stambene zajednice znači da je potražnja za proizvodima i uslugama na ovom području stalno visoka, a priliv potencijalnih klijenata zagarantovan.
Zahvaljujući strateškom položaju i raznovrsnim pratećim sadržajima, Banjica je idealno mesto za otvaranje i razvoj biznisa, bilo da se radi o kancelarijskom, maloprodajnom ili uslužnom prostoru.
Banjica je jedna od najtraženijih lokacija u Beogradu kada je u pitanju kombinacija odlične povezanosti, razvijene infrastrukture i prijatnog okruženja. Nalazi se na svega nekoliko minuta vožnje od užeg centra grada, uz direktan pristup ključnim saobraćajnicama koje povezuju sve delove prestonice.
Agencija: Kuća i stan DOO,
Hadži Prodanova 14/1,
Beograd/Vračar,
Reg. br. agencije: 1564
*Sačuvaj oglas uz belešku i primaj obaveštenja o njihovom pojeftinjenju ili pojavljivanju sličnih
Kontakt oglašivača
Krediti OTP banke
Saznaj više
Prikazana rata odnosi se na maksimalni period otplate. Kalkulator je informativnog karaktera.
* Nakon isteka 5 godina, prelazi se na varijabilnu kamatnu stopu

