2-etažna kuća na prodaju, Palić, 230.000€, 170m²









































































































































230.000 €
1.353 € / m2
- Etaž: 2
- Površina: 170 m²
- Površina placa: 6.79a
- Grejanje na gas
- Renovirano
- Prostorije: kupatila (2), terasa
- Opremljenost: Namešteno - internet, klima
- Uknjiženo
- Oglas oglašava agencija pod reg. brojem 867
- 1 parking mesto
- Kablovska
- 1 telefonska linija
Opis oglasa
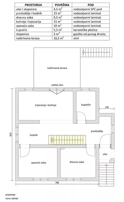
Potpuno renovirana porodična kuća od 170 m2. Nova unutrašnja vodovodna i kanalizaciona mreža, električni vodovi i instalacije, moderan gasni sistem centralnog grejanja i snabdevanja toplom vodom. Novi PVC prozori i vrata, automatska garažna vrata, toplotna izolacija krova i zidova. Na podovima su pločice i laminat. Pored toga, instalirana je i bezbednosna mreža, upravljanje ulazom, kamere i alarmni sistem.
Suteren ima garažu i radnu sobu, kao i prostranu vešernicu, koja je istovremeno i garderober, sa zadnjim vratima prema bašti.
Na visokom prizemlju nalazi se sve za svakodnevni život, uključujući dnevnu sobu, spavaću sobu, kupatilo sa tušem, kao i kuhinju i trpezariju, sa direktnim pristupom natkrivenoj terasi. U potkrovlju se nalaze dve spavaće sobe, kao i udobno kupatilo sa kadom, a ova prostorija je takođe obogaćena prostorom za odlaganje stvari.Kuća se prodaje sa opremljenom kuhinjom, ugradnim aparatima (frižider, zamrzivač, mašina za pranje sudova, ploča za kuvanje, rerna, aspirator), velikom komodom sa radnom pločom, kao i snežno beli nameštaj u dečijoj sobi.
Mirno okruženje, odličan pristup turističkom delu Palića (20 minuta hoda), a centru Palića 15 minuta hoda.
*Sačuvaj oglas uz belešku i primaj obaveštenja o njihovom pojeftinjenju ili pojavljivanju sličnih
Prikaz kuće na mapi
Obeležja kulture u blizini
- Vila Bagojvar - Sovina tvrđava7 min
- Velika terasa Palić8 min
- Dvorac Ingus15 min

Škole/Fakulteti/Vrtići u blizini
- Osnovna škola (Osnovna škola Miroslav Antić)14 min
- Srednja škola (Tehnička škola Ivan Sarić)16 min
- Vrtić (Dečiji vrtić Kekec)2 min
- Fakultet (Visoka škola strukovnih studija za obrazovanje vaspitača i trenera)14 min

- Bolnica (Bolnica Sveti Stefan)17 min
- Klinika (Poliklinika Kuća zdravlja)18 min
- Teretana (EMS Studio Maxifit)18 min
- Prodavnica (Supermarket Univerexport)13 min
- Restoran (Restoran Feher Akac)8 min
- Autobuska stanica (Orbanfalova)manje od 1 min
- Banka (NLB Komercijalna banka)14 min
- Pošta (Pošta Palić)12 min
Kontakt oglašivača
Krediti OTP banke
Saznaj više
Prikazana rata odnosi se na maksimalni period otplate. Kalkulator je informativnog karaktera.
* Nakon isteka 5 godina, prelazi se na varijabilnu kamatnu stopu





















