1-etažna kuća na prodaju, Makova Sedmica, 73.500€, 103m²
















































73.500 €
714 € / m2
- Etaž: 1
- Površina: 103 m²
- Površina placa: 37.19a
- Prostorije: kupatilo
- Oglas oglašava agencija pod reg. brojem 1034
Opis oglasa
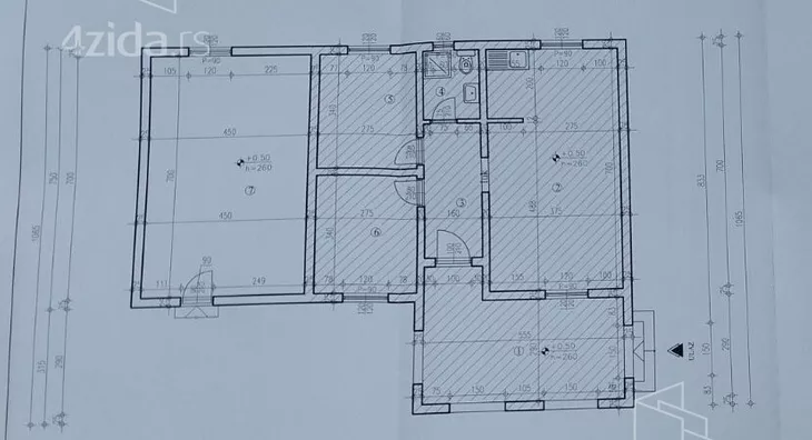
Subotica – Makova sedmica, prodaje se prizemna samostalna kuća površine 103kvm na placu površine 3719kvm. Kuća je građena 2007 godine od blokova, betonska ploča, demit fasada sa izolacijom od 5cm. U svom sastavu poseduje: ulazni veći hodnik, manji hodnik iz koga se ide u dve spavaće sobe, kupatilo i dnevnu sobu sa kuhinjom i trpezarijom. Sa dvorišne strane se ulazi u još jednu odvojenu veliku prostoriju-sobu, koja se može pripojiti ostatku kuće! Vrata su PVC i Aluminijumska, a prozori su drveni sa duplim staklima, grejanje je na čvrsto gorivo ili na struju, na podovima u sobama su laminati dok je u kuhinji, hodniku i kupatilu keramika, tfs, dva bušena bunara, septička jama. U ulici je nasut tucanik i u budućnosti se očekuje priključak na gradsku vodu i kanalizaciju i dobijanje asvalta. Udaljenost do glavne asfaltirane ulice je 250m. Uredni papiri, vlasništvo 1/1, trenutno ne može na kredit! Red. br. 25-49
*Sačuvaj oglas uz belešku i primaj obaveštenja o njihovom pojeftinjenju ili pojavljivanju sličnih
Prikaz kuće na mapi
Obeležja kulture u blizini
- Palata Rajhl23 min
- Leović palata24 min
- Spomenik Ivanu Sariću24 min

Škole/Fakulteti/Vrtići u blizini
- Osnovna škola (Osnovna škola Majšanski put)19 min
- Srednja škola (Tehnička škola Ivan Sarić)24 min
- Vrtić (Dečiji vrtić Snežana)14 min
- Fakultet (Visoka škola strukovnih studija za obrazovanje vaspitača i trenera)22 min

- Bolnica (Bolnica Sveti Stefan)24 min
- Klinika (Poliklinika Megaclinic)25 min
- Teretana (EMS Studio Maxifit)26 min
- Prodavnica (Supermarket Univerexport)29 min
- Autobuska stanica (Slovinov Put)24 min
- Banka (OTP banka)23 min
- Pošta (Pošta Subotica 10)18 min
Kontakt oglašivača
Krediti OTP banke
Saznaj više
Prikazana rata odnosi se na maksimalni period otplate. Kalkulator je informativnog karaktera.
* Nakon isteka 5 godina, prelazi se na varijabilnu kamatnu stopu


