1-etažna kuća na prodaju, Kosmaj, 355.000€, 205m²
















355.000 €
1.732 € / m2
- Etaž: 1
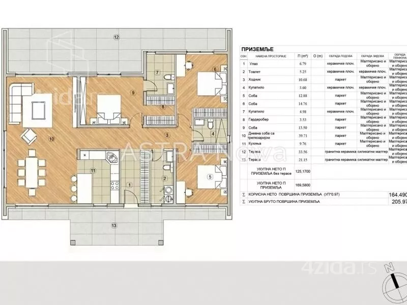
- Površina: 205 m²
- Centralno grejanje
- Novo
- Prostorije: kupatilo, terasa
- Opremljenost: Prazno - internet
- Nije uknjiženo
- Oglas oglašava agencija pod reg. brojem 1567
- 1 garažno mesto
- 1 parking mesto
- 1 telefonska linija
Opis oglasa
Savremena vila u izgradnji na premium lokaciji - nadomak vrha Kosmaja i u blizini restorana La Montanja Useljiva 1. juna 2026. 205m2 bruto površine na placu od 20 ari Tri spavaće sobe, prostran dnevni boravak sa trpezarijom i kuhinjom, dve terase, garderober, dva kupatila i toalet. Gradnja visokog kvaliteta, savremeni materijali i pažljivo planirana funkcionalnost prostora. Bazen 12x4,5m2 Okružena borovima Otvoren pogled i mirna lokacija Privatnost, kvalitet i dugoročna vrednost na jednoj od najtraženijih lokacija. Cena: 355.000 eura + pdv 10% Informacije - razgledanje: 063... (prikaži broj telefona) Ag. Provizija 2%, po realizaciji
*Sačuvaj oglas uz belešku i primaj obaveštenja o njihovom pojeftinjenju ili pojavljivanju sličnih
Prikaz kuće na mapi
Obeležja kulture u blizini
- Spomenik palim borcima Drugog svetskog rata6 min
- Spomen kosturnica na Belom kamenu10 min
- Stari han17 min

Škole/Fakulteti/Vrtići u blizini
- Osnovna škola (Osnovna škola Bakčine)13 min
- Srednja škola (Ekonomsko-trgovinska škola Sopot)18 min
- Vrtić (Predškolska ustanova Naša radost Sopot)18 min
- Fakultet (Visoka tehnološka škola strukovnih studija)42 min

- Bolnica (Institut za rehabilitaciju Banja Selters)22 min
- Klinika (Poliklinika Sveti Stefan)46 min
- Restoran (Restoran Vilino korito)22 min
- Autobuska stanica (Kosmaj - Zlatar)18 min
- Banka (Poštanska štedionica)17 min
- Pošta (Pošta Koraćica)13 min
Kontakt oglašivača
Krediti OTP banke
Saznaj više
Prikazana rata odnosi se na maksimalni period otplate. Kalkulator je informativnog karaktera.
* Nakon isteka 5 godina, prelazi se na varijabilnu kamatnu stopu


