2-etažna kuća na prodaju, Artiljevo 3 10, 275.000€, 80m²


























































275.000 €
3.438 € / m2
Za ovaj oglas se neko interesovao. Pozovi ranije kako ne bi propustio priliku.
- Vikendica
- Etaž: 2
- Površina: 80 m²
- Površina placa: 26a
- Grejanje na klimu
- Renovirano
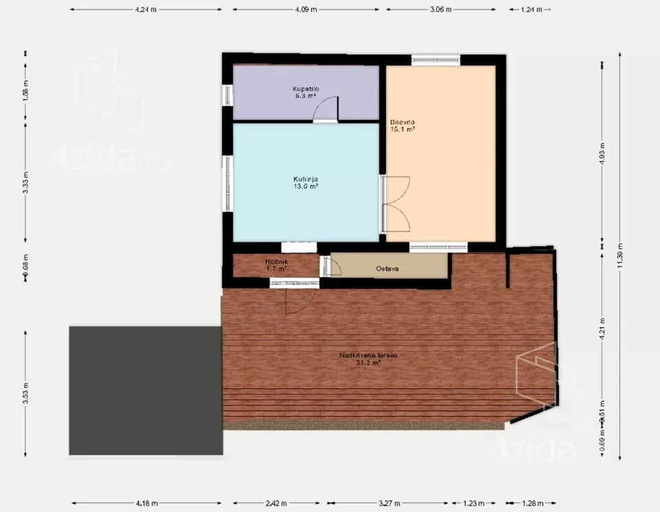
- Prostorije: kupatilo, toalet, kuhinja, ostava, terase (3+)
- Opremljenost: Namešteno - internet, TV, klima, veš mašina, kuhinjski elementi, sudo mašina, frižider, zamrzivač, mikrotalasna rerna, šporet, rerna, ležaj, plakar, ugradni plakar
- Pogled na: dvorište
- Uknjiženo
- Kupovina direktno od vlasnika
- 1 garažno mesto, garaža u sklopu zgrade
- 4 parking mesta
- Objekat poseduje: dvorište, tavan
- Tip interneta: bežični
- Autobuske linije: 74
Opis oglasa
Na prodaju kuća od 80m2 na placu od 26 ari na Artiljevu (Popovica), na prelepoj lokaciji nadomak Novog Sada.
Cena je po dogovoru!
Lokacija:
Kuća se nalazi na 800 metara od okretnice autobusa 74 (popovica). Udaljenost od Mosta Slobode je 9km, a od centra Novog Sada je 11km.
Smeštena je u mirnom delu, daleko od novogradnje i gužve, a opet se do svega lako i brzo stiže. Do kuće vodi novi put, asfaltiran pre par godina.
Plac:
Plac je kosi i ima ukupnu površinu od 2580m2, od čega je zemljište pod objektima uknjiženo kao građevinsko, dok je ostatak uknjižen kao Vinograd 3.klase, što čini porez veoma malim. Ceo plac je ograđen i ima kliznu kapiju koja se otvara na daljinski. Postoje dva parking mesta na placu, kao i garaža, ali moguće je parkirati i više automobila po potrebi.
Kuća:
Glavni objekat je uknjižen kao vikend kuća i sastoji se od kuće koja ima 80 kvadrata (uknjižena osnova od 41), natkrivene terase od 35 kvadrata, otkrivene terase od 15 kvadrata i balkona od 3 kvadrata. Kuća ima prizemlje, sprat i tavan.
Kuća je starije gradnje (ne znam tačnu godinu), ali je održavana i renovirana. Kuća je odlično toplotno izolovana i ima demit fasadu. Pre 3 godine je stavljena komplet nova PVC stolarija visokog kvaliteta sa trostrukim stakima i REHAU profilima sa teksturom drveta koja se odlično uklapa u ambijent. Unutrašnjost je tada takođe renovirana, uključujući struju, vodu, kupatilo, kuhinju, stepenice, zidove, podove i ugradnju klime. Na natkrivenoj terasi su postavljene pločice sa drvenom teksturom.
Za grejanje se koristi klima koja zagreva ceo donji sprat, dok su sobe i kupatilo opremljene električnim konvektorskim radijatorima. U kući su takođe dve pećke na drva koje se nekad koriste, mada je jedna dovoljna da zagreje sve.
Kuća ima struju i vodu a gas je dostupan na ulici. Za internet koristimo bežični kućni internet putem 4G mreže koji radi sasvim OK. Nisam siguran da li postoji tehnička mogućnost za nešto drugo. Total TV funkcioniše dobro za gledanje TV-a.
Drugi objekti
Na placu se takođe nalazi i drveni objekat od 19m2 koji je takođe uknjižen kao vikend kuća, kao i limena garaža.
Kontakt:
Prodaja je direktno od vlasnika. Trenutno sam u inostranstvu (Holandija) pa me kontaktirajte putem Vibera ili WhatsApp-a, telefon: +31629318592. Uvek je neko prisutan u kući, tako da ćemo lako organizovati gledanje.
*Sačuvaj oglas uz belešku i primaj obaveštenja o njihovom pojeftinjenju ili pojavljivanju sličnih
Prikaz kuće na mapi
Obeležja kulture u blizini
- Kuća iz 1797. godine9 min
- Kuća Jovana Jovanovića Zmaja10 min
- Dvorac Marcibanji-Karačonji11 min

Škole/Fakulteti/Vrtići u blizini
- Osnovna škola (Osnovna škola Jovan Jovanović Zmaj)11 min
- Srednja škola (Francusko-srpska gimnazija Petar I od Srbije)12 min
- Vrtić (Dečiji vrtić Zmaj)10 min
- Fakultet (Educons Univerzitet)12 min

- Bolnica (Kovid bolnica Novi Sad)15 min
- Klinika (Poliklinika SELECTA)20 min
- Teretana (Joga Yogaja Studio)12 min
- Prodavnica (Expeto market)36 min
- Autobuska stanica (Popovica - Fruškogorski Put - Okretnica)11 min
- Banka (Poštanska štedionica)10 min
- Pošta (Pošta Sremska Kamenica 21208)9 min
Kontakt oglašivača

Za ovaj oglas se neko interesovao. Pozovi ranije kako ne bi propustio priliku.
Krediti OTP banke
Saznaj više
Prikazana rata odnosi se na maksimalni period otplate. Kalkulator je informativnog karaktera.
* Nakon isteka 5 godina, prelazi se na varijabilnu kamatnu stopu
