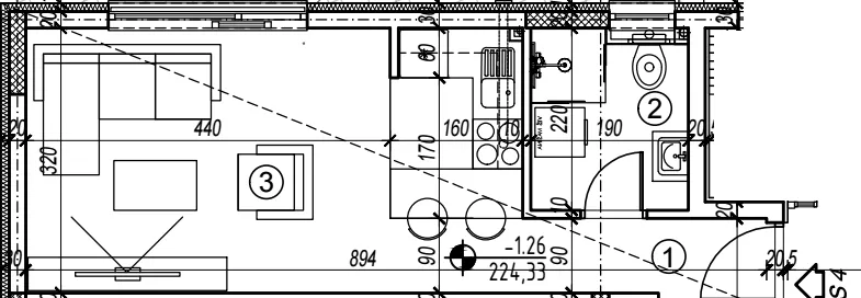
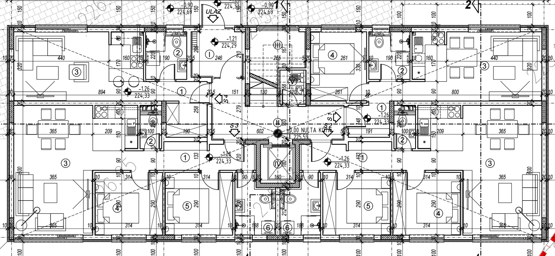
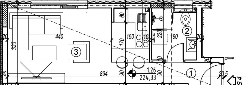
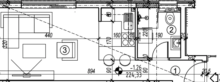
Jednosoban stan na prodaju, Novogradnja, Raj, 42094€, 29.03m²
Raj, Gradske lokacije, Vrnjačka Banja



od 42.094 €
1.450 € / m2
Jednosoban stan
29.03m²
Suteren/5 spratova
Nije uknjiženo
- Status izgradnje: U izgradnji
- Status prodaje: Na prodaju
- Etažno grejanje
- Energent: Struja
- Materijal gradnje: Monolitna cigla
- Stolarija: Kombinovano
- Podovi: Pločice
- Energetski pasoš: Da
- Prodaja parkinga: Dostupno
- 4 lifta
- Kalorimetar: Da
- Godina izgradnje: 2027.
Ovaj oglas je deo projekta
Raj Residence Vrnjačka Banja
Minder DooRaj, Gradske lokacije, Vrnjačka Banja

O projektu oglašivača Minder Doo
RAJ Residence je savremen stambeno-turistički kompleks
Krediti OTP banke
Bez troškova obrade kredita
NKS 4.50% - EKS 5.74%
Period otplate 96 -360 meseca
Saznaj više
Prikazana rata odnosi se na maksimalni period otplate. Kalkulator je informativnog karaktera.
* Nakon isteka 5 godina, prelazi se na varijabilnu kamatnu stopu
Osiguranje domaćinstva online
Osiguraj svoje domaćinstvo u slučaju požara...
