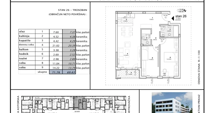
Trosoban stan na prodaju, Novogradnja, Telep, 69.63m²


Cena na upit
- Status izgradnje: U izgradnji
- Status prodaje: Na prodaju
- Etažno grejanje
- Energent: Gas
- Materijal gradnje: Građevinski blok
- Stolarija: PVC
- Podovi: Tarket
- Energetski pasoš: Da
- Prodaja parkinga: Dostupno
- 2 lifta
- Kalorimetar: Da
- Godina izgradnje: 2026.
Ovaj oglas je deo projekta
Kotorska 2

O projektu oglašivača STABILNOST DOO Novi Sad
Novi kompleks od 52 stana na Telepu nudi jednu od najtraženijih lokacija za stanovanje u Novom Sadu. Nedaleko od limana 4, plaže Šordoš i Dunavske obale, pruža se prilika za život u atraktivnoj novogradnji. Stanovi su konkurentnih cena, među kojima dominiraju najtraženije strukture: dvosobni stanovi od oko 40m2 i trosobni stanovi od oko 65m2. Ovo je idealna prilika za porodično stanovanje ili investiciju jer se nalazi u mirnom ali ključnom delu grada. Kvalitet po meri savremenog čoveka Projekat se ističe visokokvalitetnom gradnjom i opremljenim enterijerima, uključujući troslojni parket, PVC stolariju, keramiku i sanitarije renomiranih brendova. Objekat je modernog izgleda, sa elegantnim listelama i rasvetom na fasadi. Grejanje na gas osigurava komfor, dok se troškovi obračunavaju prema individualnom utrošku preko kalorimetara. Demit fasada u kombinaciji sa ukrasnim listelama i rasvetom Fasadna izolacija od termo bloka debljine 25 cm i stiroporom od 12 cm Sobe i hodnici: Tarkett laminirani troslojni parket Višekomorna PVC stolarija sa troslojnim niskoemisionim staklima punjenim argonom Ulazna sigurnosna vrata Sobna vrata u beloj boji od medijapana, visine 220 cm Italijanska keramika I klasa Sanitarije renomiranih proizvođača iz EU (Geberit) Terase: parapet + prohromska ograda, protivklizna keramika Grejanje na gas sa kalorimetrima Priprema za klima uređaje u svakom stanu. Novom Sadu Novogradnja se nalazi u centralnoj ulici na Telepu, omogućavajući jednostavnu i brzu vezu sa Limanom 4 i ostatkom grada. Telep je poznat kao miran, ali ključno pozicioniran deo Novog Sada, koji pruža savršen balans između urbanog života i privatnosti. Ovaj projekat se nalazi u mirnom i povučenom okruženju, ali je strateški smešten u blizini svih ključnih infrastrukturnih objekata i ustanova, što ga čini idealnim izborom za porodični život. Vrtić "Dunavski cvet" - 850 m Predškolska ustanova "Bambino" - 500 m Privatna predškolska ustanova "Lilipit" - 250 m Osnovna škola "Jožef Atila" - 800 m IDEA market - 50 m Wellness Training & Spa - 300 m Šordoš plaža - 800 m.
Stambeni krediti
- Period otplate od
96 -360 meseca
- NKS 4.34%
Kombinovana kamatna stopa
- Bez troškova obrade kredita
- Odobrenje kredita do 48h
- Period otplate od
96 -360 meseca
- NKS 4.75%
EKS 5.74%
Fiksna kamatna stopa
- Bez troškova obrade kredita
stranici kreditnih kalkulatora
Keš krediti
Period otplate
13 meseci