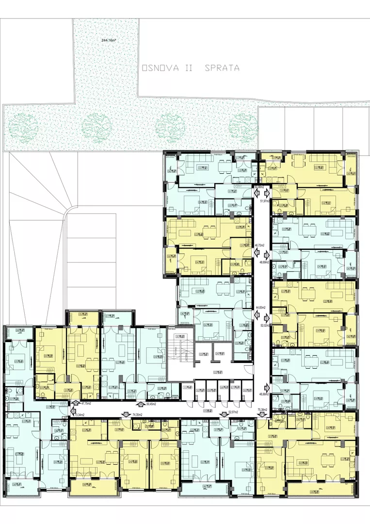
Dvosoban stan na prodaju, Novogradnja, Preki Šor, 100235€, 52.07m²












od 100.235 €
1.925 € / m2
- Status izgradnje: U planu
- Status prodaje: Na prodaju
- Centralno grejanje
- Materijal gradnje: Termo blok
- Stolarija: Aluminijum
- Podovi: Tarket
- Energetski pasoš: Da
- Prodaja parkinga: Dostupno
- 2 lifta
- Kalorimetar: Da
- Godina izgradnje: 2027.
Ovaj oglas je deo projekta
Lux Garden

O projektu oglašivača Nikolić nekretnine
U ponudi su stanovi u modernoj zgradi spratnosti P+4+5 (povučeni sprat) na odličnoj lokaciji u Šabac, u neposrednoj blizini Veliki park – idealno za porodičan život, šetnju i rekreaciju.
🔹 Kvadrature stanova od 45m² do 92m²
🔹 Centralno grejanje na toplanu sa kalometrima (plaćanje po potrošnji)
🔹 ALU stolarija
🔹 Klima uređaj
🔹 Kvalitetna i savremena gradnja
🔹 Zgrada poseduje dva lifta
Stanovi su funkcionalnog rasporeda, sa dosta prirodne svetlosti i pažljivo biranim materijalima, pružajući visok nivo komfora i dugoročnu vrednost investicije.
💰 PROMO CENA: 1.750€ + PDV
Odlična prilika kako za život, tako i za sigurnu investiciju na traženoj lokaciji.
Krediti OTP banke
Saznaj više
Prikazana rata odnosi se na maksimalni period otplate. Kalkulator je informativnog karaktera.
* Nakon isteka 5 godina, prelazi se na varijabilnu kamatnu stopu

