Jednoiposoban stan na prodaju, Novogradnja, Trošarina, 92170€, 48.51m²


od 92.170 €
1.900 € / m2
- Status izgradnje: U izgradnji
- Status prodaje: Na prodaju
- Etažno grejanje
- Materijal gradnje: Termo blok
- Stolarija: Aluminijum
- Podovi: Parket
- Energetski pasoš: Da
- Prodaja parkinga: Dostupno
- Nema lift
- Kalorimetar: Ne
- Godina izgradnje: 2026.
Ovaj oglas je deo projekta
Moderno dizajnirana novogradnja na Trošarini sa povraćajem PDV-a

O projektu oglašivača Proagent nekretnine
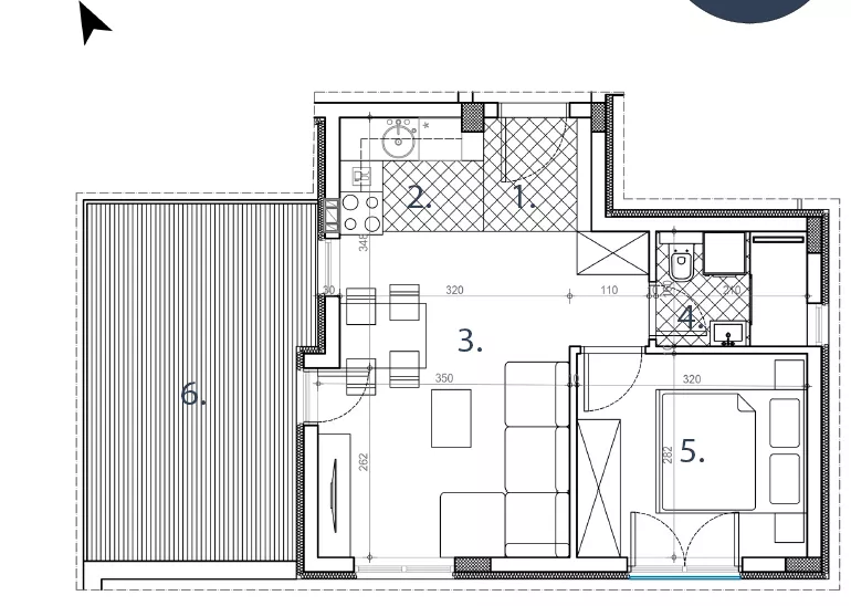
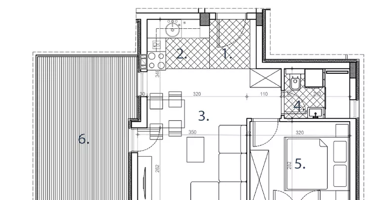
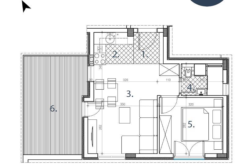
U ponudi je stambeni objekat spratnosti Su+P+2+Ps, smešten na dobroj lokaciji, u mirnijem delu grada na Trošarini. U gradnji se koriste visokokvalitetni materijali: fasadni zidovi će biti obloženi termoizolacijom i imaju povećanu debljinu, spoljašnji zidovi od bloka debljine 20cm, koji obezbeđuje vrhunsku zvučnu i termoizolaciju,podovi će biti obloženi parketom, dok će podovi kuhinje i kupatila biti obloženi kvalitetnom keramikom, biće postavljena stolarija sa roletnama i razvedena instalacija za grejanje. Nalazi se u blizini škole, vrtića, sportskog centra, odlično je povezan sa svim delovima grada i predstavlja pravo mesto za Vaš kvalitetan i komforan porodičan život. U cenu je uključen PDV i kupci prvog stana imaju pravo na povraćaj PDV-a u iznosu od 10%.
Krediti OTP banke
Saznaj više
Prikazana rata odnosi se na maksimalni period otplate. Kalkulator je informativnog karaktera.
* Nakon isteka 5 godina, prelazi se na varijabilnu kamatnu stopu

