Reklama

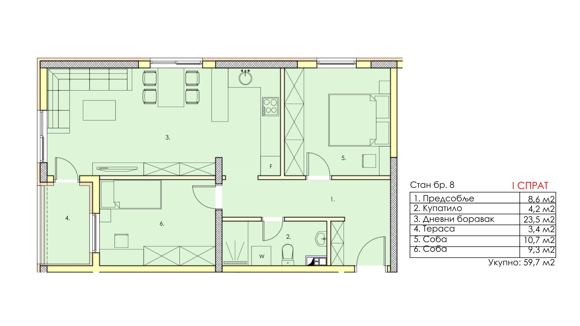
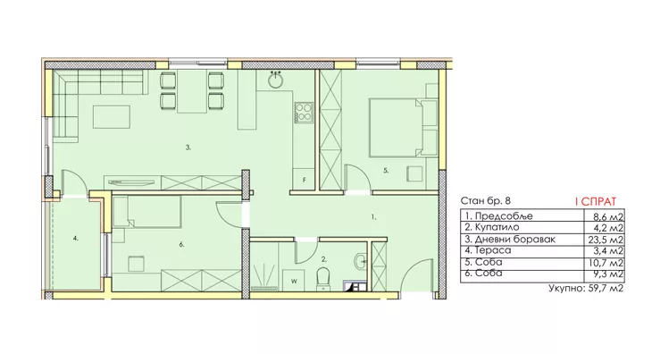
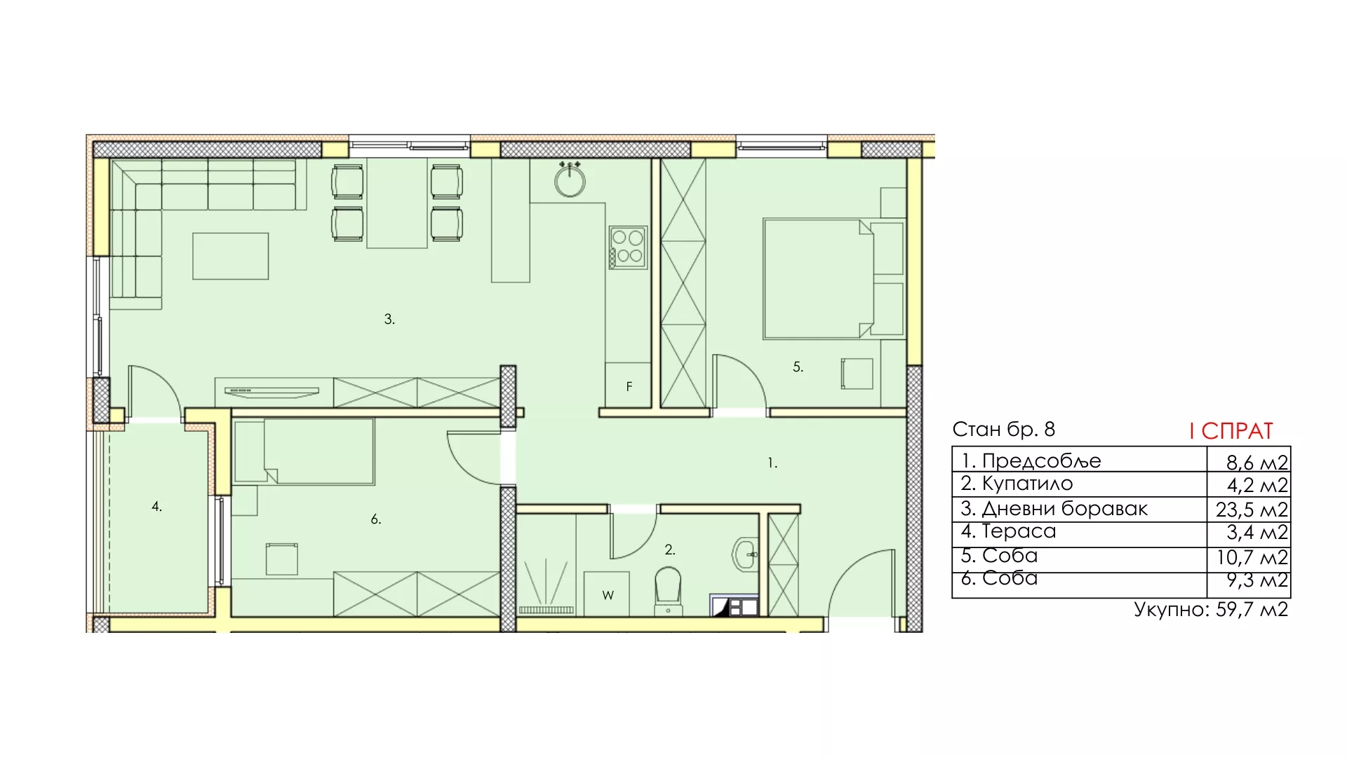
Dvoiposoban stan na prodaju, Novogradnja, Centar, 80595€, 59.7m²

Centar, Gradske lokacije, Jagodina
Dvoiposoban stan | 4zida
Dvoiposoban stan | 4zida

od 80.595 €

1.350 € / m2

Dvoiposoban stan
59.7m²
1/5 spratova
Uknjiženo

O stanu
  • Status izgradnje: U izgradnji
  • Status prodaje: Na prodaju
O zgradi
  • Podno grejanje
  • Energent: Gas
  • Materijal gradnje: Termo blok
  • Stolarija: PVC
  • Podovi: Pločice
  • Prodaja parkinga: Dostupno
  • 1 lift
  • Kalorimetar: Ne
  • Godina izgradnje: 2027.

Ovaj oglas je deo projekta
Aura 10

Heroldo NekretnineCentar, Gradske lokacije, Jagodina
pozadinska slika

O projektu oglašivača Heroldo Nekretnine

Započeta je izgradnja nove stambene zgrade koja objedinjuje moderan dizajn, funkcionalnost i udobnost savremenog života. U ponudi su stanovi različitih struktura i kvadratura – od 31,6m² do 67,4m², idealni kako za mlade parove i pojedince, tako i za porodice koje žele mir, sigurnost i kvalitetan dom. Cena: 1.350 €/m² sa PDV-om Parking mesto uključeno u cenu! Mogućnost kupovine garažnog mesta u podrumu zgrade! KVALITET I SIGURNOST KOJI SE OSEĆAJU Gradnja se izvodi po najvišim standardima: • Termo blok + stiropor izolacija 10cm – odlična toplotna i zvučna zaštita • Podno grejanje – keramika na podovima za savršen komfor • Grejanje na gas za stanove preko 50m², kotao na struju za manje stanove • Ugrađen vodomer i visoka energetska efikasnost • Klima uređaj u svakom stanu • Lift u zgradi • PVC stolarija vrhunskog kvaliteta i alu roletne sa elektro podizačima LOKACIJA KOJA NUDI MIR I BLIZINU SVEGA Zgrada se nalazi u mirnom delu grada, savršenom za porodičan život, a ipak na samo 500 metara od centra. Bolnica, škole, marketi, apoteke, pošta i svi bitni sadržaji nalaze se u neposrednoj blizini – sve što vam je potrebno, dostupno je pešice. ZAŠTO OVAJ PROJEKAT? ✔ Pouzdan investitor sa iskustvom ✔ Izuzetna energetska efikasnost i niski troškovi održavanja ✔ Parking mesto obezbeđeno uz svaki stan, osim za garsonjere ✔ Mogućnost kupovine garaže ✔ Savršena kombinacija kvaliteta, lokacije i cene ✔ Odlična investicija – i za život i za izdavanje Useljenje po završetku radova, a rezervacije su već u toku! Ne čekajte – rezervišite svoj novi dom na vreme!





Krediti OTP banke

OTP bank logo

Bez troškova obrade kredita
NKS 4.50% - EKS 5.74%
Period otplate 96 -360 meseca

Saznaj više

Prikazana rata odnosi se na maksimalni period otplate. Kalkulator je informativnog karaktera.

* Nakon isteka 5 godina, prelazi se na varijabilnu kamatnu stopu


Osiguranje domaćinstva online

Osiguraj svoje domaćinstvo u slučaju požara...