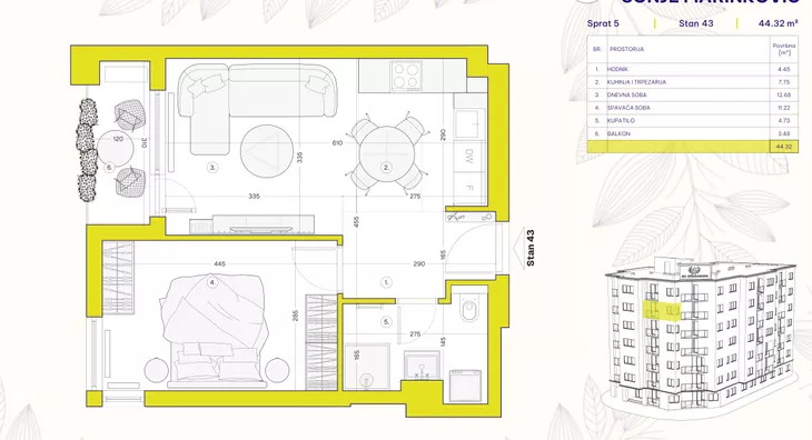
Jednoiposoban stan na prodaju, Novogradnja, Centar 3, 82878€, 44.32m²
Centar 3, Gradske lokacije, Subotica

od 82.878 €
1.870 € / m2
Jednoiposoban stan
44.32m²
5/6 spratova
U procesu uknjižavanja
- Status izgradnje: U izgradnji
- Status prodaje: Na prodaju
- Centralno grejanje
- Energent: Gas
- Materijal gradnje: Termo blok
- Stolarija: PVC
- Podovi: Tarket
- Energetski pasoš: Da
- Prodaja parkinga: Dostupno
- 1 lift
- Kalorimetar: Da
- Godina izgradnje: 2027.
Ovaj oglas je deo projekta
Ugao Sonje Marinković i Matije Gupca
MD INŽENJERING SU D.O.O.Centar 3, Gradske lokacije, Subotica

O projektu oglašivača MD INŽENJERING SU D.O.O.
Ugao Sonje Marinković i Matije Gupca- VIŠEPORODIČNI STAMBENI OBJEKAT
Krediti OTP banke
Bez troškova obrade kredita
NKS 4.50% - EKS 5.74%
Period otplate 96 -360 meseca
Saznaj više
Prikazana rata odnosi se na maksimalni period otplate. Kalkulator je informativnog karaktera.
* Nakon isteka 5 godina, prelazi se na varijabilnu kamatnu stopu
Osiguranje domaćinstva online
Osiguraj svoje domaćinstvo u slučaju požara...

