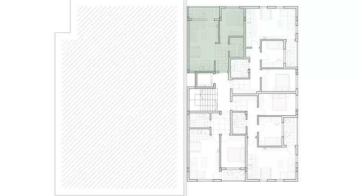
Jednoiposoban stan na prodaju, Novogradnja, Čair, 41m²
OBIĐI 3D TURU



















































Cena na upit
- Status izgradnje: U izgradnji
- Status prodaje: Prodato
- Materijal gradnje: Građevinski blok
- Stolarija: Aluminijum
- Podovi: Parket
- Energetski pasoš: Da
- Prodaja parkinga: Dostupno
- 2 lifta
- Kalorimetar: Ne
- Godina izgradnje: 2025.
Ovaj oglas je deo projekta
Residence 39 | Čair, Novi Klinički

O projektu oglašivača DAMBO | Dom izuzetnih nekretnina
Od 2006. godine, Dambo Company gradi objekte koji nisu samo stambeni prostori, već domove koji su oaze mira i sigurnosti. Pridržavajući se stroge prakse dobrog planiranja i izgradnje, svesni važnosti pravih majstorskih veština, započinjemo izgradnju još jednog projekta u srcu Niša – Residence 39.
Residence 39: Vaša oaza mira ispunjena svetlošću
Residence 39 predstavlja život u najlepšem svetlu – prirodnom. Prvo što ćete primetiti na objektu jesu veliki prozori, u punoj spratnoj visini, koji svaki stan čine prozračnim. Niski parapeti omogućavaju maksimalno iskorišćavanje svetlosti, što ova vrhunska lokacija pruža.
Objekat se sastoji iz dve lamele i ukupno ima 36 stanova. U prvoj lameli se nalaze jednoiposobni stanovi od 41 i 43 kvadratna metra i dvoiposobni stanovi od 59 i 60 kvadratnih metara. U drugoj lameli su stanovi sa jednom spavaćom sobom površina od 40, 44 i 50 metara kvadratnih i stanovi sa dve spavaće sobe od 52 i 72 kvadratna metra.
Residence 39 je udaljen od svih okolnih objekata, pa su svi stanovi osunčani i ne morate brinuti da će vaš pogled ikada biti zaklonjen novogradnjom. Objekat Residence 39 odražava stil, komfor i kvalitet, opremljen najsavremenijim tehnologijama, dizajniran da zadovolji sve vaše potrebe za savremenim životom.
Fasada i spoljni zidovi koriste klima blok i termoizolaciju koji daju energetski nivo B. Akustični zidovi između stanova i troslojna međuspratna zvučna izolacija sa integrisanom folijom za zaštitu od udarne buke osiguravaju mir i tišinu.
Kupatila su opremljena ekskluzivnim Porcelanosa programom. Tarkett parket premium selekcija sa garancijom od 30 godina nalazi se u svakom stanu. Odabirom ponuđenih paketa enterijera možete personalizovati vaš stan i stvoriti jedinstvenu atmosferu u vašem domu.
Novi objekat Residence 39 u naprednim paketima opreme primenjuje hotelski sistem grejanja i hlađenja, bez vidljivih grejnih tela. Ventilacioni sistem omogućava prenos hladnog i toplog vazduha, dok su kupatila opremljena podnim grejanjem. Svaki stan ima svoju toplotnu pumpu koja napaja sisteme za hlađenje i grejanje. U odeđenim paketima opreme, ovaj način grejanja omogućava kontrolu temperature svake prostorije pojedinačno.
Visokokvalitetni materijali za vaš dom iz snova.
Znamo koliko je važno imati mogućnost izbora, zato vam nudimo tri različita paketa opreme za vaš dom. Svaki paket uključuje savršene podove i vrhunsko kupatilo.
Residence 39 predstavlja više od prostora za život – to je spoj inovacije, udobnosti i održivosti. Zakoračite u budućnost.
Dobrodošli u Residence 39.
Stambeni krediti
- Period otplate od
96 -360 meseca
- NKS 4.50%
EKS 5.74%
Fiksna kamatna stopa
- Bez troškova obrade kredita
- Period otplate od
96 -360 meseca
- NKS 4.34%
Kombinovana kamatna stopa
- Bez troškova obrade kredita
- Odobrenje kredita do 48h
stranici kreditnih kalkulatora
Keš krediti
Period otplate
13 meseci- Period otplate od 13 -71 mesec
- NKS 10.55%
- EKS od 10.87%
- Za klijente banke
mesečno
