Dvoiposoban stan za izdavanje, Slobodana Jovanovića, 450€, 67m²






































- Odmah useljivo
- Kvadratura: 67m²
- Na 1. spratu od ukupno 4 sprata
- Uobičajeno stanje
- Oglas oglašava agencija pod reg. brojem 759
- Zgrada poseduje: lođa
Opis oglasa
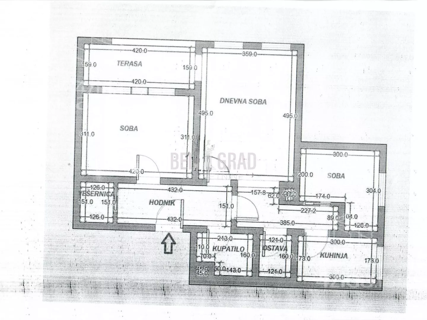
Višnjička banja, Slobodana Jovanovića, Energoprojektove zgrade, crvena fasadna cigla, dvoiposoban, 67m2, sprat 1/4, grejanje CG, lođa, namešten. Stan se nalazi u poznatim zgradama od crvene fasadne cigle, koje je osamdesetih godina projektovao i gradio Energoprojekt. Dvostrano je orijentisan i odlično osvetljen. Pozicioniran je na prvom spratu, u četvorospratnici sa urednim ulazom i dobrim prilazom. U okruženju zgrade postoje velike zelene površine, parkovi i prostor za parkiranje. Lokacija je odlično povezana sa centrom grada. Do Trga Republike, linijom 35, potrebno je samo 20 minuta. Stan se izdaje kao namešten. Plaćanje je mesečno uz obavezan depozit u visini jedne mesečne zakupnine. Infostan je 12.000 dinara. Prostorije: predsoblje, dnevni boravak sa trpezarijom, dve spavaće sobe, kuhinja, kupatilo, perionica, ostava, velika lođa. Agencijska provizija se plaća u iznosu 50% od ugovorene mesečne zakupnine + PDV
*Sačuvaj oglas uz belešku i primaj obaveštenja o njihovom pojeftinjenju ili pojavljivanju sličnih
Prikaz stana na mapi
Parkovi u blizini
- Zvezdarska šuma43 min
- Supernatural park49 min

Obeležja kulture u blizini
- Tripod14 min
- Spomenik Oslobodiocima Beograda17 min
- Kuća Milutina Milankovića17 min

Škole/Fakulteti/Vrtići u blizini
- Osnovna škola (Osnovna škola Milena Pavlović Barili)6 min
- Srednja škola (Srednja tehnička PTT škola)10 min
- Vrtić (Dečiji vrtić Čupko)4 min
- Fakultet (Univerzitet u Beogradu Pravoslavni bogoslovski fakultet)14 min

- Bolnica (Opšta bolnica Medical centar)13 min
- Klinika (Klinika Impuls)6 min
- Teretana (AB Fitness)1 min
- Prodavnica (Soulfood market)1 min
- Restoran (Restoran Etno bašta)13 min
- Kafana (Local Pub 2)28 min
- Taksi stajalište (Taxi stanica)7 min
- Autobuska stanica (Toplana)2 min
- Tramvajska stanica (Omladinski Stadion)48 min
- Trolejbuska stanica (Miloša Jankovića)50 min
- Banka (UniCredit Bank)10 min
- Pošta (Pošta Beograd 110)2 min
Kontakt oglašivača
Krediti OTP banke
Period otplate
13 mesecimesečno
Period otplate 13 - 71 mesec
Saznaj više

