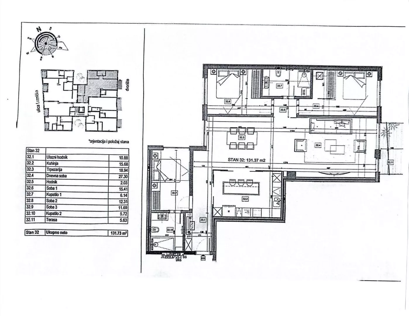
Četvorosoban stan za izdavanje, Loznička, 1.900€, 131m²




















































- Kvadratura: 131m²
- Na 5. spratu od ukupno 6 spratova
- Novo
- Prostorije: terasa
- Opremljenost: Namešteno - interfon, klima
- Oglas oglašava agencija pod reg. brojem 331
- 1 lift
- Godina izgradnje: 2024.
Opis oglasa
Potpuno nov, neuseljavan stan u zgradi sa portirom. Južno orjentisan. Dnevni boravak ima izlazak na terasu koja je okrenuta ka mirnom dvorišnom delu, povezan sa trpezarijskim prostorom i kompletno opremljenom otvorenom kuhinjom. Ima tri spavaće sobe i dva kupatila. Puno ugradnih plakara i male režijske troškove jer je grejanje i hlađenje preko toplotne pumpe. Mogućnost zakupa parking mesta u zgradi.
Brand new, non-use apartment in a building with a doorman. South oriented. The living room has an exit to the terrace, which faces the quiet courtyard area, connected to the dining area and a fully equipped open kitchen. It has three bedrooms and two bathrooms. Lots of built-in closets and low overhead costs because the heating and cooling is via a heat pump. The possibility of renting a parking space in the building.
*Sačuvaj oglas uz belešku i primaj obaveštenja o njihovom pojeftinjenju ili pojavljivanju sličnih
Prikaz stana na mapi
Parkovi u blizini
- Park Ćirila i Metodija8 min
- Park vojvode Petra Bojovića8 min
- Čuburski park11 min

Obeležja kulture u blizini
- Spomenik Ćirilu i Metodiju8 min
- Spomenik Puškinu9 min
- Spomenik Vuku Karadžiću9 min

Škole/Fakulteti/Vrtići u blizini
- Osnovna škola (Osnovna škola Jovan Miodragović)4 min
- Srednja škola (Srednja škola Arhimed)4 min
- Vrtić (Dečiji vrtić Diznilend)2 min
- Fakultet (Univerzitet u Beogradu Geografski fakultet)4 min

- Bolnica (Specijalna bolnica za oftalmologiju Miloš Klinika)2 min
- Klinika (Poliklinika Panacea)7 min
- Teretana (Fitness studio Be fit)1 min
- Prodavnica (IDEA)1 min
- Restoran (Bar Loznička 11)manje od 1 min
- Kafana (Pab Pivodrom)2 min
- Taksi stajalište (Taxi stanica)4 min
- Autobuska stanica (Pijaca „Kalenić“)7 min
- Tramvajska stanica (Vukov spomenik)10 min
- Trolejbuska stanica (Vojvode Dragomira)6 min
- Banka (Addiko Bank)6 min
- Pošta (Pošta Beograd 34)8 min
Kontakt oglašivača

Krediti OTP banke
Period otplate
13 mesecimesečno
Period otplate 13 - 71 mesec
Saznaj više
