Dvosoban stan za izdavanje, Blok 67 - Belville, 950€, 62m²


























































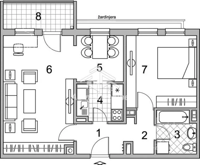
- Kvadratura: 62m²
- Na 7. spratu od ukupno 13 spratova
- Novo
- Prostorije: terasa
- Opremljenost: Namešteno - internet, klima
- Oglas oglašava agencija pod reg. brojem 1873
- 1 lift
- Kablovska
- 1 telefonska linija
Opis oglasa
Dvosoban luks stan za izdavanje - Belville, Novi Beograd
Lokacija: Blok 67 - Belville, Novi Beograd
Cena: 950 eura
Površina: 62 m2
Broj soba: 2.0
Sprat: 7/13
Depozit: 950 eura
Režije: oko 15.000 RSD
Godište zgrade: 2010
Grejanje: Centralno
Nameštenost: Potpuno namešten
Dodatno:
Dozvoljeno pušenje
Dozvoljeni kućni ljubimci
Terasa
Kupatilo
Internet
TV
Klima
Veš mašina
Frižider
Mikrotalasna
Plakar
2 lifta
Prilaz za invalide
Podrum
Video nadzor
Mogućnost zakupa garažnog mesta
Opis:
Izdaje se moderno opremljen, prostran dvosoban stan od 62 m2, u popularnom kompleksu Belville na Novom Beogradu. Stan se nalazi na 7. spratu u zgradi sa dva lifta, video nadzorom i 24h obezbeđenjem. Idealan za parove, zaposlene ili pojedince koji traže komforan gradski život u mirnom i uređenom okruženju.
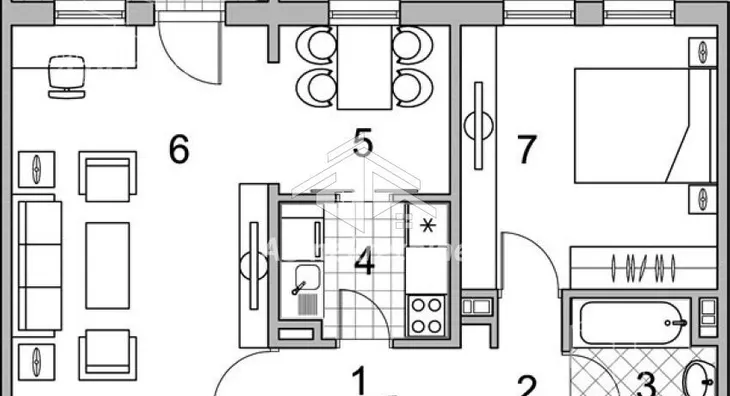
Struktura stana:
- Dnevni boravak sa trpezarijom
- Potpuno opremljena kuhinja (ugradni aparati, sudomašina, mikrotalasna)
- Spavaća soba sa bračnim krevetom i velikim plakarima
- Hodnik sa dodatnim ugradnim plakarima
- Kupatilo sa mašinom za veš
- Terasa sa pogledom na dvorište
Cena zakupa je 950 eura mesečno (1100 eur sa računima)
Za više informacija i zakazivanje gledanja, pozovite
Agencijska provizija iznosi 50% od prve zakupnine.
ID oglasa: 43583
*Sačuvaj oglas uz belešku i primaj obaveštenja o njihovom pojeftinjenju ili pojavljivanju sličnih
Prikaz stana na mapi
Parkovi u blizini
- Dečje igralište9 min
- Park Blok 7025 min
- Park Republike Argentine41 min

Obeležja kulture u blizini
- Hangar Starog aerodroma na Novom Beogradu9 min
- Stara osnovna škola11 min
- Česma12 min

Škole/Fakulteti/Vrtići u blizini
- Osnovna škola (Savremena osnovna škola)8 min
- Srednja škola (Ruska osnovna i srednja škola)6 min
- Vrtić (Dečiji vrtić Adaland)2 min
- Fakultet (Visoka škola strukovnih studija za informacione tehnologije ITS)8 min

- Bolnica (Puls kardiološki centar)5 min
- Klinika (Poliklinika Solar Medical Center)11 min
- Teretana (Fitness studio Belville)manje od 1 min
- Prodavnica (Piccolo Mercata - voće i povrće)2 min
- Restoran (Azzaro Bar & Restaurant)2 min
- Kafana (Green Mill Pub)5 min
- Taksi stajalište (Taxi stanica)6 min
- Autobuska stanica (Naselje Belvil)5 min
- Tramvajska stanica (Blok 23)27 min
- Banka (Banca Intesa)5 min
- Pošta (Pošta Beograd 132)4 min
Kontakt oglašivača
Krediti OTP banke
Period otplate
13 mesecimesečno
Period otplate 13 - 71 mesec
Saznaj više

