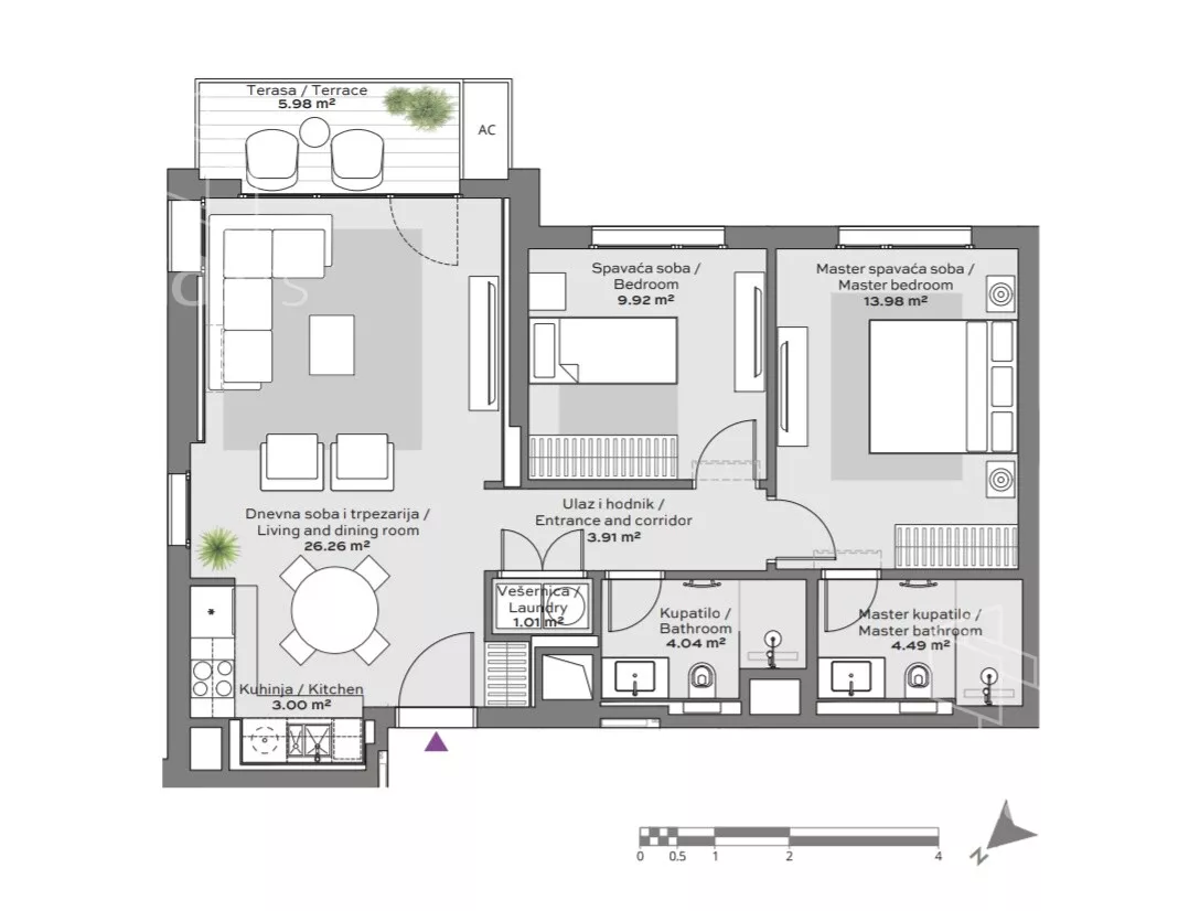
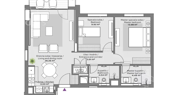
Trosoban stan za izdavanje, Luke Ćelovića Trebinjca, 2.300€, 72m²






































- Odmah useljivo
- Stan u zgradi
- Kvadratura: 72m²
- Na 3. spratu od ukupno 8 spratova
- Novo
- Prostorije: kuhinja, ostava, terasa
- Opremljenost: Namešteno - internet, interfon, TV, klima, veš mašina, sudo mašina, frižider, rerna, ležaj, plakar
- Oglas oglašava agencija pod reg. brojem 1659
- 1 garažno mesto
- 1 lift
- Zgrada poseduje: video nadzor
- Kablovska
- 1 telefonska linija
Opis oglasa
BW Queen's Park – Luksuzan, neuseljavan stan za izdavanje
Izdaje se potpuno nov, moderno opremljen stan u prestižnoj zgradi BW Queen's Park. Dvostrano orijentisan, maksimalno funkcionalan, sa puno prirodnog svetla i prostora za odlaganje.
Struktura: 2 spavaće sobe (master sa en suite kupatilom), 2 kupatila, dnevni boravak, kuhinja sa trpezarijom, ostava.
Opremljenost: Najkvalitetnija tehnika, 2 OLED TV-a, kompletno posuđe, tekstil i dekoracija – sve novo i nekorišćeno.
Dodatno: Dva garažna mesta (uz doplatu 100 €).
Uslovi: Depozit 1 mesečna kirija.
Nisu dozvoljeni kućni ljubimci.
Za nepušače.
Agencijska provizija iznosi 50% od dogovorene mesečne zakupnine, jednokratno.
Za više informacija i razgledanje stana kontaktirajte nas.
*Sačuvaj oglas uz belešku i primaj obaveštenja o njihovom pojeftinjenju ili pojavljivanju sličnih
Prikaz stana na mapi
Parkovi u blizini
- Savski park1 min
- Park Lepi izgled12 min
- Park Bristol12 min

Obeležja kulture u blizini
- Spomenik caru Dušanu Silnom6 min
- Zgrada Železničke stanice7 min
- Spomenik Stefanu Nemanji8 min

Škole/Fakulteti/Vrtići u blizini
- Osnovna škola (Osnovna škola Radojka Lakić)6 min
- Srednja škola (Škola za brodarstvo, brodogradnju i hidrogradnju)4 min
- Vrtić (Dečiji vrtić Futurino)4 min
- Fakultet (Futura fakultet za primenjenu ekologiju)6 min

- Bolnica (Opšta bolnica Euromedik)6 min
- Klinika (Poliklinika Rea Medika)9 min
- Teretana (Ashtanga Yoga Beograd)6 min
- Prodavnica (Shop&Go)4 min
- Restoran (Kaldi Gastro Bar)5 min
- Kafana (Kafana Kod Glumca)11 min
- Taksi stajalište (Taxi stanica)8 min
- Autobuska stanica (Palata Pravde 1)3 min
- Tramvajska stanica (Ekonomski Fakultet)10 min
- Trolejbuska stanica (Višegradska)10 min
- Banka (Banca Intesa)6 min
- Pošta (Pošta Beograd 115)6 min
Kontakt oglašivača
Krediti OTP banke
Period otplate
13 mesecimesečno
Period otplate 13 - 71 mesec
Saznaj više

