Poslovni prostor za izdavanje, Subotička, 2.500€, 330m²






















2.500 €
- Prizemlje
- Novo
- Prostorije: kupatilo
- Oglas oglašava agencija pod reg. brojem 1784
- 1 telefonska linija
Opis oglasa
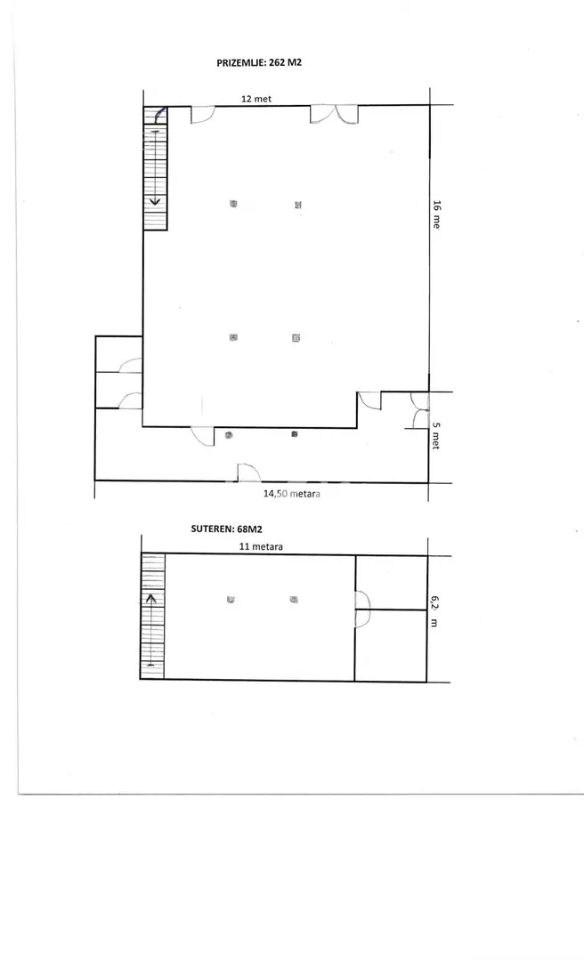
Izdaje se višenamenski lokal na Telepu površine 330m2 od toga prizemlje 262m2 i suteren 68m2. Lokal je kompletno sređen. Dvostano je orijentican sa frontalnim aluminijumskim portalima u širini od 12m duž Lokal je višenamenski pogodan za markete, prodavnice, kladionice, restorane, ordinacije, kancelarijski prostor, kol centre… Ispred lokala je veliki parking. Lokal u svom vlasništvu poseduje 2 parking mesta. Visina lokala je 3,8m. kompletno je klimatizovan i pokriven video nadzorom i poslovni prostor i magacinski deo. Ulaz u magacinski deo je sa zadnje i bočne strane. Cena zakupa je 2500eur. Obavezan je depozit u visini jedne kirije.
Lokal je vlasništvo fizičkog lica.
Sve info na broj tel 069... (prikaži broj telefona)
*Sačuvaj oglas uz belešku i primaj obaveštenja o njihovom pojeftinjenju ili pojavljivanju sličnih
Prikaz poslovnog prostora na mapi
Parkovi u blizini
- Futoški park19 min
- Park Bistrica19 min
- Limanski park35 min

Obeležja kulture u blizini
- Jodna Banja9 min
- Dvorac Eđšeg12 min
- Matičarsko zdanje15 min

Škole/Fakulteti/Vrtići u blizini
- Osnovna škola (Osnovna škola Nikola Tesla)4 min
- Srednja škola (Srednja škola MC Vision Academy)7 min
- Vrtić (Dečiji vrtić Pužić)6 min
- Fakultet (Protestantski teološki fakultet)10 min

- Bolnica (Hirurška bolnica Parks)4 min
- Klinika (Poliklinika Consilium)6 min
- Teretana (Teretana Alpha Gym)5 min
- Prodavnica (Tina market)manje od 1 min
- Restoran (Restoran Gambrinus)manje od 1 min
- Kafana (Kafana Sinđelić)4 min
- Taksi stajalište (Gradski Taxi)22 min
- Autobuska stanica (Vršačka - Jovana Popovića)5 min
- Banka (AIK Banka)5 min
- Pošta (Pošta Novi Sad 21106)6 min
Kontakt oglašivača
Krediti OTP banke
Period otplate
13 mesecimesečno
Period otplate 13 - 71 mesec
Saznaj više