Lokal za izdavanje, Telep, 2.700€, 330m²
























2.700 €
- Uobičajeno stanje
- Oglas oglašava agencija pod reg. brojem 1020
- 1 lift
- Godina izgradnje: 2022.
Opis oglasa
Agencijska šifra: 9112423.
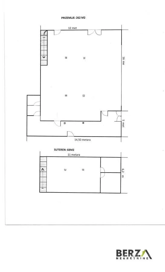
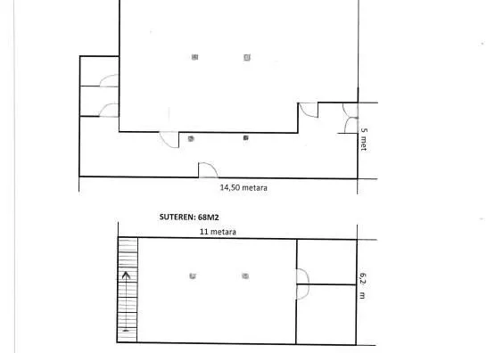
Izdaje se odličan lokal od 330 m2 u dva nivoa ( 262 m2 prizemlja i 68 m2 suterena) u prizemlju nove zgrade na Telepu. Prostor je klimatizovan i pokriven video nadzorom. Dva parking mesta su obezbeđena ispred lokala, a postoji i javni parking. Prizemlje se sastoji od glavne sale, magacinskog prostora i dva toaleta, a suteren sadrži jednu veću i dve manje prostorije. Pogodno za razne vrste delatnosti kao što su supermarketi, kladionice, ordinacije, kancelarije, restorane. Useljivo 1.6.2026. Potreban je depozit u visini jedne mesečne zakupnine.
Agencijska provizija iznosi 100% od vrednosti prve mesečne zakupnine i plaća se jednokratno. Za više informacija pozovite na: 063... (prikaži broj telefona) i 061... (prikaži broj telefona) Berza nekretnine, Novi Sad, reg broj posrednika 1020
*Sačuvaj oglas uz belešku i primaj obaveštenja o njihovom pojeftinjenju ili pojavljivanju sličnih
Prikaz poslovnog prostora na mapi
Parkovi u blizini
- Park Bistrica27 min
- Futoški park31 min
- Limanski park35 min

Obeležja kulture u blizini
- Jodna Banja12 min
- Dvorac Eđšeg13 min
- Kuća iz 1797. godine18 min

Škole/Fakulteti/Vrtići u blizini
- Osnovna škola (Osnovna škola Jožef Atila)9 min
- Srednja škola (Gimnazija Laza Kostić)5 min
- Vrtić (Dečiji vrtić Zemlja čuda)6 min
- Fakultet (Protestantski teološki fakultet)7 min

- Bolnica (Ginekološka bolnica Ferona)2 min
- Klinika (Poliklinika Consilium)12 min
- Teretana (EMS Studio Maxifit)5 min
- Prodavnica (Lole dućan)5 min
- Restoran (Caffe restoran Rosetto)7 min
- Kafana (Atos pub)5 min
- Taksi stajalište (Taxi prevoz Novi Sad)18 min
- Autobuska stanica (Feješ Klare - Pravoslavna crkva)3 min
- Banka (Erste Bank Ekspres ekspozitura)6 min
- Pošta (Pošta Novi Sad 21124)7 min
Kontakt oglašivača
Krediti OTP banke
Period otplate
13 mesecimesečno
Period otplate 13 - 71 mesec
Saznaj više
