Lokal za izdavanje, Telep, 2.500€, 331m²
































2.500 €
mesečno
- Obavezan depozit 2.500 €
- Useljiv od 31. 5. 2026.
- Prizemlje od ukupno 1 sprat
- Uobičajeno stanje
- Prostorije: toaleti (2)
- Oglas oglašava agencija pod reg. brojem 829
- 2 parking mesta, parking u dvorištu zgrade
Opis oglasa
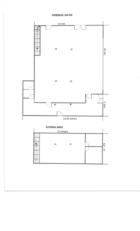
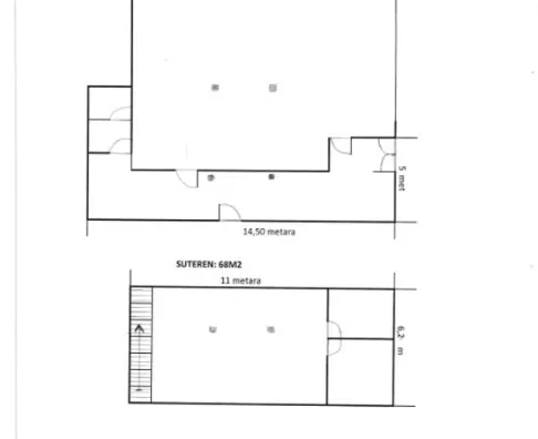
Izdaje se odličan noviji lokal ukupne površine 331m2 na dobroj lokaciji na Telepu, novija zgrada u prometnoj ulici.
Lokal ima dva ulaza, rezervisana dva parking mesta do lokala i dosta parkinga ispred.
Prizemni deo u nivou ulice ima 270 m2 i sav je u portalima na uglu dve ulice.
U suterenu je prostor od 68m2
Visina plafona: 3,80m. Grejanje: UGRAĐENE 3 VEĆE KLIME.
Prostor je useljiv od 01.06.
Pogodno za kladionice, markete, IT sektor......
Kontakt: 063... (prikaži broj telefona) , 064... (prikaži broj telefona)
Šifra oglasa: 5426.
Agencijska provizija u visini jedne mesečne zakupnine - jednokratno pri sklapanju ugovora.
#poslovniprostornovisad #velikilokali #izdajemvelikilokal #lokaltelep #izdavanje #izdavanjeposlovnogprostora #izdajemlokal #nekretninenovisad #ugostiteljskiobjekat #ordinacija #marketi
*Sačuvaj oglas uz belešku i primaj obaveštenja o njihovom pojeftinjenju ili pojavljivanju sličnih
Prikaz poslovnog prostora na mapi
Parkovi u blizini
- Park Bistrica18 min
- Futoški park22 min
- Limanski park37 min

Obeležja kulture u blizini
- Jodna Banja10 min
- Dvorac Eđšeg13 min
- Matičarsko zdanje15 min

Škole/Fakulteti/Vrtići u blizini
- Osnovna škola (Osnovna škola Jožef Atila)4 min
- Srednja škola (Srednja škola MC Vision Academy)4 min
- Vrtić (Dečiji vrtić Pužić)3 min
- Fakultet (Protestantski teološki fakultet)7 min

- Bolnica (Ginekološka bolnica GINS)6 min
- Klinika (Poliklinika Consilium)3 min
- Teretana (Teretana Alpha Gym)8 min
- Prodavnica (IDEA)manje od 1 min
- Restoran (Restoran Pastir)2 min
- Kafana (Kafana Sinđelić)7 min
- Taksi stajalište (Taxi prevoz Novi Sad)22 min
- Autobuska stanica (Vršačka - Jovana Popovića)1 min
- Banka (NLB Komercijalna banka)5 min
- Pošta (Pošta Novi Sad 21124)14 min
Kontakt oglašivača

Krediti OTP banke
Period otplate
13 mesecimesečno
Period otplate 13 - 71 mesec
Saznaj više