Poslovni prostor za izdavanje, Zadrugarska, 1.300€, 289m²






















1.300 €
- Odmah useljivo
- Na 1. spratu od ukupno 1 sprat
- Uobičajeno stanje
- Prostorije: kupatilo
- Opremljenost: Prazno - internet, klima
- Oglas oglašava agencija pod reg. brojem 508
- 1 telefonska linija
Opis oglasa
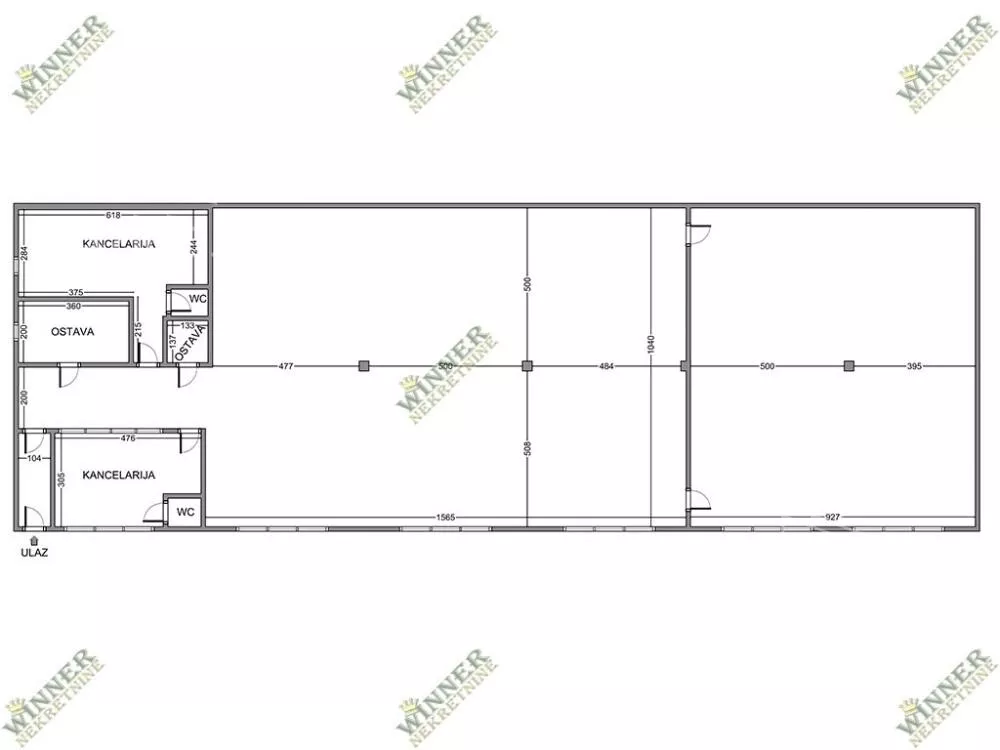
Poslovni prostor 289 m² za firme – Zemun (Meandri), odličan za kancelarije i IT
Izdaje se prostran i funkcionalan poslovni prostor površine 313 m², smešten na prvom spratu u mirnom i pristupačnom delu Zemuna (naselje Meandri, ulica Zadrugarska).
Prostor je idealan za kompanije koje traže efikasno organizovan radni ambijent – IT firme, call centre, razvojne timove, administrativne i konsalting delatnosti.
Organizacija prostora
Dve velike open space celine – pogodne za timski rad
Dve izdvojene kancelarije sa sopstvenim kupatilima (menadžment / sastanci)
Dve ostave (arhiva / oprema)
Visina plafona 2.80 m – prijatan radni ambijent
Tehnička opremljenost
Etažno grejanje na pelet (kontrola troškova)
Tri klima uređaja
Trofazna struja – pogodna za veću opremu i IT infrastrukturu
PVC stolarija
Kvalitetni podovi (laminat)
Lokacija i logistika
Zemun – Meandri (dobra povezanost sa ostatkom grada)
Obezbeđen parking (bez dodatnih troškova)
Pristup za dostavu i lako snabdevanje
Mirno okruženje pogodno za produktivan rad
Prednosti za firme
Fleksibilan raspored – mogućnost prilagođavanja prema potrebama zakupca
Pogodno za timove srednje i veće veličine
Odličan odnos open space i privatnih kancelarija
Dugoročan zakup – stabilnost poslovanja
Uslovi
Depozit: jedna mesečna kirija
Dugoročan zakup
Prostor je odmah useljiv
Ispod poslovnog prostora nalazi se i magacinski prostor površine 313 m², sa visinom plafona 3.2 m, pogodan za skladištenje robe, što predstavlja dodatnu pogodnost za firme koje imaju logistiku ili sopstveno snabdevanje.
Kontakt osoba: Željko
Kontakt telefon: 069... (prikaži broj telefona)
Agencija upisana u registar posrednika pod brojem 508.
Agencijsku proviziju placa zakupac u iznosu od 50% od mesecne cene izdavanja.
Naselje Meandri
u Zemunu je dobra lokacija za firme jer pruža mirno i funkcionalno okruženje za rad, van gradske gužve, a opet dovoljno blizu glavnih saobraćajnica i centra grada.
Lokacija je dobro povezana sa ostatkom Beograda, uključujući Novi Beograd i autoput, a u blizini se nalaze i linije gradskog prevoza, što zaposlenima olakšava dolazak na posao.
Velika prednost ovog kraja je što nema problema sa parkingom, što je retkost u gradu i značajno olakšava svakodnevno poslovanje, kako zaposlenima tako i klijentima.
Okruženje je mirno, bez velike buke i gužve, što ga čini pogodnim za delatnosti koje zahtevaju koncentraciju i organizovan rad, poput IT firmi, administracije, call centara i raznih agencija.
U okolini se nalaze i osnovni sadržaji (prodavnice, kafići i slično), pa je lokacija praktična za svakodnevne potrebe zaposlenih.
*Sačuvaj oglas uz belešku i primaj obaveštenja o njihovom pojeftinjenju ili pojavljivanju sličnih
Prikaz poslovnog prostora na mapi
Parkovi u blizini
- Park Sava Kovačević20 min
- Dečje igralište22 min
- Dečje igralište25 min

Obeležja kulture u blizini
- Ičkova kuća11 min
- Livnica Pantelić12 min
- Kuća sa sunčanim satom12 min

Škole/Fakulteti/Vrtići u blizini
- Osnovna škola (Osnovna škola Sava Jovanović Sirogojno)6 min
- Srednja škola (Specijalna srednja škola Veljko Ramadanović)4 min
- Vrtić (Dečiji vrtić Povratak prirodi)5 min
- Fakultet (Kriminalističko policijski univerzitet)6 min

- Bolnica (Bolnica za lečenje bolesti zavisnosti Dr Vorobjev)4 min
- Klinika (Poliklinika O2)6 min
- Teretana (Fitness centar Vulkan Gym)5 min
- Prodavnica (Market M)4 min
- Restoran (Restoran Dubočica)6 min
- Kafana (Kafana Biblioteka kod Majora)2 min
- Taksi stajalište (Taxi stanica)11 min
- Autobuska stanica (Zadrugarska)1 min
- Banka (Alta Banka Altina)5 min
- Pošta (Pošta Beograd 100)7 min
Kontakt oglašivača
Krediti OTP banke
Period otplate
13 mesecimesečno
Period otplate 13 - 71 mesec
Saznaj više
