Magacin za izdavanje, Zadrugarska, 1.200€, 289m²


















1.200 €
Za ovaj oglas se neko interesovao. Pozovi ranije kako ne bi propustio priliku.
- Nije odmah useljivo -
- Na 1. spratu od ukupno 1 sprat
- Uobičajeno stanje
- Oglas oglašava agencija pod reg. brojem 508
- 1 telefonska linija
Opis oglasa
Izdaje se magacinski prostor – Zemun (Meandri, Zadrugarska ulica)
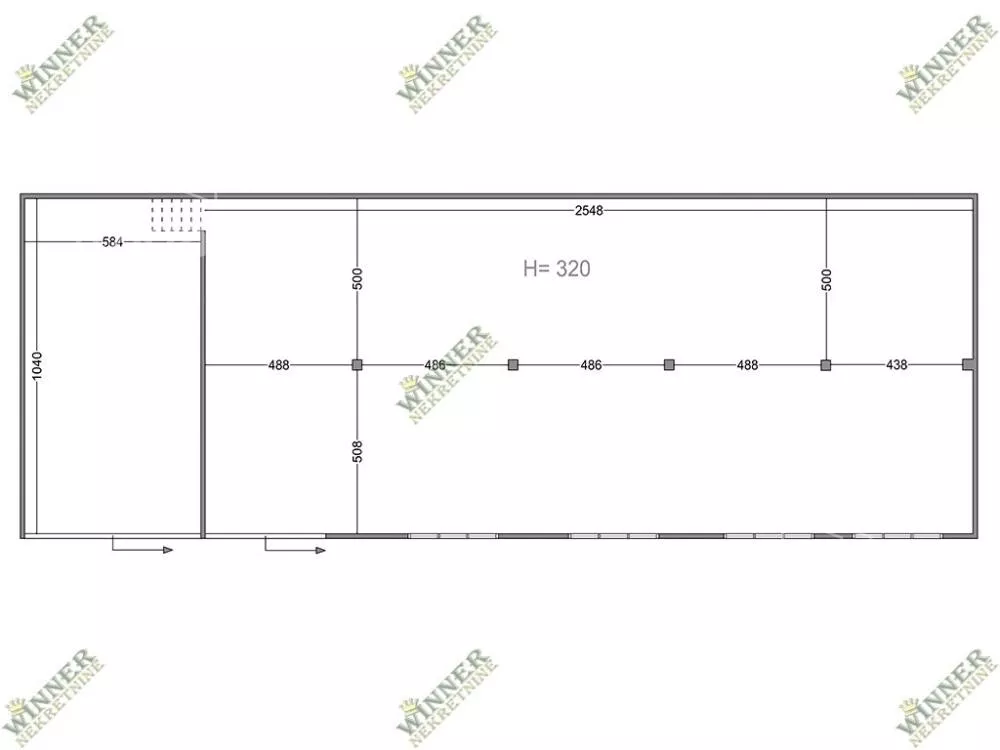
Izdaje se funkcionalan magacinski prostor u Zemunu, naselje Meandri, ulica Zadrugarska, ukupne površine 289 m².
Prostor je podeljen u dve celine:
• manji deo: cca 50 m²
• veći deo: cca 240 m²
Karakteristike prostora:
• visina plafona: 3.20 m
• širina objekta: 10 m
• čvrsta betonska konstrukcija
• metalni prozori
• velika klizna vrata (5 m dužine) – pogodno za utovar/istovar
Pristup i logistika:
• ispred magacina se nalazi proširen prostor za manipulaciju
• omogućen prilaz za šlepere i teretna vozila
Dodatna pogodnost:
• iznad magacina se nalazi poslovni prostor površine 289 m², pogodan za kancelarije, administraciju ili prateće delatnosti
Namena prostora:
• skladištenje robe
• distributivni centar / logistika
• e-commerce (online prodaja i pakovanje)
• manja proizvodnja ili radionica
• veleprodaja
Uslovi zakupa:
• Depozit: jedna mesečna kirija
• Dugoročan zakup
• Prostor je odmah useljiv
Odlična lokacija u Zemunu, sa dobrom povezanošću ka glavnim saobraćajnicama.
Kontakt osoba: Željko
Kontakt telefon: 069... (prikaži broj telefona)
Agencija upisana u registar posrednika pod brojem 508.
Agencijsku proviziju placa zakupac u iznosu od 50% od mesecne cene izdavanja.
*Sačuvaj oglas uz belešku i primaj obaveštenja o njihovom pojeftinjenju ili pojavljivanju sličnih
Prikaz poslovnog prostora na mapi
Parkovi u blizini
- Park Sava Kovačević20 min
- Dečje igralište22 min
- Dečje igralište25 min

Obeležja kulture u blizini
- Ičkova kuća11 min
- Livnica Pantelić12 min
- Kuća sa sunčanim satom12 min

Škole/Fakulteti/Vrtići u blizini
- Osnovna škola (Osnovna škola Sava Jovanović Sirogojno)6 min
- Srednja škola (Specijalna srednja škola Veljko Ramadanović)4 min
- Vrtić (Dečiji vrtić Povratak prirodi)5 min
- Fakultet (Kriminalističko policijski univerzitet)6 min

- Bolnica (Bolnica za lečenje bolesti zavisnosti Dr Vorobjev)4 min
- Klinika (Poliklinika O2)6 min
- Teretana (Fitness centar Vulkan Gym)5 min
- Prodavnica (Market M)4 min
- Restoran (Restoran Dubočica)6 min
- Kafana (Kafana Biblioteka kod Majora)2 min
- Taksi stajalište (Taxi stanica)11 min
- Autobuska stanica (Zadrugarska)1 min
- Banka (Alta Banka Altina)5 min
- Pošta (Pošta Beograd 100)7 min
Kontakt oglašivača
Za ovaj oglas se neko interesovao. Pozovi ranije kako ne bi propustio priliku.
Krediti OTP banke
Period otplate
13 mesecimesečno
Period otplate 13 - 71 mesec
Saznaj više
