Lokal za izdavanje, Vojvođanska 399a, 15€, 571m²












15 €
mesečno
- Obavezan depozit 16.000 €
- Odmah useljivo
- Dozvoljeno pušenje
- Režije: od 12000 RSD do 15000 RSD
- Prizemlje od ukupno 1 sprat
- Novo
- Prostorije: kupatila (2), toaleti (2), kuhinja, ostava
- Opremljenost: Prazno - internet, centralna klima, ventilacija
- Pogled na: ulicu, dvorište
- Oglas oglašava firma
- 10 parking mesta, parking u dvorištu zgrade, javni parking van zone
- 1 lift
- Godina izgradnje: 2023.
- Objekat poseduje: prilaz za invalide, dvorište, alarm, ventilacija, video nadzor
- Tip interneta: optički
- Kablovska
- 1 telefonska linija
- Autobuske linije: 601, 603, 604, 605, 610, 72
Opis oglasa
U ponudi je lux poslovni prostor u prizemlju novog objekta, smešten u Vojvođanskoj ulici na Novom Beogradu, na jednoj od najfrekventnijih saobraćajnica u gradu i u neposrednoj blizini Aerodroma „Nikola Tesla“.
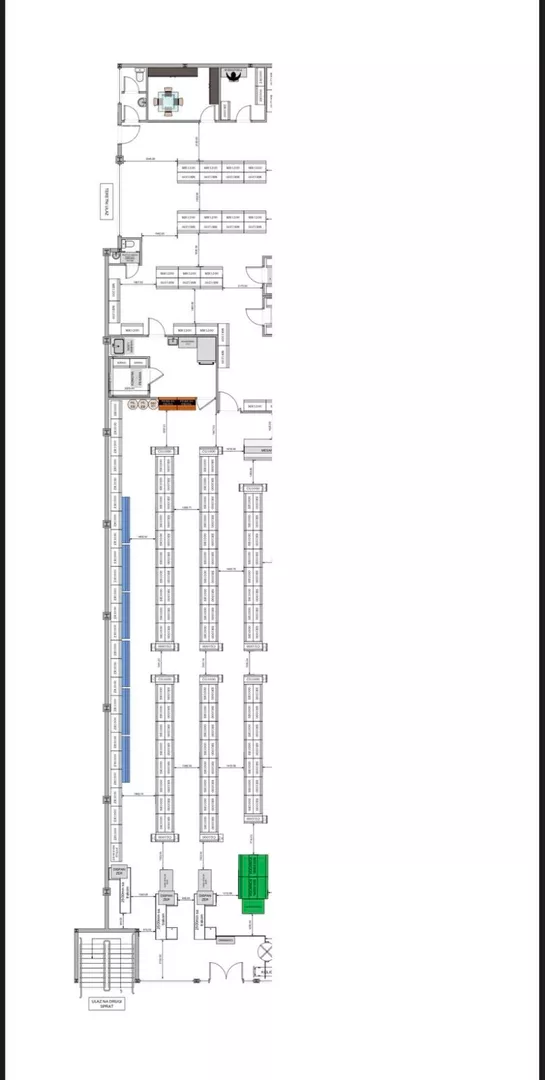
Prostor ukupne površine 571 m² projektovan je tako da omogućava efikasno funkcionisanje maloprodajnog objekta ili distributivnog centra, sa jasno organizovanim funkcionalnim celinama koje omogućavaju nesmetano svakodnevno poslovanje.
Struktura prostora:
Veliki prodajni / izložbeni prostor
Odvojene funkcionalne celine predviđene za pekarski i mesarski segment
Magacinski prostor sa omogućenim pristupom za utovar i istovar robe
Kancelarija
Prostorija za odmor i obrok zaposlenih
Dva mokra čvora i kupatilo
Dodatne pogodnosti: video nadzor, internet infrastruktura, više telefonskih linija, izlog, kao i veći broj parking mesta ispred objekta koji omogućava jednostavan pristup kupcima i dostavnim vozilima.
Lokacija predstavlja značajnu stratešku prednost zahvaljujući odličnoj saobraćajnoj povezanosti i blizini glavnih gradskih pravaca. U neposrednoj blizini nalaze se stanice javnog prevoza i BG voza, dok dodatnu vrednost donosi razvoj okolne infrastrukture i planirani veliki projekti u ovom delu grada.
Prostor je pogodan za market, maloprodajne lance, specijalizovane prodavnice, distributivne centre, showroom ili druge komercijalne delatnosti kojima je potreban prostran i funkcionalan poslovni prostor na prometnoj lokaciji.
Poslovni prostor se izdaje na duži vremenski period, uz mogućnost prilagođavanja prostora potrebama zakupca.
Lokal je useljiv od 01. juna.
Agencijska naknada je u skladu sa našimo opštim uslovima poslovanja.
*Sačuvaj oglas uz belešku i primaj obaveštenja o njihovom pojeftinjenju ili pojavljivanju sličnih
Prikaz poslovnog prostora na mapi
Parkovi u blizini
- Park Republike Argentine7 min
- Park Blok 7025 min
- Dečje igralište35 min

Obeležja kulture u blizini
- Hangar Starog aerodroma na Novom Beogradu6 min
- Česma8 min
- Stara osnovna škola5 min

Škole/Fakulteti/Vrtići u blizini
- Osnovna škola (Osnovna škola Milan Rakić)5 min
- Srednja škola (Srednja škola Kosta Cukić)7 min
- Vrtić (Dečiji vrtić Ljubičica)5 min
- Fakultet (Fakultet za pravo, bezbednost i menadžment Konstantin Veliki)9 min

- Bolnica (Opšta bolnica Avala)7 min
- Klinika (Poliklinika As Medicus Biorezonanca)5 min
- Teretana (Arena No1 Fitness centar)14 min
- Prodavnica (Market Batos)3 min
- Restoran (Kafana Stara Bežanija)6 min
- Kafana (Kafana Balkan Ekspres)10 min
- Taksi stajalište (Taxi stanica)15 min
- Autobuska stanica (Dušana Vukasovića)2 min
- Banka (Poštanska štedionica)6 min
- Pošta (Pošta Beograd 94)7 min
Kontakt oglašivača
Krediti OTP banke
Period otplate
13 mesecimesečno
Period otplate 13 - 71 mesec
Saznaj više
