Lokal za izdavanje, Vojvode Stepe, 7.700€, 386m²


7.700 €
- Prizemlje od ukupno 8 spratova
- Prostorije: kupatilo
- Opremljenost: Prazno - interfon, klima
- Oglas oglašava agencija pod reg. brojem 1347
- 1 parking mesto
- 1 lift
- 1 telefonska linija
Opis oglasa
Novogradnja luksuzne gradnje u početnoj fazi izgradnje, osmospratna pametna zgrada, sa liftovima, izuzetnog kvaliteta gradnje, nalazi se na Opštini Voždovac u ulici Vojvode Stepe u neposrednoj blizini Autokomande, na izvanrednoj lokaciji u stambeno - poslovnoj zoni. U neposrednoj blizini se nalaze svi relevantni objekti za nesmetano funkcionisanje života i poslovanja, kao i poslovni, ugostiteljski objekti, javni objekti... dostupnost javnog prevoza. Pristup ulazu u zgradu je sa ulice, takođe u obezbeđenu garažu. Zgrada je opremljena pametnim sistemima. Očekivani završetak radova i useljenje leto 2027. godine.
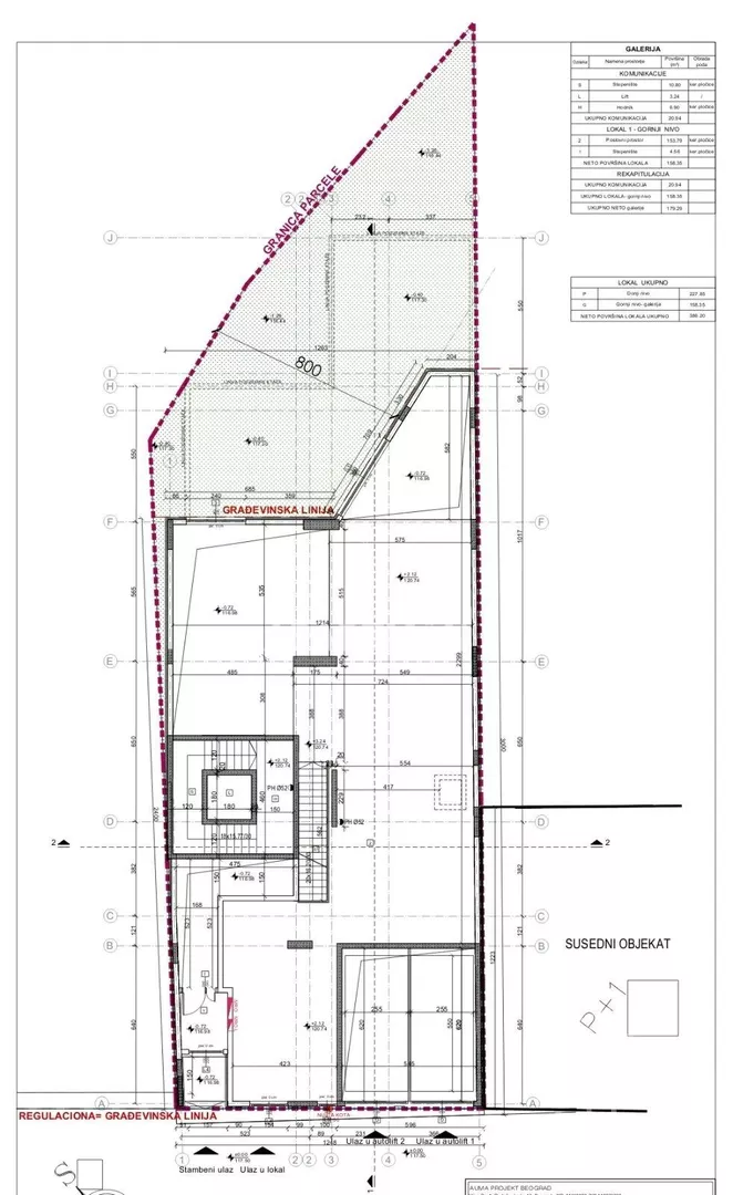
Lokal ukupne kvadrature 386,2m2 koji je predmet izdavanja nalazi se u prizemlju zgrade sa pristupom ulazu sa ulice.
Sastavljen je iz dve etaže:
Nivo 1 - lokal donji nivo - 227,85m2 - poslovni prostor, čajna kuhinja i toalet
Nivo 2 - lokal gornji nivo - galerija - 158,35m2 - poslovni prostor
Zgrada i lokal su u početnoj fazi gradnje, u ovoj fazi potencijalnom zakupcu je otvorena mogućnost prilagođavanja prostora prema njegovim poslovnim namenama. Sama namena prostora je širokog spektra, ugostiteljski objekat, kladionica, klinika, banka, market, prodajni objekat, kancelarijski...
U zgradi su dostupna garažna mesta, u dogovoru sa vlasnikom može se zakupiti određeni broj garažnih mesta za potrebe zakupca lokala.
Izražena cena zakupa je cena bez uračunatog PDV-a, vlasnik je u sistemu PDV-a.
Za više informacija otvoreni smo za Vaš poziv.
Kontakt telefon 060... (prikaži broj telefona) . Hvala Vam na pregledu oglasa. Broj agencije u Registru posrednika 1347. Mapa je informativnog karaktera, ne prikazuje tačnu lokaciju nekretnine.
Kontakt telefon 060... (prikaži broj telefona) . Hvala Vam na pregledu oglasa. Broj agencije u Registru posrednika 1347. Mapa je informativnog karaktera, ne prikazuje tačnu lokaciju nekretnine.
*Sačuvaj oglas uz belešku i primaj obaveštenja o njihovom pojeftinjenju ili pojavljivanju sličnih
Prikaz poslovnog prostora na mapi
Parkovi u blizini
- Banjička šuma11 min
- Park Jove Ilića14 min
- Bajronov park25 min

Obeležja kulture u blizini
- Osnovna škola Kralj Petar II Karađorđević10 min
- Spomenik heroju Milanu Tepiću10 min
- Stara mehana u Kumodražu11 min

Škole/Fakulteti/Vrtići u blizini
- Osnovna škola (Osnovna škola Filip Filipović)8 min
- Srednja škola (Srednja medicinska škola Milutin Milanković)5 min
- Vrtić (Dečiji vrtić Panoramica)6 min
- Fakultet (Univerzitet u Beogradu Saobraćajni fakultet)4 min

- Bolnica (Opšta bolnica Medicinski sistem Beograd MSB)1 min
- Klinika (Poliklinika Nera)9 min
- Teretana (Athletic's Gym fitness centar)7 min
- Prodavnica (Maxi Supermarket)2 min
- Restoran (Restoran Pastino)3 min
- Kafana (Kompas pivara)9 min
- Taksi stajalište (Taxi stanica)6 min
- Autobuska stanica (Trošarina)6 min
- Tramvajska stanica (Saobraćajni Fakultet)1 min
- Trolejbuska stanica (Paunova)13 min
- Banka (Erste Bank)6 min
- Pošta (Pošta Beograd 39)4 min
Kontakt oglašivača
Krediti OTP banke
Period otplate
13 mesecimesečno
Period otplate 13 - 71 mesec
Saznaj više
