Poslovni prostor za izdavanje, Centar, 4.800€, 97m²


























4.800 €
- Renovirano
- Opremljenost: Prazno - kanalizacija
- Oglas oglašava agencija pod reg. brojem 1809
- Kanalizacija
- Objekat poseduje: video nadzor
Opis oglasa
Izdaje se poslovni prostor u strogom centru grada,nadomak svih bitnih tačaka u gradu,
Perfektan za kafiće,pekare,apoteke,modne kuće,IT sektor takodje,firme...
U toku je rekonstrukcija objekta, kojom je predviđeno formiranje funkcionalne poslovne zgrade sa liftom koji povezuje sve etaže. Planirani rok završetka radova je avgust 2026. godine.
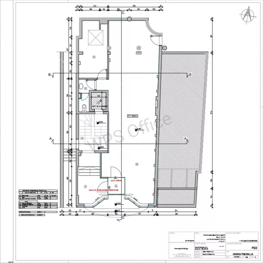
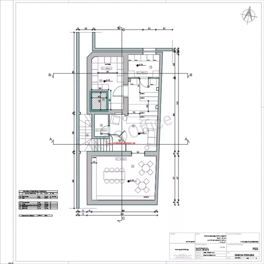
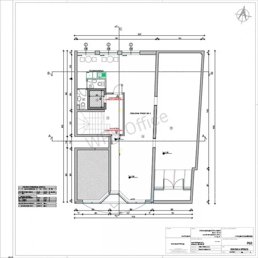
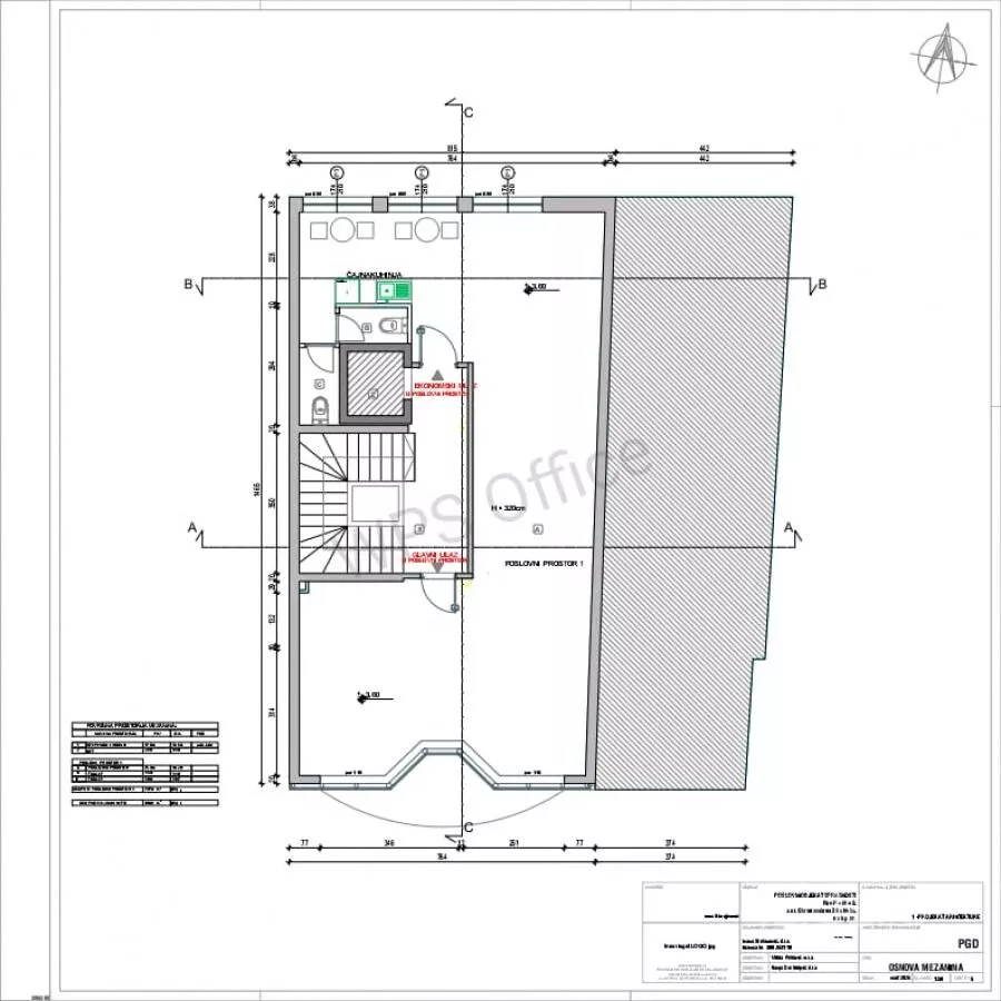
Objekat se sastoji od sledećih etaža (moguć zakup pojedinačno po etažama):
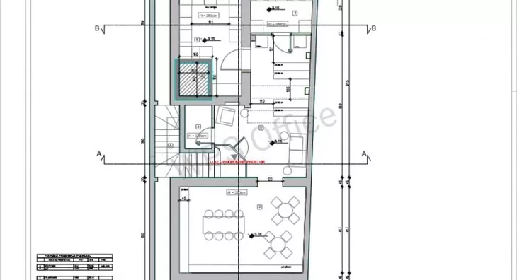
Podrum: 79,90 m² – pogodan za kafić (sa pravom korišćenja bašte u pešačkoj zoni)
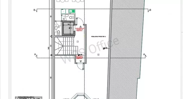
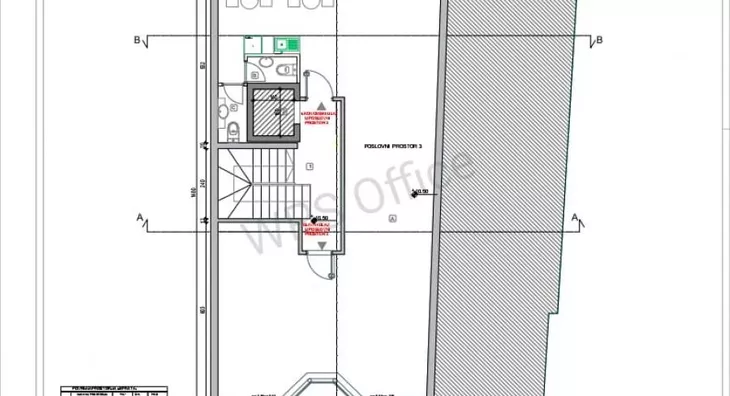
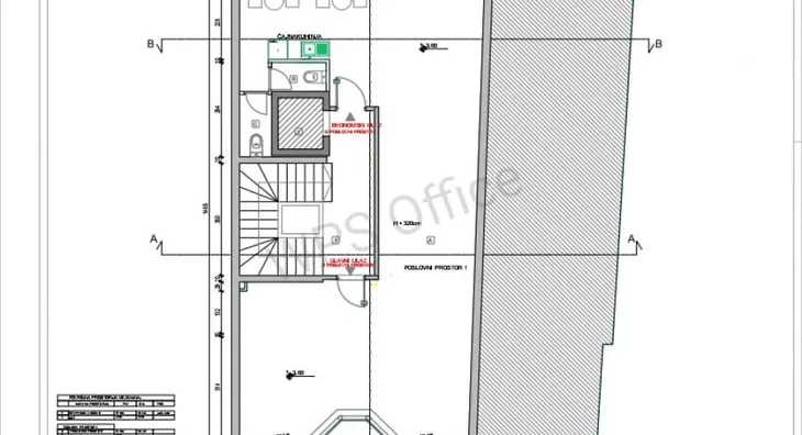
Prizemlje: 96,54 m² – lokal
Mezanin: 98,48 m² – poslovni prostor
I sprat: 135,91 m² – poslovni prostor
II sprat: 98,82 m² – poslovni prostor
III sprat: 100,98 m² – poslovni prostor
Cene zakupa (bez PDV-a):
Podrum: 1.500 EUR
Prizemlje: 4.500 EUR
Mezanin: 1.500 EUR
I sprat: 2.000 EUR
II sprat: 1.500 EUR
III sprat: 2.000 EUR
Napomena: Sve etaže je moguće izdavati pojedinačno, u zavisnosti od potreba zakupaca.
Agencijska usluga za zakupce ovog poslovnog prostora je 50% od iznosa mesečne zakupnine, koja se plaća jednokratno.
Više informacija o ovoj ponudi možete dobiti pozivom na broj 065... (prikaži broj telefona)
Kompletnu ponudu naše agencije možete pogledati na sajtu www. royalestate. rs
Agencija ROYAL ESTATE NEKRETNINE DOO NIŠ je upisana u registar posrednika pod rednim brojem 1809.
*Sačuvaj oglas uz belešku i primaj obaveštenja o njihovom pojeftinjenju ili pojavljivanju sličnih
Prikaz poslovnog prostora na mapi
Parkovi u blizini
- Park heroja NOB-a13 min
- Park Čair16 min
- Park složnih komšija25 min

Obeležja kulture u blizini
- Spomenik kralju Aleksandru3 min
- Kuća Stambolijskih5 min
- Spomenik Stevanu Sremcu i Kalči6 min

Škole/Fakulteti/Vrtići u blizini
- Osnovna škola (Osnovna škola Dositej Obradović)4 min
- Srednja škola (Mašinska škola Niš)11 min
- Vrtić (Dečiji vrtić Vera)1 min
- Fakultet (Univerzitet u Nišu Ekonomski fakultet)3 min

- Bolnica (Urgentni centar Niš)6 min
- Klinika (Poliklinika Longa Vita)6 min
- Teretana (Gym Town 1)5 min
- Prodavnica (Gomex market)2 min
- Restoran (Fast food Familys food)1 min
- Kafana (Pivnica Konstantin)8 min
- Taksi stajalište (Bros Taxi Niš)1 min
- Autobuska stanica (Obilićev Venac (šojka))1 min
- Banka (Erste Bank Ekspres ekspozitura)1 min
- Pošta (Pošta Niš 5)6 min
Kontakt oglašivača
Krediti OTP banke
Period otplate
13 mesecimesečno
Period otplate 13 - 71 mesec
Saznaj više
