Poslovni prostor za izdavanje, Jurija Gagarina, 5.000€, 308m²
























5.000 €
- Prizemlje od ukupno 19 spratova
- Prostorije: kupatilo
- Opremljenost: Prazno - internet, interfon, klima
- Oglas oglašava agencija pod reg. brojem 339
- 1 lift
- 1 telefonska linija
Opis oglasa
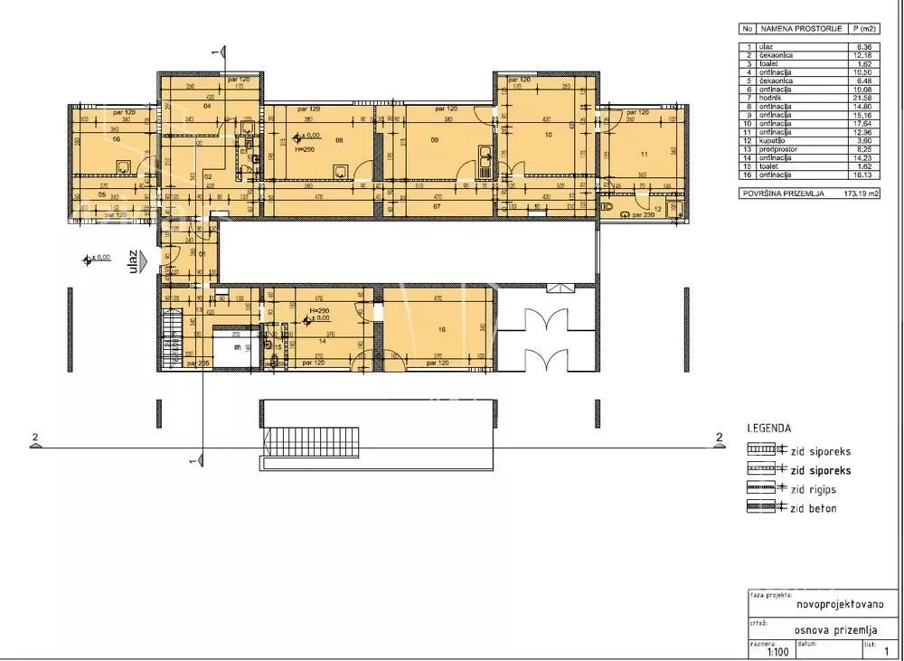
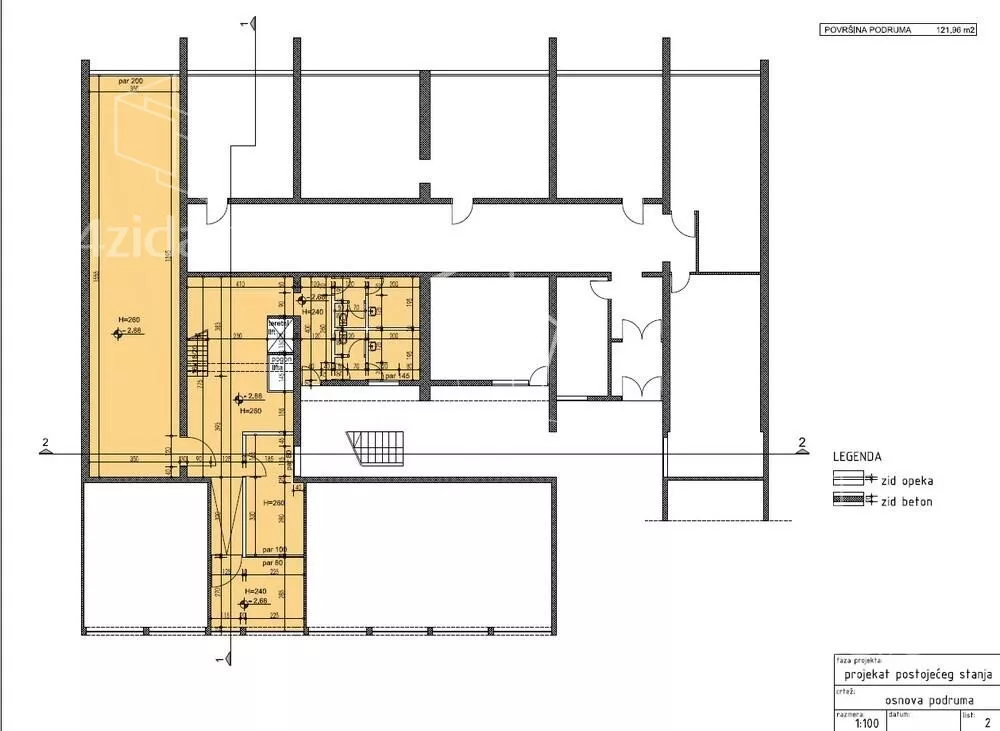
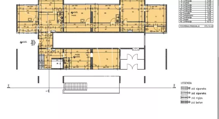
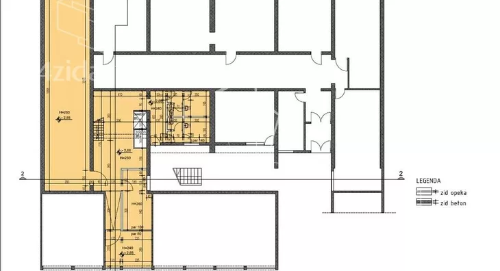
Izdaje se potpuno renoviran poslovni prostor od 308 m2, namenski projektovan za medicinsku ustanovu ali može biti i za druge delatnosti - višenamenski. Prostor je spreman za useljenje sa kompletnim instalacijama visokog standarda. Struktura: • Dva funkcionalna nivoa povezana liftom i stepeništem • Gornji nivo (180 m2): 12 prostorija i glavni ulaz • Donji nivo (128 m2): sa dva zasebna ulaza Ključne instalacije: • Agregat 45 kW i kompletan IT mrežni sistem • Klimatizacija, ventilacija, spušteni plafoni • Video nadzor, alarm, bezbednosni sistemi • Ugrađen nameštaj i podovi od kvalitetne granitne keramike Idealno za: Specijalističke ordinacije, poliklinike, ambulante, dijagnostičke centre, stomatološke klinike ili biotehnološke laboratorije. Prednosti: Potpuno renoviran, fleksibilan raspored, vrhunski tehnički standard, funkcionalna organizacija prostora. Mogućnost zakupa 3 garažna mesta. Kontaktirajte nas da pogledate prostor i za više informacija. Agencijska provizija 50% vrednosti jedne mesečne zakupnine. Agent: Jasna Šnajder, br. licence:2844 "Art nekretnine" d.o.o. Beograd Reg. br.339 011... (prikaži broj telefona) SD02 .
*Sačuvaj oglas uz belešku i primaj obaveštenja o njihovom pojeftinjenju ili pojavljivanju sličnih
Prikaz poslovnog prostora na mapi
Parkovi u blizini
- Park Blok 707 min
- Dečje igralište18 min
- Park Republike Argentine20 min

Obeležja kulture u blizini
- Hangar Starog aerodroma na Novom Beogradu10 min
- Stara osnovna škola11 min
- Česma12 min

Škole/Fakulteti/Vrtići u blizini
- Osnovna škola (Osnovna škola 20. oktobar)8 min
- Srednja škola (Tehnička škola Zmaj)6 min
- Vrtić (Predškolska ustanova Meda 2)5 min
- Fakultet (Visoka škola strukovnih studija za informacione tehnologije ITS)9 min

- Bolnica (Puls kardiološki centar)7 min
- Klinika (Poliklinika Solar Medical Center)6 min
- Teretana (Fitness studio Elit)5 min
- Prodavnica (Market Venera)4 min
- Restoran (Restoran Li Xia)5 min
- Kafana (Helga's Pub)5 min
- Taksi stajalište (Taxi stanica)3 min
- Autobuska stanica (Gandijeva)2 min
- Tramvajska stanica (Blok 23)44 min
- Banka (Raiffeisen Bank)6 min
- Pošta (Pošta Beograd 53)7 min
Kontakt oglašivača
Krediti OTP banke
Period otplate
13 mesecimesečno
Period otplate 13 - 71 mesec
Saznaj više




















