2-etažna kuća za izdavanje, Miće Orlovića, 3.350€, 250m²


































3.350 €
mesečno
- Obavezan depozit
- Režije: od 20000 RSD
- Kuća u nizu
- Kvadratura: 250m²
- Etaž: 2
- Luksuzno
- Prostorije: kupatila (3+), toaleti (2), terasa
- Opremljenost: Polunamešteno - internet, interfon, plakar
- Oglas oglašava agencija pod reg. brojem 1299
- 2 parking mesta
Opis oglasa
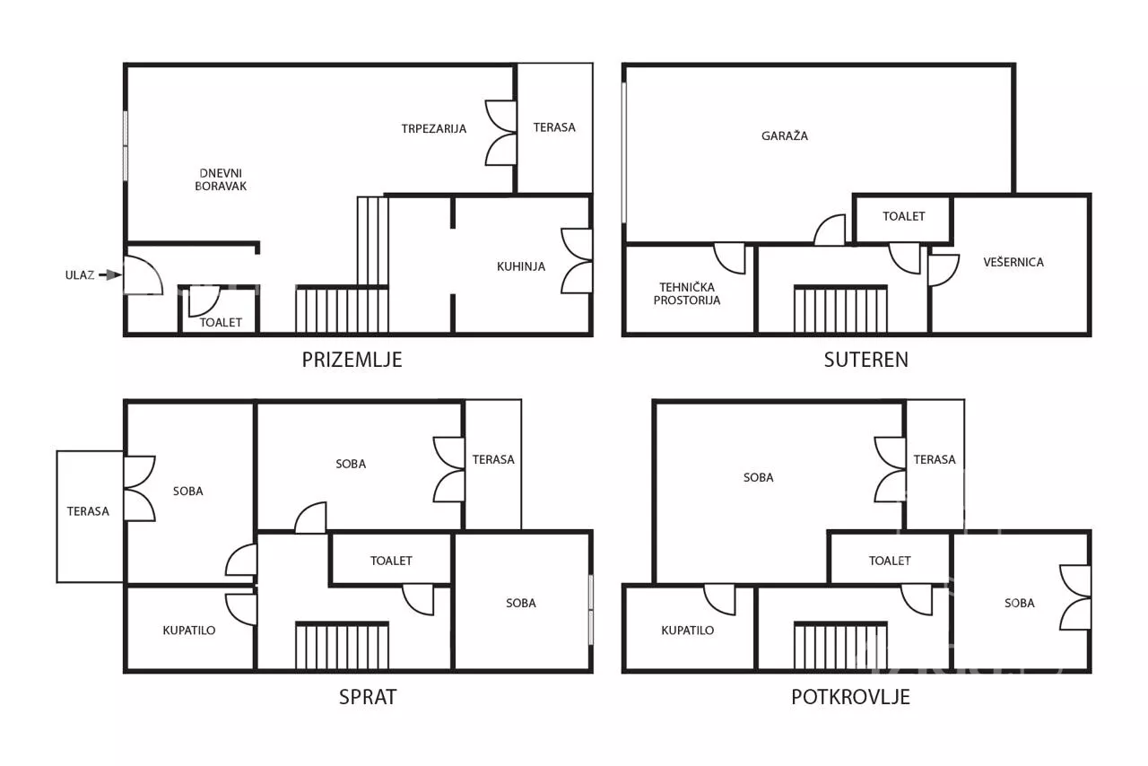
Kvadratura – merena oko 250 m² (210 m² grejne površine i 40 m² terasa).
Struktura kuće:
Soba: 5+
Kupatila: 3
Toaleta: 3
Garaža sa 2 parking mesta
Raspored prostorija po etažama:
Suteren: garaža, kotlarnica, predsoblje, hodnik, WC, vešernica, ostava
Prizemlje: predsoblje, WC, dnevni boravak + trpezarija, trem, podest, kuhinja, terasa
Sprat: hodnik, kupatilo, soba, terasa, soba, terasa, kupatilo, soba, terasa
Potkrovlje: hodnik, master soba, terasa, master kupatilo, WC, soba
Eksterijer: dvorište oko 50 m² i magacin (ispod stepeništa – kod ulaza)
Opremljenost: kuhinja, bela tehnika, elementi kupatila i WC-a, ugradni plakari itd.
Grejanje: etažno na gas
Internet/Kablovska: optika – Telekom
Sigurnost: video nadzor, interfonski sistem
Stolarija: unutrašnja – MDF; spoljašnja – aluminijum-drvo
Ulazna vrata: sigurnosna, Bosal
Parking: 2 mesta u garaži + 1 ispred + 1 na trotoaru
Pet friendly: dozvoljeni kućni ljubimci
Dugoročan zakup.
Depozit: obavezan – u visini 1,5 mesečne kirije
Osim kompletno opremljene kuhinje i kupatila, kao i velikog broja plakara, moguć je da kuća bude opremljena i komadnim nameštajem. Ukoliko zakupac to želi.
СДАЁТСЯ НОВЫЙ-РОСКОШНЫЙ многокомнатный (5+) таунхаус на Дедине.
Площадь — около 250 м² (210 м² отапливаемой площади и 40 м² террасы).
Планировка дома:
Комнат: 5+
Ванных комнат: 3
Туалетов: 3
Гараж на 2 машины
Распределение по этажам:
Цоколь: гараж, котельная, прихожая, коридор, туалет, прачечная, кладовая
Первый этаж: прихожая, туалет, гостиная + столовая, терраса, лестничная площадка, кухня
Второй этаж: коридор, ванная, комната, терраса, комната, терраса, ванная, комната, терраса
Мансарда: коридор, мастер-спальня, терраса, ванная при спальне, туалет, комната
Снаружи: двор около 50 м² и кладовка (под лестницей, у входа)
Оборудование: кухня, бытовая техника, элементы ванных и туалетов, встроенные шкафы и т.д.
Отопление: индивидуальное, на газу
Интернет/ТВ: оптоволокно – Telekom
Безопасность: камеры видеонаблюдения, домофон
Столярка: внутренняя – МДФ, внешняя – алюминий+дерево
Входная дверь: бронированная, Bosal
Парковка: 2 места в гараже + 1 перед гаражом + 1 на тротуаре
Разрешены домашние животные
Долгосрочная аренда
Залог: обязателен – 1,5 месячной арендной платы
*Sačuvaj oglas uz belešku i primaj obaveštenja o njihovom pojeftinjenju ili pojavljivanju sličnih
Prikaz kuće na mapi
Parkovi u blizini
- Park Rozali Morton24 min
- Banjička šuma29 min
- Bajronov park33 min

Obeležja kulture u blizini
- Beli dvor7 min
- Dvorska crkva Svetog Apostola Andreja Prvozvanog7 min
- Kraljevski dvor8 min

Škole/Fakulteti/Vrtići u blizini
- Osnovna škola (Osnovna škola Vojvoda Radomir Putnik)8 min
- Srednja škola (Škola za dizajn)6 min
- Vrtić (Dečiji vrtić Meda)5 min
- Fakultet (Visoka medicinska škola strukovnih studija Milutin Milanković)7 min

- Bolnica (Bolnica za hiperbaričnu medicinu CHM)4 min
- Klinika (Poliklinika Rea Medika)10 min
- Teretana (EMS Studio Maxifit)4 min
- Prodavnica (City market)5 min
- Restoran (Cafe & Restaurant Dedinje)10 min
- Kafana (Pivnica Drvce Kiselo 2002)21 min
- Taksi stajalište (Taxi stanica)9 min
- Autobuska stanica (Miloja Đaka)1 min
- Tramvajska stanica (Saobraćajni Fakultet)34 min
- Trolejbuska stanica (Banjica)15 min
- Banka (Poštanska štedionica)8 min
- Pošta (Pošta Beograd 138)6 min
Kontakt oglašivača
Keš krediti
Period otplate
13 meseci

