Jednosoban stan na prodaju, Njegoševa, 74.210€, 36m²




74.210 €
2.061 € / m2
- Stan u zgradi
- Novo
- Prostorije: ostava, terasa
- Opremljenost: Prazno - internet, interfon, klima, kanalizacija
- Oglas oglašava agencija pod reg. brojem 2125
- 1 garažno mesto
- 1 parking mesto
- 1 lift
- Kanalizacija
- Godina izgradnje: 2026.
- Zgrada poseduje: podrum, lođa, video nadzor
- Kablovska
- 1 telefonska linija
Opis oglasa
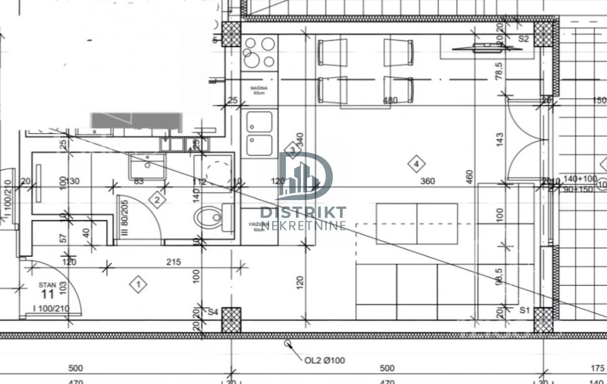
Na prodaju nov, funkcionalan jednosoban stan površine 36,2 m², smešten na prvom spratu moderne stambene zgrade u izgradnji. Objekat se gradi od kvalitetnih materijala – sve se zida termo blokom koji daje zvučnu i toplotnu izolaciju i oblaže se fasadnom izolacijom od 10 cm stiropora koji obezbeđuje odličnu energetsku efikasnost. Ugradjuje se kvalitetna PVC stolarija sa ALU roletnama. Podovi se oblažu parketom I klase i kvalitetnom uvoznom keramikom. Grejanje je na struju, preko inverter klima uređaja koji omogućava održavanje temperature tokom cele godine, uz minimalnu potrošnju. Lokacija je odlična – u neposrednoj blizini nalaze se škola, prodavnice, apoteke i pijaca, dok je pešačka zona udaljena svega 10 minuta laganog hoda, što ovu nekretninu čini idealnom kako za život, tako i kao investiciju. U cenu stana uračunat je PDV i kupci prvog stana imaju pravo povraćaja u iznosu od 10%. Postoji mogućnost kupovine parking mesta. Ovo je samo deo naše ponude, za više informacija o ovoj ili o drugim nekretninama, kontaktirajte agenta na broj telefona 061... (prikaži broj telefona) . Agencija Distrikt nekretnine je upisana u Registar posrednika pod rednim brojem: 2125.
*Sačuvaj oglas uz belešku i primaj obaveštenja o njihovom pojeftinjenju ili pojavljivanju sličnih
Prikaz stana na mapi
Kontakt oglašivača
Krediti OTP banke
Saznaj više
Prikazana rata odnosi se na maksimalni period otplate. Kalkulator je informativnog karaktera.
* Nakon isteka 5 godina, prelazi se na varijabilnu kamatnu stopu


